FloorPlan
Etasjeplan (snitt A-A) som viser romfordeling, dører, vinduer og dimensjoner for et interiør.
1 / 2
Extension
Soeknad
Garasje
Bygg av mesanin dekk i garasje, Storehølvegen 38
📍 Storehølvegen 38 , 6065 ULSTEINVIK
Nøkkelinfo
- Sakstype
- Tilbygg
- Bygningstype
- Garasje
- Bruksareal
- 70 m²
- Kommune
- Ulstein
- Fylke
- Møre og Romsdal
- Gnr / Bnr
- 10 / 302
- Saksnummer
- 2026/1227
- Fase
- Søknad
Om byggesaken
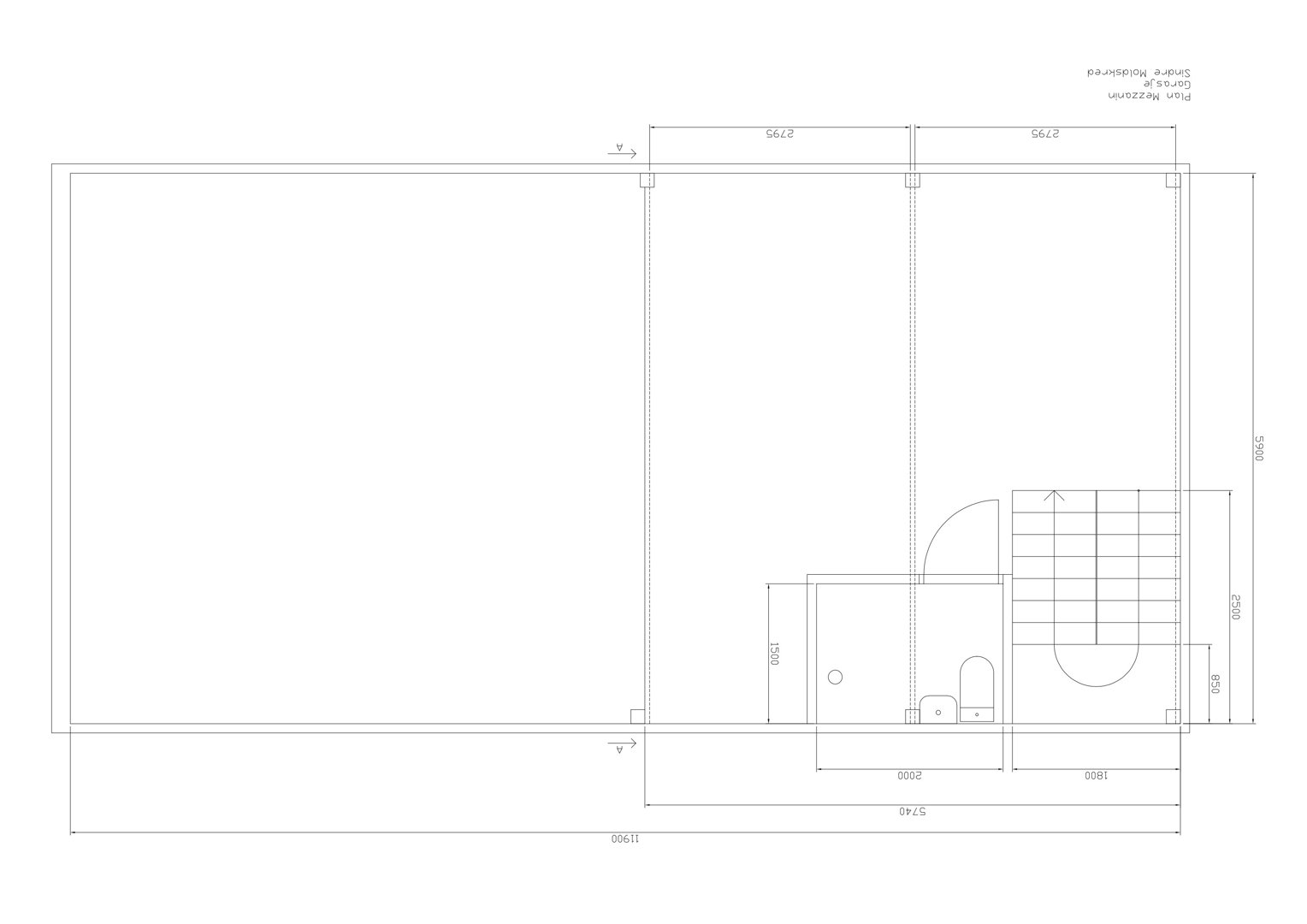
Ny mesanin dekk bygges inne i eksisterende garasje på 69,8 m² i Storehølvegen 38. Mesaninen består av bjelker i dimensjon 50x250 mm og 48x198 mm, samt søyler på 150x150 mm og stålbjelker for bærekonstruksjon. Det etableres en trapp for adkomst til mesaninen. Garasjen har ingen vinduer eller dører i denne etasjen, og mesaninen vil gi ekstra gulvareal og lagringsplass over garasjegulvet.
Produkter og materialer
Stål
Stålbjelke
🧱 stål
Stålbjelke 50x250 mm, vinkeljern 100x50 mm
Stålbjelker og vinkeljern for bærekonstruksjon i mesanin dekk
Tømrer
Søyler
🧱 tre
Søyle 150x150 mm
Søyler for mesanin dekk bærekonstruksjon
Tømrer
Bjelker
🧱 tre
Bjelker 50x250 mm og 48x198 mm
Bjelker for mesanin dekks bærekonstruksjon
Grunnarbeid
Eksisterende garasje
Eksisterende garasje som mesanin bygges i
Trapper
Innvendig trapp
Antall: 1
Trapp for adkomst til mesanin dekk
Plantegning
Garasje 69.8 m²
Etasje 1 69.8 m²
| Rom | Areal | Vinduer | Dører |
|---|---|---|---|
| Garasje | 69.8 m² | 0 | 0 |
Hendelser
22.04.2026
Bygg av mesanin dekk - gnr 10 bnr 302 Snr 8