Facade
Byggtegning som viser fasadeopprikk (fra flere vinkler) av en bolig.
1 / 8
Extension
Ferdigattest
Garasje
Oppføring av utvendig trapp og tak over terrasse i Tangenheia 44
📍 Tangenheia 44 , 4904 TVEDESTRAND
Nøkkelinfo
- Sakstype
- Tilbygg
- Bygningstype
- Garasje
- Bruksareal
- 9 m²
- Boenheter
- 1
- Kommune
- Tvedestrand
- Fylke
- Agder
- Gnr / Bnr
- 59 / 442
- Saksnummer
- 2025/1135
- Fase
- Ferdigattest
Om byggesaken
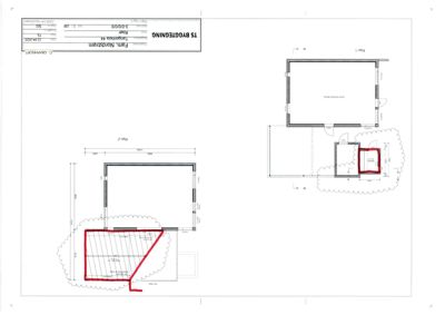
Ny utvendig trapp fra verandaen og tak over terrasse på bolig i Tangenheia 44. Trappen er tilpasset eksisterende veranda, og taket skal gi værbeskyttelse over terrassen. Badstuen som opprinnelig var del av prosjektet, er ikke oppført og er tatt ut av saken. Tiltaket har et bebygd areal på 9 m² og et bruksareal på 3,6 m². Bygget er i tre og tilpasses eksisterende bolig med saltak. Tiltaket er plassert i henhold til reguleringsplan og nabosamtykke foreligger for plassering nærmere enn 4 meter fra nabogrense.
Produkter og materialer
Trapper
Utvendig trapp
🧱 Tre
Antall: 1
Trapp tilpasset eksisterende veranda, iht tegninger
Ny utvendig trapp fra verandaen til terreng
Tak
Tak over terrasse
🧱 Tre med saltak
Antall: 1
Tak over terrasse tilpasset eksisterende bolig, saltak
Nytt tak over terrasse for værbeskyttelse
Grunnarbeid
Fundament for trapp
🧱 Betong
Fundament iht tegninger for utvendig trapp
Grunnarbeid og fundamentering for ny trapp
Fasade
Kledning
🧱 Tre
Kledning i tre som tilpasses eksisterende bolig
Fasade kledning for trapp og taktilbygg
Tømrer
Bygging av trapp og tak
Tømrerarbeid for oppføring av trapp og tak over terrasse
Utførelse av trearbeid for trapp og tak
Maling
Utvendig maling
Maling av treflater utvendig for trapp og tak
Overflatebehandling av treverk utvendig
Plantegning
Enebolig 100.0 m²
Etasje 1 100.0 m²
| Rom | Areal | Vinduer | Dører |
|---|---|---|---|
| Stue 101 | 60.0 m² | 3 | 1 |
| Gang 102 | 10.0 m² | 0 | 2 |
| Kjøkken 103 | 15.0 m² | 1 | 1 |
| Bad 104 | 5.0 m² | 0 | 1 |
| Vaskerom 105 | 5.0 m² | 0 | 1 |
| Sove 106 | 5.0 m² | 1 | 1 |
Fasader
Enebolig
Nord
- Materiale
- Tre
- Taktype
- Saltak
- Vinduer
- 2
- Dører
- 1
- Balkonger
- 1
- Synlige etasjer
- 2
Sør
- Materiale
- Tre
- Taktype
- Saltak
- Vinduer
- 3
- Dører
- 1
- Balkonger
- 1
- Synlige etasjer
- 2
Øst
- Materiale
- Tre
- Taktype
- Saltak
- Vinduer
- 5
- Dører
- 1
- Balkonger
- 1
- Synlige etasjer
- 2
Vest
- Materiale
- Tre
- Taktype
- Saltak
- Vinduer
- 4
- Dører
- 1
- Balkonger
- 1
- Synlige etasjer
- 2
Hendelser
15.04.2026
Søknad om ferdigattest
11.06.2025
Avstandserklæring - signed
11.06.2025
Vedtak - Tillatelse til badstu, utvendig trapp og tak over terrasse - Tangenheia 44
01.06.2025
59/442/0/0 - Tangenheia 44 - Søknad om oppføring av badstu, utvendig trapp og tak over terrasse - etterlyser avstandserklæring
30.04.2025
59/442/0/0 - Tangenheia 44 - Søknad om oppføring av badstu, utvendig trapp og tak over terrasse