Extension Ferdigattest Garasje

Tilbygg og brannsikret garasje på Varden 6, Hvaler

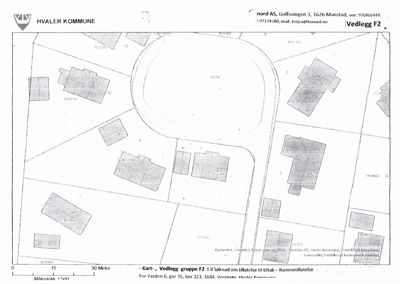
📍 Varden 6 , 1684 VESTERØY

Nøkkelinfo

Sakstype
Tilbygg
Bygningstype
Garasje
Bruksareal
230 m²
Boenheter
1
Kommune
Hvaler
Fylke
Østfold
Gnr / Bnr
35 / 323
Saksnummer
2019/1859
Fase
Ferdigattest

Om byggesaken

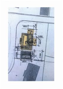
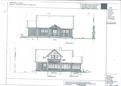
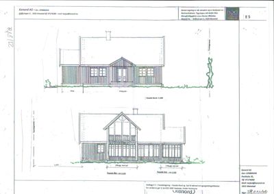
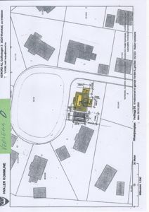
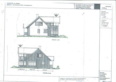
To tilbygg til enebolig på Varden 6, Hvaler kommune, med samlet BYA på 26,6 m² og BRA på ca. 46,65 m², fordelt på tilbygg mot øst og sør, begge med saltak og tilpasset eksisterende bolig. Tilbyggene inneholder utvidet kjøkken, ny stue og loftstue. I tillegg er det oppført en ny frittstående dobbeltgarasje på 49,8 m² i nabogrense, brannsikret i klasse EI60 mot nabo, i henhold til tinglyst samtykke og preakseptert løsning. Garasjen har saltak med mønehøyde 5,55 m og gesimshøyde 2,5 m. Tiltaket har dispensasjon for utnyttelsesgrad på 31 % BRA, noe som overskrider kommuneplanens 30 % med 1 %. Alle nødvendige tillatelser er gitt, og ferdigattest for garasje og tilbygg er utstedt. Prosjektet inkluderer også brannsikringstiltak og nabovarsling uten merknader.

Produkter og materialer

Vinduer Fasadevindu og takvindu

🧱 Tre, 3-lags energiglass

Antall: 14

Vinduer i tilbyggenes fasader og eksisterende bolig, inkludert takvinduer

Nye vinduer i tilbyggenes fasader og eksisterende bolig

Dører Ytterdører og terrassedører

🧱 Tre

Antall: 8

Dører i tilbyggenes fasader og eksisterende bolig

Nye ytterdører og terrassedører i tilbyggenes fasader og eksisterende bolig

VVS Sanitærinstallasjoner

Sanitærinstallasjoner i tilbygg til bolig

VVS-installasjoner for tilbygg

Betong Fundament og plate

🧱 Betong

Betongfundament og plate for garasje og tilbyggenes grunnmur

Betongfundament og plate for garasje og tilbygg

Tømrer Bygging av tilbygg og garasje

🧱 Tre

Tømrerarbeid for oppføring av tilbygg og garasje

Tømrerarbeid for tilbygg og garasje

Gulv Innvendige gulvflater

Gulv i tilbygg, sannsynligvis parkett eller laminat

Innvendige gulvflater i tilbygg

Brannvern Brannsikring garasje

🧱 EI60 brannklasse materialer

Brannsikring i klasse EI60 mot nabo, preakseptert løsning i henhold til SINTEF byggforsk 517.651, godkjent av Fredrikstad brannvesen

Brannsikring av garasje mot naboeiendom i henhold til forskrift og tinglyst samtykke

Tilbygg To tilbygg til bolig

🧱 Tre, saltak

Antall: 2

Tilbygg mot øst og sør, samlet BYA 26,6 m², BRA ca. 46,65 m², saltak, tilpasset eksisterende bolig, inneholder utvidet kjøkken, ny stue og loftstue

To tilbygg til eksisterende enebolig med saltak og tre som hovedmateriale

Tak Saltak med teglstein

🧱 Teglstein

Saltak på bolig og tilbygg, takmateriale teglstein

Saltak med teglstein på bolig og tilbygg

Maling Innvendig og utvendig maling

Maling av tilbygg og garasje utvendig og innvendig

Maling av fasader og innvendige flater i tilbygg og garasje

Grunnarbeid Tomtearbeid og fundamentering

Grunnarbeid for tilbygg og garasje, inkludert fundamentering

Grunnarbeid og fundamentering for tilbygg og garasje

Garasje Prefabrikert dobbeltgarasje

🧱 Elementgarasje fra Karlshusgarasjene AS

Antall: 1

Brannsikret i klasse EI60 mot nabo, 49,8 m², saltak, mønehøyde 5,55 m, gesimshøyde 2,5 m, plassert i nabogrense med 0,4 m avstand til nabogrense

Ny frittstående dobbeltgarasje med brannsikring mot nabo i henhold til tinglyst samtykke og preakseptert løsning

Elektro Elektriske installasjoner

Elektriske installasjoner i tilbygg og garasje

Elektroinstallasjoner for tilbygg og garasje

Isolasjon Isolasjon i vegger og tak

Isolasjon i vegger og tak i tilbygg og garasje

Isolasjon for varme og lyd i tilbygg og garasje

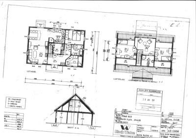
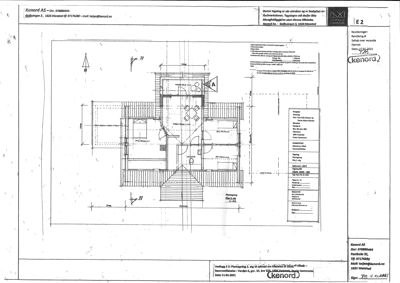
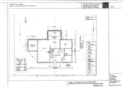
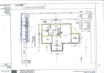
Plantegning

Enebolig 229.5 m²

Etasje 1 122.6 m²

Rom Areal Vinduer Dører
Stue 101 35.2 m² 3 2
Kjøkken 102 10.8 m² 1 1
Soverom 1 103 12.6 m² 1 1
Bad/Vaskerom 104 5.8 m² 0 1
Soverom 2 105 10.8 m² 1 1
Gang/Hall 106 12.4 m² 0 3
Sove 2 107 13.4 m² 1 1
Stue STUE 34.4 m² 3 1
Kjøkken KJØKKEN 9.8 m² 0 1
Hall HALL 12.5 m² 0 1
Sov. 1 SOV. 1 11.6 m² 1 1
Sov. 2 SOV. 2 7.1 m² 1 1
Bad/Vask BAD/VASK 5.4 m² 0 1

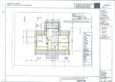
Etasje 2 106.9 m²

Rom Areal Vinduer Dører
Soverom 3 Sov 3 15.4 m² 1 1
Soverom 2 Sov 2 6.8 m² 0 1
Soverom 1 Sov 1 6.9 m² 1 1
Toalett WC 6.0 m² 0 1
Veranda Veranda 4.8 m² 2 1
Gang Gang 65.0 m² 0 3
Loftstue LOFTSTUE 14.6 m² 2 1
Sov. 2 SOV. 2 13.8 m² 1 1
Sov. 3 SOV. 3 15.4 m² 1 1
Bod BOD 5.4 m² 1 1

Garasje 49.8 m²

Etasje 0 49.8 m²

Rom Areal Vinduer Dører
Garasjerom 49.8 m² 1 0

Fasader

Enebolig

Nord
Materiale
Tre
Taktype
Saltak
Vinduer
4
Dører
1
Synlige etasjer
1
Øst
Materiale
Tre
Taktype
Saltak
Vinduer
1
Dører
0
Balkonger
1
Synlige etasjer
2
Sør
Materiale
Tre
Taktype
Saltak
Høyde
6.4 m
Mønehøyde
8.0 m
Vinduer
0
Dører
0
Synlige etasjer
1
Vest
Materiale
Tre
Taktype
Saltak
Vinduer
4
Dører
1
Balkonger
1
Synlige etasjer
2
Nord-Øst
Materiale
Tre
Taktype
Saltak
Takmat.
Tegl
Vinduer
4
Dører
1
Synlige etasjer
1
Nord-Vest
Materiale
Tre
Taktype
Saltak
Takmat.
Tegl
Vinduer
3
Dører
1
Synlige etasjer
1
Sør-øst
Materiale
Tre
Taktype
Saltak
Takmat.
Tegl
Vinduer
4
Dører
0
Synlige etasjer
2
Sør-vest
Materiale
Tre
Taktype
Saltak
Takmat.
Tegl
Vinduer
4
Dører
1
Synlige etasjer
2

Vedlegg E1

Sør
Materiale
Tre
Taktype
Saltak
Høyde
7.4 m
Vinduer
6
Dører
0
Balkonger
1
Synlige etasjer
2

Eksisterende

Sør
Materiale
Tre
Taktype
Saltak
Vinduer
2
Dører
0
Synlige etasjer
1

Tilbygg mot øst

Øst
Materiale
Tre
Taktype
Saltak
Vinduer
3
Dører
0
Synlige etasjer
2

Tilbygg mot syd

Sør
Materiale
Tre
Taktype
Saltak
Vinduer
2
Dører
0
Synlige etasjer
2

Hendelser

09.04.2026 Oppheving av vedtak om ferdigattest - tilbygg - 35/323 - Varden 6
09.04.2026 Ferdigattest - tilbygg øst - 35/323 - Varden 6
12.03.2026 Søknad om ferdigattest - garasje - 35/323 - Varden 6
22.01.2026 Ferdigattest - tilbygg - 35/323 - Varden 6
20.01.2026 Søknad om ferdigattest - 35/323 - Varden 6
21.01.2025 Ferdigattest - garasje - 35/323 - Varden 6
17.01.2025 Søknad om ferdigattest - 35/323 - Varden 6
14.01.2025 Midlertidig brukstillatelse - tilbygg - 35/323 - Varden 6
09.01.2025 Søknad om midlertidig brukstillatelse - 35/323 - Varden 6
29.08.2023 Søknad om igangsettingstillatelse - 35/323 - Varden 6
11.08.2023 Endring om ansvarsrett - 35/323 - Varden 6
22.04.2021 Igangsettingstillatelse - 35/323 - Varden 6
15.04.2021 Søknad om igangsettingstillatelse - 35/323 - Varden 6
26.03.2021 Svar på henvendelse om brannsikring av garasje - 35/323 - Varden 6
26.03.2021 Brannsikring av garasje - 35/323 - Varden 6
23.02.2021 Dispensasjon og rammetillatelse - tilbygg til bolig - 35/323 - Varden 6
18.02.2021 Vedrørende byggesak - 35/323 - Varden 6
26.01.2021 Søknad om tiltak - rammetillatelse - 35/323 - Varden 6
20.01.2021 Tiltak - rammetillatelse for nevnte eiendom - 35/323 - Varden 6
12.01.2021 Søknad om tillatelse til tiltak uten ansvarsrett - 35/323 - Varden 6
07.09.2020 Spørsmål - 35/323 - Varden 6
25.08.2020 Tilbakemelding vedrørende mulig dispensasjon for tilbygg og garasje - 35/323 - Varden 6
06.08.2020 Ber om møte - 35/323 - Varden 6
29.08.2019 Svar på henvendelse - 35/323 - Varden 6