Extension Igangsettingstillatelse Garasje

Oppføring av redskapshus og tilbygg til garasje i Vikdalsvegen 20

📍 Vikdalsvegen 20 , 6456 SKÅLA

Nøkkelinfo

Sakstype
Tilbygg
Bygningstype
Garasje
Bruksareal
105 m²
Kommune
Molde
Fylke
Møre og Romsdal
Gnr / Bnr
122 / 46
Saksnummer
24/10368
Fase
Igangsettingstillatelse

Om byggesaken

Ny oppføring av et redskapshus på 65,8 m² som tilbygg til eksisterende garasje på 39,2 m², totalt 105 m². Bygget har trekonstruksjon med saltak og trepanel som fasademateriale. Garasjen har to vinduer og en dør, mens redskapshuset ikke har vinduer eller dører. Bygget har to etasjer på garasjedelen og en etasje på redskapshuset. Det benyttes stålbjelke IPE 400 i konstruksjonen. Prosjektet inkluderer grunnarbeid, betongarbeid, tømrerarbeid og montering av trekonstruksjoner. Det er gitt rammetillatelse og igangsettingstillatelser, og ansvarlige foretak er engasjert for prosjektering og utførelse.

Produkter og materialer

Stål Stålbjelke IPE 400

🧱 Stål

Stålbjelke IPE 400 brukt i konstruksjonen

Bærebjelke i stål for konstruksjon

Vinduer Fasadevindu

Antall: 4

2 vinduer på garasje sørfasade, 2 vinduer på vestfasade

Fasadevinduer i garasjedelen

Dører Ytterdør

Antall: 2

1 dør på sørfasade og 1 dør på vestfasade i garasjedelen

Ytterdører til garasjen

Fasade Trepanel

🧱 Tre

Trepanel på fasader, saltak med tre som takmateriale

Fasademateriale i tre for redskapshus og garasje

Tak Saltak

🧱 Tre

Saltak på begge byggdeler

Saltak i tre for redskapshus og garasje

Garasjeport Garasjeport

Antall: 2

Garasjeporter på sør- og nordfasade i garasjedelen

Garasjeporter for eksisterende garasje

Tømrer Montering av trekonstruksjoner

🧱 Tre

Utførelse av tømrerarbeid og montering av trekonstruksjoner av Byggmester Trond Inge Håseth

Tømrerarbeid for redskapshus og tilbygg

Betong Plasstøpte betongkonstruksjoner

🧱 Betong

Betongarbeid utført av BETONGPROSJEKT AS

Betongfundamenter og konstruksjoner for bygget

Grunnarbeid Grunnarbeid

Grunnarbeid utført av Jan Magne Dahle

Grunnarbeid for fundamentering av redskapshus og tilbygg

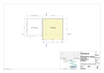
Plantegning

Redskapshus 105.0 m²

Etasje 1 105.0 m²

Rom Areal Vinduer Dører
Eksist. garasje A 39.2 m² 2 1
Redskapshus 65.8 m² 0 0

Fasader

Redskapshus

Sør
Materiale
Tre
Taktype
Saltak
Høyde
6.3 m
Vinduer
2
Dører
1
Synlige etasjer
2
Vest
Materiale
Tre
Taktype
Saltak
Vinduer
2
Dører
1
Synlige etasjer
2
Øst
Materiale
Tre
Taktype
Saltak
Vinduer
0
Dører
0
Synlige etasjer
1
Nord
Materiale
Tre
Taktype
Saltak
Vinduer
0
Dører
0
Synlige etasjer
1

Hendelser

16.04.2026 24/10368-13 112/46 Vikdalsvegen 20, igangsettingstillatelse til oppføring av redskapshus
27.03.2026 24/10368-12 122/46/0/0 Vikdalsvegen 20, oppføring av redskapshus - søknad om igangsettingstillatelse
02.06.2025 24/10368-11 122/46 Vikdalsvegen 20 - Igangsettingstillatelse til oppføring av redskapshus
20.05.2025 24/10368-10 122/46/0/0 Vikdalsvegen 20, Søknad om igangsettingstillatelse
27.02.2025 24/10368-9 122/46, Vikdalsvegen 20, igangsettingstillatelse til oppføring av redskapshus
20.02.2025 24/10368-8 Vikdalsvegen 20 Søknad om igangsettingstillatelse 122/46
07.10.2024 24/10368-4 122/46// Vikdalsvegen 20, søknad om dispensasjon fra vegloven i forbindelse med oppføring av redskapshus
09.09.2024 24/10368-1 122/46// Vikdalsvegen 20, oppføring av redskapshus - søknad om rammetillatelse
09.09.2024 24/10368-2 122/46// Vikdalsvegen 20, oppføring av redskapshus - erklæring fra Opplysningsvesenets fond