ChangeOfUse Ferdigattest Other

Bruksendring fra butikk til avisredaksjon i Bergmannsgata 2, Røros

📍 Bergmannsgata 2 , 7374 RØROS

Nøkkelinfo

Sakstype
Bruksendring
Bygningstype
Other
Bruksareal
104 m²
Kommune
Røros - Rosse
Fylke
Trøndelag - Trööndelage
Gnr / Bnr
160 / 26
Saksnummer
2026/360
Fase
Ferdigattest

Om byggesaken

Bruksendring av 1. etasje i eksisterende bygning på 104,5 m² fra butikklokale til kontorlokaler for avisredaksjon. Lokalet består av flere rom, inkludert åpent landskap, kontorer, pauserom, garderober, toaletter og lager. Tiltaket omfatter oppføring av to lette vegger, overflatebehandling og mindre innvendige arbeider uten fasadeendringer eller utvidelse av bruksareal. Bygningen ligger i et verneverdig kulturmiljø i Røros sentrum, og tiltaket er tilpasset med dispensasjon fra krav om publikumsrettet aktivitet i gateplan og unntak fra flere tekniske krav i TEK17, blant annet universell utforming, heis, trapp, lydisolasjon og radon. Arbeidstilsynet har gitt samtykke til tiltaket med visse avvik fra preaksepterte løsninger. Det er etablert ansvarlige foretak for arkitektur, tømrerarbeid, ventilasjon og brannkonsept. Tiltaket er ferdigstilt og det er utstedt ferdigattest.

Produkter og materialer

Brannvern Brannkonsept

Antall: 1

Brannkonsept prosjektert av NORCONSULT NORGE AS

Brannkonsept for bruksendring i eksisterende bygg

Gulv Overflatebehandling

Overflatebehandling av gulv i kontorlokaler

Oppussing og overflatebehandling av gulvflater

Ventilasjon Balansert ventilasjon

Antall: 1

Balansert ventilasjon installert av BLIKKENSLAGER TØNSET AS

Ventilasjon og klimainstallasjoner for arbeidslokaler

Arkitektur Arkitekturprosjektering

Antall: 1

Arkitekturprosjektering utført av RØROS BYGG AS

Prosjektering av bruksendring og innvendige arbeider

Grunnarbeid Eksisterende tilknytning til VA

Eksisterende tilknytning til offentlig vann- og avløpsnett benyttes

Ingen endringer i vann- og avløpsløsninger

Tømrer Lette vegger

Antall: 2

Oppføring av to lette vegger i eksisterende lokaler

Innvendige lettvegger for rominndeling i kontorlokaler

Bad Toalettrom

Antall: 2

Toaletter uten full universell utforming, ett med kombinert bøttekott

Toalettfasiliteter for ansatte, tilpasset eksisterende bygningsstruktur

Vinduer Fasadevindu

Antall: 6

Vinduer i butikklokaler og kontorer, 6 stk i 1. etasje

Vinduer for dagslys og utsyn i kontorlokaler

Dører Innvendige dører

Antall: 7

Dørbredder varierer fra 69 cm til 99 cm, ikke alle oppfyller TEK17 krav

Innvendige dører til kontorer, møterom, toaletter og lager

Trapper Utvendig trapp

Antall: 2

Eksisterende utvendige trapper beholdes uten endringer pga. kulturminnevern

Adkomst via utvendige trapper i verneverdig område

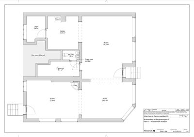
Plantegning

Butikk 104.5 m²

Etasje 1 104.5 m²

Rom Areal Vinduer Dører
Lager 101 5.4 m² 1 1
Butikk 102 11.7 m² 1 1
Butikk 103 35.4 m² 1 0
Pauserom 104 7.1 m² 0 1
WC/BK 105 1.9 m² 0 1
Butikk 106 22.9 m² 1 1
Butikk 107 21.0 m² 1 0
Åpent landskap 108 35.4 m² 0 1
Åpent landskap 109 22.9 m² 0 1
Åpent landskap 110 12.5 m² 0 1
Kontor 111 8.1 m² 0 1

Hendelser

13.04.2026 Ferdigattest – bruksendring i Bergmannsgata 2 – gbnr. 160/26
10.04.2026 Søknad om ferdigattest
07.04.2026 Vedtak i byggesak – bruksendring – Bergmannsgata 2 – gbnr. 160/26
19.03.2026 Foreløpig svar
18.03.2026 Søknad om tillatelse i ett trinn
16.03.2026 Vi innvilger søknaden om samtykke
10.03.2026 Adkomst Bergmannsgata 2
10.03.2026 Slik er saksforløpet i saken så langt
10.03.2026 spørsmål i forbindelse med søknad om bruksendring
09.03.2026 SV: spørsmål i forbindelse med søknad om bruksendring
05.03.2026 Uttalelse fra byantikvar
03.03.2026 Vi trenger flere opplysninger for å behandle søknaden – varsel om avslag på søknad