Other 1787 treff

3D-visualisering (rendering) av et planlagt hus med omgivende terreng og beplantning.
Extension Other

Tilbygg med kjøkken og toalett til anneks i Botneveien 132, Arendal

Ny tilbygg på eksisterende anneks på 22,4 m² BRA med kjøkken og bad/toalett i Botneveien 132, Arendal. Tilbygget er utf…

πŸ“ Botneveien 132 Arendal
Fotografier av en bygning som har vært utsatt for brann, med synlig røykskade på takkonstruksjonen og fasaden.
Demolition Other

Riving av brannskadet uthus i Vestre Strømsbuvei 26A, Arendal

Riving av et brannskadet uthus på ca. 80 m² med flatt tak og trekledning. Bygget har én etasje og består av en tidliger…

πŸ“ Vestre Strømsbuvei 26A Arendal
Fotografi av en veranda og trapp før bygging.
Extension Other

Oppføring av takkonstruksjon med åpne sider på Dyvigodden 74

Ny takkonstruksjon på 20,3 m² med åpne sider oppføres på eksisterende uteområde ved enebolig på Dyvigodden 74 i Arendal…

πŸ“ Dyvigodden 74 Arendal
To fotografier som viser utsikt fra en fremtidig tennissbane og det eksisterende hønsehuset med vei.
Extension Other

Nytt tennishus og tennisbane i Nordheimveien 53, Arendal

Ny oppføring av tennishus på ca. 52 m² BRA med saltak og trekledning, som erstatter et gammelt hønsehus på samme sted. …

πŸ“ Nordheimveien 53 Arendal
🏗️
Extension Other

Brukstillatelse for tilbygg på eiendom i Arendal

Tilbygg til eksisterende bygg på eiendom Gnr 308, Bnr 131 i Arendal kommune. Prosjektet omfatter fysisk utvidelse av by…

πŸ“ Losveien 5 Arendal
En 3D-perspektivtegning (rendering) som viser et eksisterende tilbygg og en ny vaskeplass. Tegningen illustrerer bygningens utseende, takform og fasade.
Demolition Other

Riving og omplassering av bygg på Toppemyr 2C, Bergen

Prosjektet omfatter riving av et gammelt hønsehus med tilbygg og takoverbygg, samt omplassering av eksisterende brakker…

πŸ“ Toppemyr 2C Bergen
🏗️
Extension Other

Utskifting og mindre utvidelse av platting på Gnr 306 Bnr 334, Arendal

Prosjektet omfatter utskifting av eksisterende platting og en mindre utvidelse av denne på eiendommen Gnr 306 Bnr 334 i…

πŸ“ Hasseldalen 13 Arendal
Fotografi av en fasade på et apotek (Vitusapotek) med parkerte biler foran.
FacadeChange Other

Oppføring av fasadeskilt for Vitusapotek på Strandkaien 4, Bergen

To nye nedhengte fasadeskilt monteres på Strandkaien 4 i Bergen for Vitusapotek. Det ene skiltet er et virksomhetsskilt…

πŸ“ Strandkaien 4 Bergen
Situasjonsplan som viser vannledningsnett, eksisterende og nye VA-ledninger, samt tomtedeler og infrastruktur i Grimstadneset Nord.
NewConstruction Other

Etablering av VA-ledninger og kummer på Grimstadneset 27

Prosjektet omfatter etablering av nye vann- og avløpsledninger med tilhørende kummer på eiendommen Grimstadneset 27 i B…

πŸ“ Grimstadneset 27 Bergen
Fotografier av eksisterende bygninger på tomta, inkludert en hovedbygning og en uthus.
Other Other

Flytting av våningshus og stabbur i Nordgrandveien 183, Brekstad

Prosjektet omfatter flytting av et eldre våningshus på ca. 104 m² bebygd areal og et stabbur på ca. 17 m² fra eiendomme…

πŸ“ Nordgrandveien 183 Ørland
🏗️
Extension Other

Forlengelse av kai ved Havnevegen 90

Forlengelse av eksisterende kai ved Havnevegen 90, som innebærer utvidelse av kaianlegget for økt kapasitet eller funks…

πŸ“ Havnevegen 90 Skien
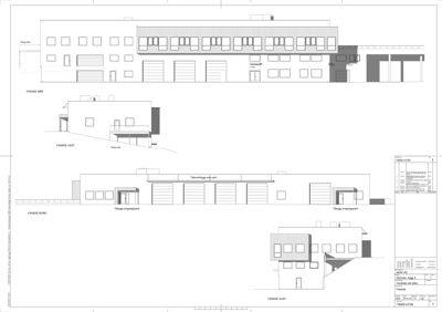
Fasadetegning som viser oppriss av bygningens fire sider (Nord, Sør, Vest, Aust) med vinduer, dører og takform.
Extension Other

Ny carport over eksisterende parkering i Indre Hornnesvika

Ny carport på 139,2 m² oppføres som et tilbygg over eksisterende parkeringsplasser på plan 3 ved næringsbygget i Indre …

πŸ“ Indre Hornnesvika 11 Sunnfjord
🏗️
NewConstruction Other

Oppføring av fiberbu på Fjæravei 25

Ny frittstående fiberbu oppføres på eiendommen Fjæravei 25. Bygget er sannsynligvis et mindre teknisk bygg for fiberuts…

πŸ“ Gamle Fjæravei 25 Ørland
🏗️
NewConstruction Other

Nytt bygg med avkjørsel og adkomstvei på Strandveien 40

Nytt bygg oppføres på eiendommen Strandveien 40, inkludert etablering av avkjørsel og adkomstvei. Prosjektet omfatter g…

πŸ“ Melsbø, 175/17 Dielddanuorri - Tjeldsund
3D-visualisering av et underjordisk avløpssystem (septiktank og filtergrøft) med en bygning i bakgrunnen.
NewConstruction Other

Oppføring av minirenseanlegg med infiltrasjon i Viksdalsvegen 73

Minirenseanlegg av typen August AT10 med kjemisk og biologisk rensing er oppført på eiendommen Viksdalsvegen 73. Anlegg…

πŸ“ Viksdalsvegen 73 Sunnfjord
Bildene viser en samling av fotografier og en teknisk illustrasjon av en antenneanlegg (mast) i en byggeplass. Det er to bilder av 'Eksisterende situasjon' og 'Ny situasjon' som viser området utenfra, og et bilde av 'Foto med ny masteseksjon' som viser masten i situasjon.
Extension Other

Forlenging og oppgradering av telekom-mast i Industrivegen 19

Eksisterende telekom-mast på Industrivegen 19 forlenges med en ny 6 meter høy modul, slik at total høyde blir 20,5 mete…

πŸ“ Industrivegen 19 Vik
Fotografi av Tittakshavet sett fra Stråkjølet, med et rødt sirkelmerke som markerer plasseringen av det planlagte tiltaket.
NewConstruction Other

Ny naust, molo og flytebrygge på Tennfjordneset 223

Ny naust på 45 m² med saltak og trevegger plassert i skrånende terreng ved Tennfjordneset 223. Naustet har mønehøyde 4,…

πŸ“ Tennfjordneset 223 Haram
Fotografi av en liten rød bygning med grønt tak (sannsynligvis et jordtak) sett fra en asfaltert overflate. Bakgrunnen viser et fjellandskap med skog og fjell.
NewConstruction Other

Nytt skytterhus med kontor, WC og lager i Vestrefjordvegen 481

Nytt skytterhus oppføres som en brakkerigg bestående av 24 fundamenterte moduler, med samlet bruksareal på ca. 99 m² og…

πŸ“ Vestrefjordvegen 481 Haram
Situasjonsplan som viser bygningers plassering, vegnett, høydemål og eiendomsnummer i et område ved Hildrestranden.
NewConstruction Other

Ny avløpsledning og slamavskiller ved Hildrestandvegen 681

Ny avløpsledning med dimensjon 160 mm PVC/PE legges ca. 125 meter ut i sjøen, minimum 2 meter under laveste lavvann, ti…

πŸ“ Dalmovegen 121 Haram
Et digitalt kart (Google Maps) som viser et område i Gryta med en markør på en spesifikk tomt. Bildet inneholder også håndskrevne notater om adresse og drivhus.
Demolition Other

Riving av drivhus

Saken gjelder søknad om tillatelse til riving av et drivhus på eiendommen.

πŸ“ Grytastrandvegen 507 Haram
Fotografi av en hvit villa med mørk takflate, sett fra en vei med en hvit hekk i forgrunnen.
Rehabilitation Other

Vesentlig reparasjon av pipe i Roskliå 15, Nærbø

Vesentlig reparasjon av eksisterende pipe etter pipebrann i bolig på Roskliå 15, Nærbø. Prosjektet omfatter utbedring a…

πŸ“ Roskliå 15
🏗️
Extension Other

Oppføring av anneks på eiendom Gnr 103 Bnr 175

Ny frittstående anneks bygges på eiendommen Gnr 103 Bnr 175. Bygget vil fungere som et mindre tilleggsbygg til hovedbol…

πŸ“ Aursfjordveien 1899 Balsfjord
🏗️
Extension Other

Tilbygg på eiendom Gnr 90 Bnr 55

Tilbygg planlegges på eksisterende bygg på eiendommen Gnr 90 Bnr 55. Prosjektet innebærer en fysisk utvidelse av bygnin…

πŸ“ Malangsveien 847 Balsfjord
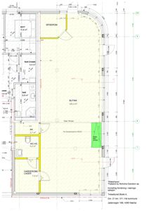
Etasjeplan for en butikk med angitte rom (spiserom, bad, garderobe) og mål.
ChangeOfUse Other

Bruksendring og innredning av forretningslokale i Jadarvegen 16B, Nærbø

Bruksendring av eksisterende rålokale i næringsseksjon til butikk med et areal på ca. 125 m² i Jadarvegen 16B, Nærbø. P…