Extension UnderBehandling Other

Ny carport over eksisterende parkering i Indre Hornnesvika

📍 Indre Hornnesvika 11 , 6809 FØRDE

Nøkkelinfo

Sakstype
Tilbygg
Bygningstype
Other
Bruksareal
139 m²
Kommune
Sunnfjord
Fylke
Vestland
Gnr / Bnr
20 / 106
Saksnummer
2024/8587
Fase
Under behandling

Om byggesaken

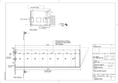
Ny carport på 139,2 m² oppføres som et tilbygg over eksisterende parkeringsplasser på plan 3 ved næringsbygget i Indre Hornnesvika. Carporten bygges i betong med stående kledning opp til gesims, i samme materiale og farge som eksisterende bygg, og har flatt tak. Bygget er planlagt for å romme store varebiler eller små lastebiler, og vil delvis foliere eller fjerne vinduer i eksisterende fasade for å skjerme innsyn til garderober. Carporten har en gesimshøyde på 5,33 meter og er plassert lengst øst i reguleringsområdet, i tråd med reguleringsplanens formål for næring og parkering.

Produkter og materialer

Fasade Stående kledning

🧱 Tre, malt i samme farge som eksisterende bygg

Stående kledning opp til gesims, tilpasset eksisterende bygg

Ytterkledning av carport i tre som matcher eksisterende bygg

Tak Taktekkingsarbeid

Taktekkingsarbeid for carportens flate tak

Legging av taktekking på carportens flate tak

Vinduer Eksisterende vinduer delvis foliert eller fjernet

Antall: 3

3 vinduer delvis foliert for innsynsskjerming, ett vindu kan fjernes

Tiltak for å skjerme innsyn til garderober i eksisterende bygg

Tømrer Montering av trekonstruksjoner

🧱 Tre

Utførelse av trekonstruksjoner for carport

Tømrerarbeid knyttet til carportens trekonstruksjoner

Grunnarbeid Tilpasning av terreng og fundament

Tilpasning av betongvegg under overbygd areal til terreng/fjell

Grunnarbeid for fundamentering av carport

Betong Fundament og dekke

🧱 Betong

Betongkonstruksjon for carport over eksisterende parkeringsplasser

Betongfundament og dekke som bærer carporten

Tak Flatt tak

Flatt tak over carporten

Taktekking for flatt tak på carport

Plantegning

Carport 139.2 m²

Etasje 1 139.2 m²

Rom Areal Vinduer Dører
Carport 139.2 m² 0 0

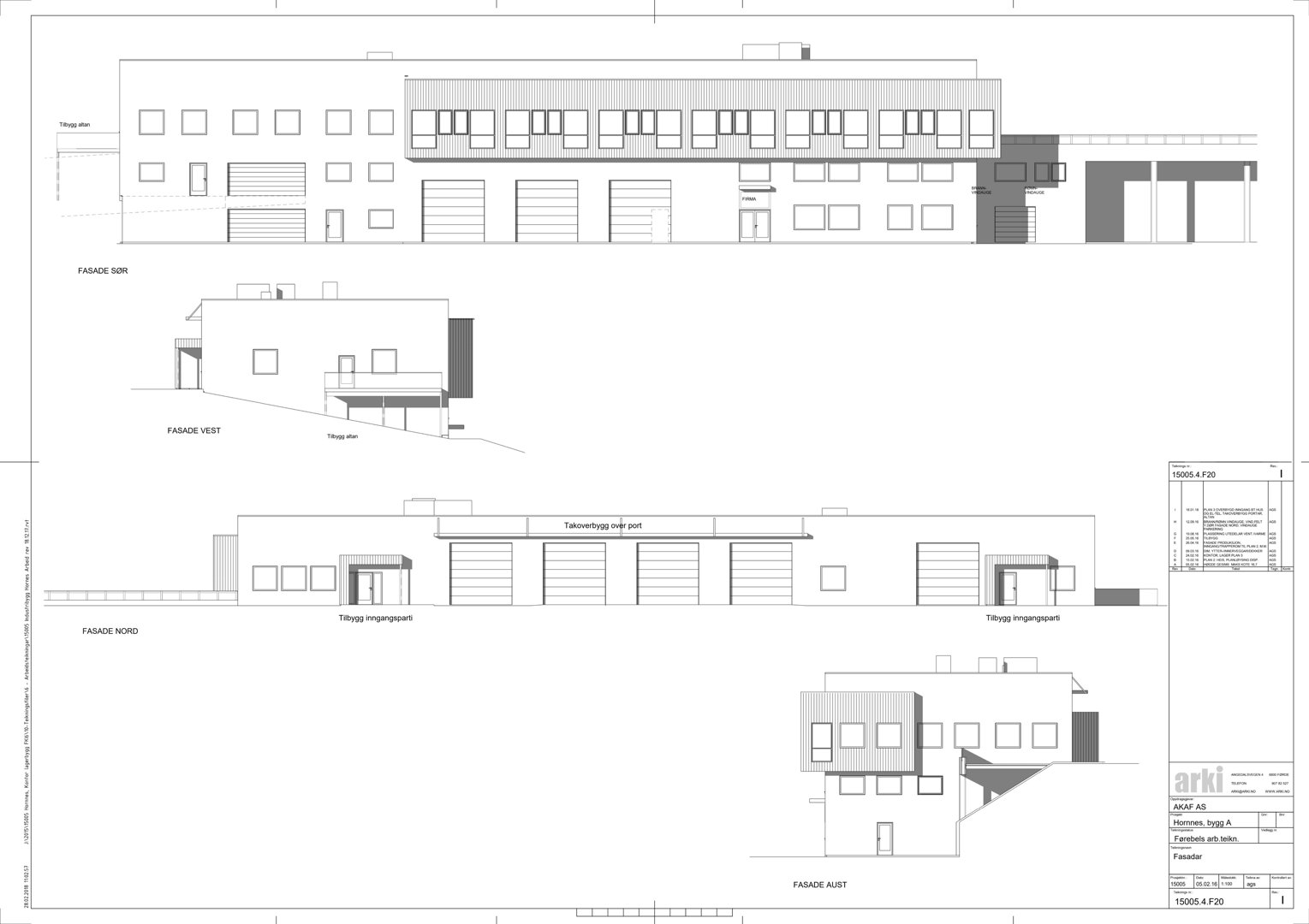
Fasader

Hovedbygg

Sør
Vinduer
10
Dører
1
Synlige etasjer
2
Vest
Vinduer
3
Dører
1
Balkonger
1
Synlige etasjer
2
Nord
Vinduer
1
Dører
2
Synlige etasjer
1
Øst
Vinduer
10
Dører
1
Synlige etasjer
2

Hendelser

22.04.2026 Ber om ferdigattest for carportar på gbnr. 20/106
05.07.2024 Vedtak om oppføring av carportar på gbnr. 20/106
19.06.2024 Søknad om tillatelse i ett trinn 20/106 Indre Hornnesvika