FloorPlan
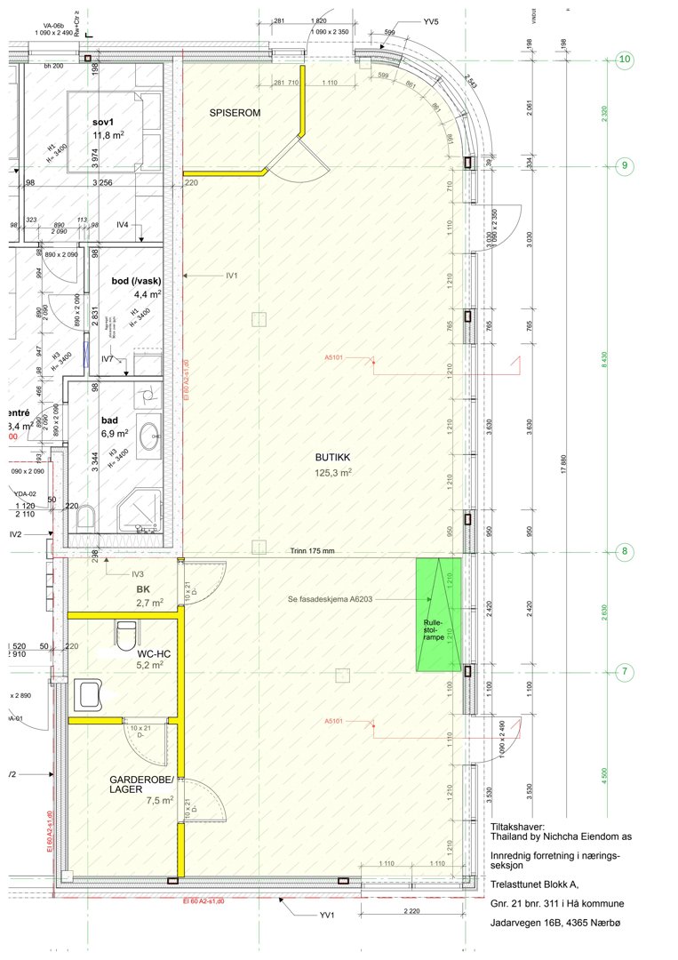
Etasjeplan for en butikk med angitte rom (spiserom, bad, garderobe) og mål.
1 / 4
ChangeOfUse
Rammetillatelse
Other
Bruksendring og innredning av forretningslokale i Jadarvegen 16B, Nærbø
Nøkkelinfo
- Sakstype
- Bruksendring
- Bygningstype
- Other
- Bruksareal
- 125 m²
- Kommune
- Hå
- Fylke
- Rogaland
- Saksnummer
- 2026/1876
- Fase
- Rammetillatelse
Om byggesaken
Bruksendring av eksisterende rålokale i næringsseksjon til butikk med et areal på ca. 125 m² i Jadarvegen 16B, Nærbø. Prosjektet omfatter innredning med oppføring av lettvegger og innvendig kledning, installasjon av sanitær- og ventilasjonsanlegg, samt brannalarmanlegg og ledesystem. Lokalet inkluderer butikkområde, WC-HC, garderobe/lager, bod, bad og spiserom. Tiltaket er i tråd med gjeldende reguleringsplan og omfatter også tilpasning til arbeidsmiljøkrav. Det er etablert ansvarsrett for prosjektering og utførelse hos flere foretak, og det foreligger godkjent gjennomføringsplan.
Produkter og materialer
Dører
Ytterdør og innerdører
Antall: 10
Dører til entré, garderobe, WC-HC, bod, butikk og andre rom
Grunnarbeid
Gulv og fundament
Tilpasning av gulv og fundament for butikkinnredning
Grunnarbeid for innredning av butikklokale
Gulv
Gulvbelegg
Gulvbelegg i butikklokalet og tilhørende rom
Ventilasjon
Ventilasjons- og klimainstallasjoner
Ventilasjons- og klimainstallasjoner iht. prosjektering
Montering av ventilasjonsanlegg og klimainstallasjoner
VVS
Sanitærinstallasjoner
Sanitærinstallasjoner for WC-HC, bad og bod
Installasjon av sanitærutstyr og rørarbeid
Fasade
Fasadevindu
Antall: 4
EI 60 A2-s1,d0, høyde 3400 mm
Fasadevindu i butikklokalet iht. tegninger
Elektro
Brannalarmanlegg og ledesystem
Brannalarmanlegg og ledesystem installasjon
Installasjon av brannalarmanlegg og ledesystem i lokalet
Tømrer
Lettvegger og innvendig kledning
Oppføring av lettvegger og innvendig kledning i butikklokalet
Innredning av rålokale med lettvegger og kledning
Plantegning
Enebolig 158.6 m²
Etasje 1 158.6 m²
| Rom | Areal | Vinduer | Dører |
|---|---|---|---|
| Entré 101 | 3.4 m² | 0 | 1 |
| Garderobe/Lager 102 | 7.5 m² | 0 | 1 |
| WC-HC 103 | 5.2 m² | 0 | 1 |
| BK 104 | 2.7 m² | 0 | 1 |
| Bad 105 | 6.9 m² | 0 | 1 |
| Bod 106 | 4.4 m² | 0 | 1 |
| Sov1 107 | 11.8 m² | 0 | 1 |
| Spiserom 108 | 0.0 m² | 1 | 1 |
| Butikk 109 | 125.3 m² | 4 | 1 |
Hendelser
21.04.2026
21/311/0/2 - Tillatelse - Bruksendring av lokale
17.04.2026
21/311/0/2 - Søknad om bruksendring