ChangeOfUse UnderBehandling Other

Bruksendring av kjeller til oppholdsrom i Hellig Olavs gate 36A

📍 Hellig Olavs gate 36A , 6006 ÅLESUND

Nøkkelinfo

Sakstype
Bruksendring
Bygningstype
Other
Bruksareal
115 m²
Boenheter
4
Kommune
Ålesund
Fylke
Møre og Romsdal
Gnr / Bnr
120 / 52
Saksnummer
2025/7030
Fase
Under behandling

Om byggesaken

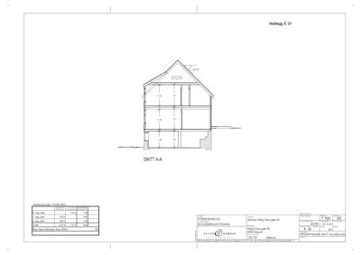
Bruksendring av deler av kjeller i boligbygg fra tilleggsdel (bod/lager) til hoveddel (soverom) med tilhørende ombygging. Tiltaket inkluderer etablering av ny trapp mellom kjeller og 1. etasje, endring av brann- og lydskille med krav til EI 60 vegger og dører, samt fasadeendringer med nye vinduer tilpasset rømningskrav. Kjellerrommene får ventilasjon via åpningsbare vinduer og ventil i yttervegg. Brannalarmanlegg med røykdetektorer installeres, og det legges til rette for manuell slokking. Romhøyde i kjeller er ca. 2,10 meter, og trapp har minimum 0,80 m bredde og 0,9 m rekkverkshøyde. Bygningen er en eldre bolig med 3 etasjer inkludert kjeller, plassert i brannklasse 2 og risikoklasse 4. Omfattende tekniske krav til brannsikkerhet, lydisolasjon, radon, fukt og inneklima må oppfylles i tiltaket.

Produkter og materialer

Ventilasjon Ventil i yttervegg

Ventilasjon via ventil i yttervegg og åpningsbare vinduer

Sikrer tilfredsstillende luftkvalitet og termisk inneklima i bruksendret rom

Vinduer Rømningsvindu

🧱 Tre med 3-lags glass

Antall: 3

Vindu med minimum høyde 0,60 m, bredde 0,50 m, sum minst 1,50 m, tilrettelagt for rømningsvei

Åpningsbare vinduer i kjeller for dagslys, utsyn og rømningsvei

Grunnarbeid Radonsperre og tetting av sprekker

Tetting av sprekker i kjellergulv ved behov for radonforebygging

Tiltak for å redusere radonkonsentrasjon i bruksendret kjellerrom

Brannvern Manuelt brannslokkeutstyr

Godkjent håndslokkeapparat i boenheten

Tilrettelegging for manuell slokking i boenhet

Dører Brannklassifisert dør EI 60 Sa

Antall: 1

Dør fra bruksendret rom til felles boder med brannmotstand EI 60 Sa, fri bredde minimum 0,76 m, høyde minimum 2,0 m

Brann- og lydklassifisert dør i branncellebegrensende vegg

Gulv Fuktsperre og membran

Tiltak mot fukt fra grunnen og inneluft i kjellerrom

Fuktsperre og membran for å hindre fuktskader og soppdannelse

Trapper Innvendig trapp i boenhet

🧱 Tre

Antall: 1

Trapp mellom kjeller og 1. etasje med fri bredde minimum 0,80 m, fri høyde minimum 2,0 m, håndløper høyde 0,8-0,9 m

Ny trapp som forbinder bruksendret kjeller med overliggende boenhet

Brannvern Brannalarmanlegg kategori 2

Automatisk brannalarmanlegg med røykdetektorer i kjøkken, stue, soverom og fellesarealer, inkludert kjeller og trapperom

Brannalarmanlegg for tidlig oppdagelse av brann og økt rømningstid

Mur Brannvegg i betong

🧱 Betong

Brannvegg med brannmotstand REI 120 A2-s1,d0

Brannvegg i underetasje som del av brannskille

Isolasjon Lyd- og brannisolasjon i vegger

🧱 Steinull eller tilsvarende

Brann- og lydskille med brannmotstand EI 60 og lydreduksjon R'w minimum 55 dB

Isolasjon i vegger mellom bruksendret rom og øvrige deler av kjeller

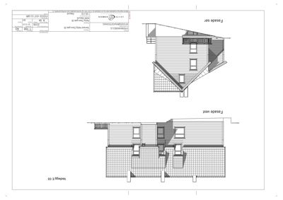
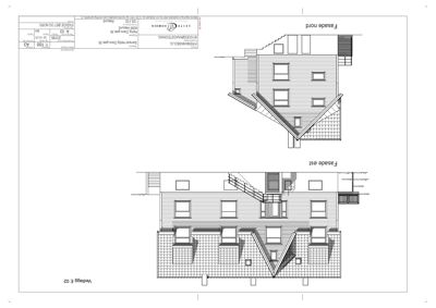
Fasade Endret vindusplassering og form

🧱 Tre og glass

Fasadeendring med nye vinduer i gavlvegger, tilpasset brann- og rømningskrav

Fasadeendringer som følge av bruksendring og nye vinduer

Fasader

FIREMANNSBOLIG

Nord
Materiale
Tre
Taktype
Saltak
Vinduer
5
Dører
0
Synlige etasjer
3
Øst
Materiale
Tre
Taktype
Saltak
Vinduer
6
Dører
1
Balkonger
1
Synlige etasjer
2

Enebolig

Sør
Materiale
Tre
Taktype
Saltak
Vinduer
6
Dører
0
Synlige etasjer
2
Vest
Materiale
Tre
Taktype
Saltak
Vinduer
4
Dører
0
Balkonger
1
Synlige etasjer
2

Hendelser

21.04.2026 Gbnr. 120/52 - Korrespondanse - Hellig Olavs gate 36A - Bruksendring kjeller
19.03.2026 Gbnr. 120/52 - Påminnelse om søknad - Hellig Olavs gate 36A - Bruksendring kjeller
25.06.2025 Gbnr. 120/52 - Tilbakemelding om mangler - Hellig Olavs gate 36A - Bruksendring kjeller
28.05.2025 Gbnr. 120/52 - Vedrørende søknad - Hellig Olavs gate 36A - Bruksendring kjeller
28.05.2025 Gbnr. 120/52 - Søknad om rammetillatelse - Hellig Olavs gate 36A - Bruksendring kjeller