ChangeOfUse Rammetillatelse Other

Bruksendring og reparasjon i Rikets sal, Hørtevegen 22, Gvarv

📍 Hørtevegen 22 , 3810 GVARV

Nøkkelinfo

Sakstype
Bruksendring
Bygningstype
Other
Bruksareal
295 m²
Boenheter
1
Kommune
Midt-Telemark
Fylke
Telemark
Gnr / Bnr
175 / 58
Saksnummer
26/6930
Fase
Rammetillatelse

Om byggesaken

Bygget består av Rikets sal, et menighetshus med totalt 232,48 m² BRA i 1. etasje og et tilhørende eneboligbygg med 62,9 m² BRA i 2. etasje. Prosjektet omfatter sammenslåing av to bruksenheter til én bruksenhet, hvor leiligheten i 2. etasje gjøres om til møterom (17,3 m²), teknisk rom (25,2 m²) og gang med trapp (10,4 m²). Det utføres vesentlig reparasjon og utskifting av vinduer like for like, samt utskifting av ventilasjonsanlegg. Byggets arkitektur og fasade endres ikke, og det totale bygningsarealet forblir uendret. Fasader er i tre med saltak og flatt tak, og bygget har en trapp. Prosjektet er i fase tillatelse gitt, og skal avsluttes med ferdigattest.

Produkter og materialer

Fasade Trepanel kledning

🧱 tre

Eksisterende stående trepanel, ikke søknadspliktig fasadeendring

Fasade med stående trepanel, beholdes uendret

Gulv Innvendige gulv

Innvendige gulv i møterom, teknisk rom og gang, oppgradering etter bruksendring

Ventilasjon Ventilasjonsanlegg

Antall: 1

Eksisterende ventilasjonsanlegg skiftes ut

Nytt ventilasjonsanlegg for hele bygget

Vinduer Fasadevindu i tre

🧱 tre

Antall: 14

Vinduer skiftes ut like for like, i henhold til direktoratets vurdering som vesentlig reparasjon eller endring

Utskifting av 14 fasadevinduer i tre, med samme utforming og materialvalg som eksisterende

Dører Innvendige dører

Antall: 10

Innvendige dører i møterom, teknisk rom, gang og andre rom i 1. og 2. etasje

VVS Sanitærinstallasjoner

Oppgradering av sanitærinstallasjoner i forbindelse med bruksendring

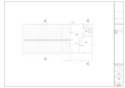
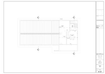
Tak Saltak og flatt tak

🧱 tre og taktekking

Saltak på hovedbygget og flatt tak på tilbygg

Eksisterende taktekking beholdes, ingen endring i takform

Elektro El-installasjoner

Oppgradering av el-installasjoner i forbindelse med bruksendring og teknisk rom

Trapper Innvendig trapp

Antall: 1

Trapp mellom 1. og 2. etasje i eneboligbygget

Innvendig trapp i eneboligbygget

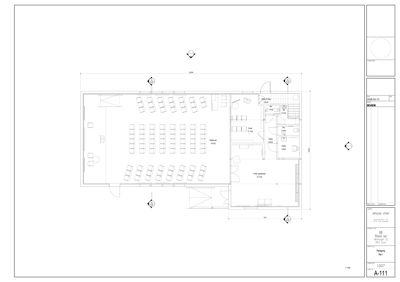
Plantegning

Rikets sal 232.5 m²

Etasje 1 232.5 m²

Rom Areal Vinduer Dører
Rikets sal 101 141.0 m² 4 2
B-sal 102 17.1 m² 0 1
Gang 103 6.5 m² 0 2
Entre, garderobe 104 41.1 m² 0 1
Gang 105 4.6 m² 0 1
Wc 106 1.4 m² 0 1
BK 107 5.7 m² 0 1
Wc 108 2.3 m² 0 1
HelWc 109 4.9 m² 0 1

Enebolig 62.9 m²

Etasje 2 62.9 m²

Rom Areal Vinduer Dører
Gang 201 10.4 m² 0 2
Teknikkrom 202 25.2 m² 0 1
Møterom 203 17.3 m² 0 1

Fasader

Rikets Sal

Vest
Materiale
Tre
Taktype
Flatt tak
Vinduer
2
Dører
2
Synlige etasjer
1
Øst
Materiale
Tre
Taktype
Flatt tak
Vinduer
1
Dører
1
Synlige etasjer
1
Sør
Materiale
Tre
Taktype
Saltak
Vinduer
3
Dører
0
Synlige etasjer
1
Nord
Materiale
Tre
Taktype
Saltak
Vinduer
0
Dører
1
Synlige etasjer
1
Ukjent
Taktype
Saltak
Høyde
2.6 m
Vinduer
0
Dører
4
Synlige etasjer
1

Hovedbygg

Nordvest
Taktype
Flatt tak
Vinduer
4
Dører
1
Synlige etasjer
1
Sørvest
Taktype
Saltak
Vinduer
3
Dører
0
Synlige etasjer
1
Sørøst
Taktype
Flatt tak
Vinduer
4
Dører
1
Synlige etasjer
1
Nordøst
Taktype
Saltak
Høyde
6.6 m
Mønehøyde
9.3 m
Vinduer
1
Dører
2
Synlige etasjer
1

Hendelser

15.04.2026 Tillatelse til tiltak - 175/58 - Bruksendring som er sammenslåing og reperasjon/endring av bygg
15.04.2026 Revidert plantegning 2 etasje med BRA arealer
16.03.2026 Søknad om tillatelse i ett trinn 175/58 Hørtevegen 22