ChangeOfUse Avslatt Other

Bruksendring og ombygging av låve til bolig, Revesandveien 99, Arendal

📍 Revesandveien 99 , 4818 FÆRVIK

Nøkkelinfo

Sakstype
Bruksendring
Bygningstype
Other
Bruksareal
510 m²
Boenheter
1
Kommune
Arendal
Fylke
Agder
Gnr / Bnr
206 / 24
Saksnummer
2025/14276
Fase
Avslått

Om byggesaken

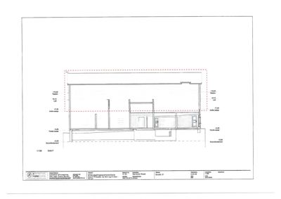
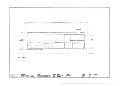
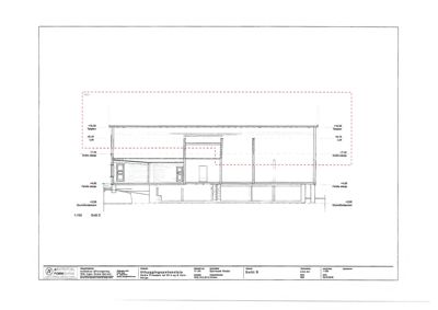
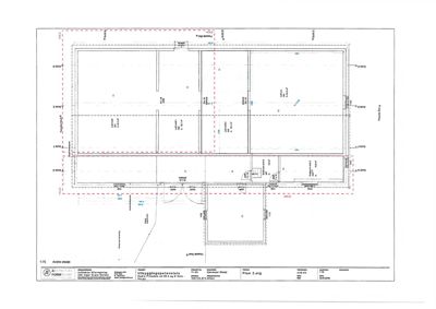
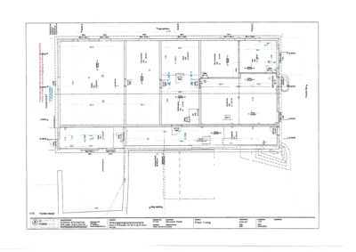
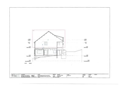
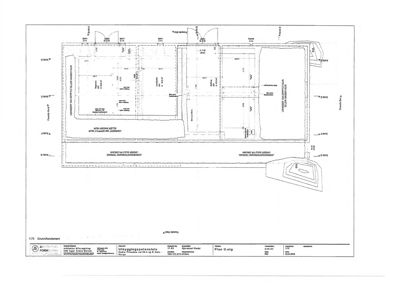
Låven på Storeng, Revesandveien 99, er en historisk laftet tømmerkasse fra 1807-1812 på ca. 510 m² BRA, som skal bruksendres fra landbruksformål til boligformål. Bygningen er 22 m lang, 12 m bred og 11 m høy, med to etasjer og kjeller, og har en svalgang i bindingsverk mot vest. Tiltaket inkluderer omfattende innvendige ombygginger med nye våtrom, reparasjon og endring av etasjeskillere, etablering av pipe og ildsted, samt fasadeendringer med nye vinduer og takvinduer, samtidig som låvens opprinnelige karakter og kulturhistoriske verdi skal ivaretas. Grisehuset fra 1960-tallet rives. Bygningen er i kritisk teknisk tilstand med store råteskader og borebilleangrep, og det anbefales omfattende rehabilitering eller delvis nybygg med gjenbruk av bygningsdeler. Tiltaket er i tråd med vern gjennom bruk-prinsippet og skal sikre låvens bevaring som del av et helhetlig kulturmiljø på gården Storeng.

Produkter og materialer

Tømrer Innvendige konstruksjoner og bindingsverk

🧱 Tre

Reparasjon og endring av etasjeskillere, oppstøtting med strekkfisker, utskifting av råteskadet tømmer

Innvendige konstruksjonsarbeider for å tilpasse bygget til boligformål og sikre bæreevne

Pipe Tradisjonell pipe og ildsted

🧱 Mur og tegl

Antall: 1

Etablering av pipe og ildsted med tradisjonell materialbruk og skånsom plassering

Ny pipe og ildsted tilknyttet boligfunksjon

Isolasjon Isolerte rom innenfor tømmerkasse

🧱 Mineralull eller tilsvarende

Isolering av nye rom i låven, isolert gulv og tak, ikke full isolering av hele låven

Isolasjon for oppvarmede rom innenfor eksisterende konstruksjon

Grunnarbeid Fundamenter og terrengmurer

🧱 Betong og stein

Oppgradering av kjeller, fundamenter og gulv på grunn med terrengmurer i svalgang

Forbedring av fundament og drenering for å sikre byggets bæreevne og fuktsikring

VVS Våtrom og røropplegg

Etablering av nye våtrom som kjøkken, bad og vaskerom i kjeller og øvrige etasjer

Nye våtrom med tilhørende VVS-installasjoner

Tak Saltak med takstein

🧱 Gjenbruk av takstein, nytt undertak og taksperrer

Antall: 1

Skifte hele taket med gjenbruk av takstein, nye taksperrer og undertak

Rehabilitering av tak med utskifting av råteskadet undertak og forsterkning av takkonstruksjon

Maling Utvendig trepanel

🧱 Maling

Maling av trepanel på fasader etter utskifting og reparasjon

Overflatebehandling av fasader for vern og estetikk

Dører Labankdører og glassdører

🧱 Tre

Antall: 3

Glassdører innenfor eksisterende låvedører, labankdør som utenpåliggende skyvedør

Nye dører i fasader, bevaring av eksisterende låvedører

Betong Kjeller og grunnmur

🧱 Betong

Oppgradering av kjeller og grunnmur

Rehabilitering av kjellerrom og grunnmur for bedre stabilitet

Utendørs Fjerning av grisehus og vegetasjon

Riving av betong grisehus fra 1960-tallet, fjerning av klatreplante på sørvest vegg

Fjerning av ikke-verneverdig tilbygg og vegetasjon som skader bygget

Fasade Trepanel og bindingsverk

🧱 Tre

Beholde eksisterende fasadekarakter, skifte ødelagt kledning, glassfasader i svalgang

Fasadeendringer med bevaring av uthuskarakter, utskifting av skadet kledning og etablering av glassfasader i svalgang

Elektro Ventilasjon og lys

Tradisjonelle ventiler og vinduer med luftemulighet, ingen moderne ventilasjonsanlegg

Ventilasjon og dagslys tilpasset vern av kulturminne

Vinduer Tradisjonelle vinduer og takvinduer

🧱 Tre, isolerglass

Antall: 6

Takvinduer M80x160, nye vinduer som kopi av eksisterende, glassfelt i tre på bakside

Nye og utskiftede vinduer i fasader, inkludert takvinduer for dagslys

Fasader

Enebolig

Sør
Materiale
Tre
Taktype
Saltak
Vinduer
5
Dører
2
Synlige etasjer
2

Hovedbygg

Nord
Materiale
Tre
Taktype
Saltak
Vinduer
2
Dører
1
Synlige etasjer
2

Utbyggingspotensiale

Øst
Materiale
Tre
Taktype
Flatt tak
Vinduer
6
Dører
0
Synlige etasjer
1

Hendelser

20.04.2026 206/24 - Avslutter saken
02.07.2025 206/24 - Trekker klagen
26.06.2025 206/24/0/0 - Revesandveien 99 - Oversendelse av klage
14.05.2025 206/24 - Klage til Statsforvalteren