ChangeOfUse Rammetillatelse Other

Tilbygg og bruksendring på småbruk, Ytre vei 463

📍 Ytre vei 463 , 4905 TVEDESTRAND

Nøkkelinfo

Sakstype
Bruksendring
Bygningstype
Other
Bruksareal
52 m²
Kommune
Tvedestrand
Fylke
Agder
Gnr / Bnr
9 / 11
Saksnummer
2026/128
Fase
Rammetillatelse

Om byggesaken

Ny tilbygg på 6,7 m² til hovedhus med nytt bad og inngang, samt overbygg på 10,2 m² over eksisterende terrasse. Eksisterende bu utvides med et tilbygg på 29,8 m² og endres fra bod til anneks med soverom, bad og hems. Tilbygget til annekset plasseres vekk fra gårdstunet for å bevare historisk kontekst. Totalt bebygd areal etter tiltaket blir 172 m². Bygningene har trevegger, saltak med teglstein og tradisjonelle vinduer, med tilpassede moderne løsninger i tilbygget til annekset. Det etableres vann- og kloakktilkobling til bad i hovedhus og anneks.

Produkter og materialer

Gulv Innvendige gulv i tilbygget bad og anneks

Gulv i nye bad og anneks, antatt flis eller annet egnet materiale for våtrom

Dører Ytterdører til anneks og hovedhus

🧱 Tre

Dør til anneks med utgang til terrasse og tun, lav dør til terrasse fra stue i hovedhus

Ytterdører for nye innganger og utganger

VVS Vann- og kloakktilkobling

Nye vann- og kloakkledninger med foreslått trase tilkoblet kommunalt anlegg i Kvastadkilen

Vann- og avløpsinstallasjoner til bad i hovedhus og anneks

Isolasjon Isolasjon i nye konstruksjoner

Isolasjon i vegger, tak og gulv i tilbygget og anneks for å oppnå TEK17 krav

Vinduer Tradisjonelle vinduer og store glassflater

🧱 Tre, malt

Vinduer i tilbygget hovedhus med tradisjonelle sprosser, anneksvinduer malt rødfarge, stort glassfelt uten inndeling ved terrasse

Vinduer til tilbygget og overbygg, tilpasset eksisterende stil

Tak Saltak med teglstein

🧱 Teglstein

Saltak med teglstein på hovedhus og anneks, pulttak over terrasse med 10 graders takvinkel

Taktekking for hovedhus, anneks og overbygg terrasse

Fasade Trevegger med tradisjonell kledning

🧱 Tre, hvitmalte tilbygg, selvgrånende kledning på anneks

Tilbygg hovedhus og anneks med trepanel, anneks kledd med selvgrånende kledning

Fasadematerialer for tilbygget til hovedhus og anneks, tilpasset eksisterende bebyggelse

Bad Nytt bad i hovedhus og anneks

Antall: 2

Bad på 4 m² i hovedhus og bad i anneks med tilkobling til offentlig vann og kloakk

Innvendige våtrom med sanitærinstallasjoner

Terrasse Overbygg terrasse

🧱 Tre, glass

Antall: 1

Overbygg på 10,2 m² med pulttak og skjermvegg med fastvindu mot sørøst

Tak over eksisterende terrasse for værbeskyttelse

Tømrer Bygging av tilbygg og overbygg

Tømrerarbeid for tilbygg til hovedhus og anneks, samt overbygg terrasse

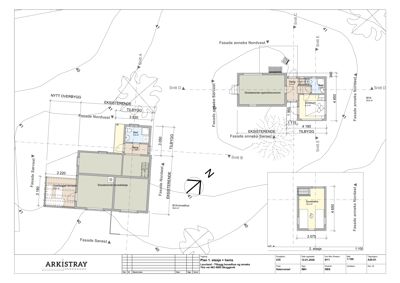
Plantegning

Enebolig 58.9 m²

Etasje 1 58.9 m²

Rom Areal Vinduer Dører
Stue 26.4 m² 3 1
Soverom 15.0 m² 1 1
Gang 2.7 m² 0 1
Bad 4.0 m² 0 1

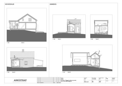
Fasader

Enebolig

Sørvest
Materiale
Tre
Taktype
Saltak
Takmat.
Tegl
Høyde
3.4 m
Mønehøyde
4.7 m
Vinduer
3
Dører
1
Synlige etasjer
2
Nordvest
Materiale
Tre
Taktype
Saltak
Takmat.
Tegl
Høyde
3.2 m
Mønehøyde
4.4 m
Vinduer
2
Dører
0
Synlige etasjer
2
Nordøst
Materiale
Tre
Taktype
Saltak
Takmat.
Tegl
Høyde
4.2 m
Mønehøyde
46.6 m
Vinduer
3
Dører
0
Synlige etasjer
1
Sørøst
Materiale
Tre
Taktype
Flatt tak
Takmat.
Tegl
Høyde
3.2 m
Mønehøyde
46.6 m
Vinduer
4
Dører
1
Synlige etasjer
1
Vest
Materiale
Tre
Taktype
Saltak
Høyde
4.6 m
Vinduer
2
Dører
1
Synlige etasjer
1

Hendelser

06.03.2026 Vedtak: Ytre vei 463, rammetillatelse 9/11
06.03.2026 Ytre vei 463 Supplering av søknad 9/11
10.02.2026 Mangelbrev 9/11 - Ytre vei 463
13.01.2026 Ytre vei 463 Søknad om rammetillatelse 9/11