Facade
Fasadetegning som viser bygningens utseende fra ulike vinkler (front, side og bak) med angitte mål og fargevalg.
1 / 3
FacadeChange
Soeknad
Other
Fasadeendring og støttemur ved kontorlokaler, Dammenvegen 2
📍 Dammenvegen 2 , 2414 ELVERUM
Nøkkelinfo
- Sakstype
- Fasadeendring
- Bygningstype
- Other
- Bruksareal
- 100 m²
- Kommune
- Elverum
- Fylke
- Innlandet
- Gnr / Bnr
- 30 / 871
- Saksnummer
- 2026/2037
- Fase
- Søknad
Om byggesaken
Tiltaket omfatter fasadeendring og oppføring av ny støttemur rundt varemottak ved kontorlokaler i Dammenvegen 2, Elverum. Bygget er ettetasjes med flatt tak og platemontasje på fasadene. Det totale arealet er 100,5 m² fordelt på flere stillerom, trapperom/gang, vindfang og varemottak. Fasaden mot vest og nord har til sammen 32 vinduer og 2 dører, og det er pipe på bygget. Den nye støttemuren føres opp 1 meter over terreng og fungerer også som rekkverk.
Produkter og materialer
Fasade
Platemontasje
🧱 Sinusprofil 26, t=0,5mm Lindab, farger lys grå NCS S 2005-G60Y, blygrå RAL 7024, og beslag rundt vinduer RAL 9010
Fasade med platemontasje i sinusprofil 26, t=0,5mm Lindab, farger lys grå og blygrå, beslag rundt vinduer i RAL 9010
Fasadeendring med ny platemontasje og beslag rundt vinduer
Tak
Flatt tak
Antall: 1
Flatt tak over kontorlokalene
Dører
Ytterdør
Antall: 2
Dører i fasade mot vest og nord
Vinduer
Fasadevindu
Antall: 32
Vinduer i fasade mot vest og nord
Mur
Støttemur
Antall: 1
Ny støttemur rundt varemottak, føres opp 1 meter over terreng som rekkverk
Oppføring av ny støttemur rundt varemottak som også fungerer som rekkverk
Trapper
Innvendig trapp
Antall: 1
Innvendig trapp i bygget
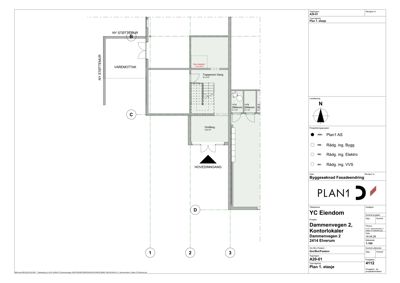
Plantegning
Kontorlokaler 100.5 m²
Etasje 1 100.5 m²
| Rom | Areal | Vinduer | Dører |
|---|---|---|---|
| Stillerom 107A | 3.1 m² | 0 | 1 |
| Stillerom 107B | 3.1 m² | 0 | 1 |
| Stillerom 107C | 3.3 m² | 0 | 1 |
| Trapperom/Gang 101 | 31.4 m² | 0 | 1 |
| Vindfang 102 | 10.9 m² | 0 | 1 |
| Varemottak 103 | 41.8 m² | 0 | 1 |
Fasader
Kontorlokaler
Vest
- Materiale
- Platemontasje
- Taktype
- Flatt tak
- Vinduer
- 14
- Dører
- 1
- Synlige etasjer
- 1
Nord
- Materiale
- Platemontasje
- Taktype
- Flatt tak
- Vinduer
- 18
- Dører
- 1
- Synlige etasjer
- 1
Hendelser
20.04.2026
Svar på nabovarsel - Dammenvegen 2 - 4112
17.04.2026
Nabovarsel til Elverum kommune som eier av Gbnr 30/871 og 30/1185 - tiltak på eiendom Gbnr 30/4