NewConstruction Ferdigattest Other

Nedgravd oljeutskiller i Bernt Ankers Gate 24, Moss

📍 Bernt Ankers gate 24 , 1534 MOSS

Nøkkelinfo

Sakstype
Nybygg
Bygningstype
Other
Kommune
Moss
Fylke
Østfold
Gnr / Bnr
3 / 1224
Saksnummer
2024/5140
Fase
Ferdigattest

Om byggesaken

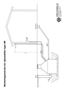
Ny nedgravd oljeutskiller type Odin SUK-SR NS 2 med integrert sandfang på 1 m³ og koalesensfilter installeres for behandling av oljeholdig avløpsvann fra smeltevann og spyling i kjeller på eiendommen Bernt Ankers Gate 24. Utskilleren er i overflatebehandlet stål med innvendige magnesium offeranoder, utstyrt med nedstigningssjakt, rustfri leider, kvadratisk oppdriftsplate i bunnen, og gasstett kumlokk med støpejernsramme. Anlegget har automatisk alarm for oljelagstykkelse (OMS-1) og prøvetakingskum. Installasjonen inkluderer tilkobling til kommunalt spillvannssystem via pumpekum, og anlegget dimensjoneres for minst 1 times oppholdstid ved maksimal vannbelastning. Drifts- og vedlikeholdsrutiner med serviceavtale for tømming, rengjøring og prøvetaking er etablert.

Produkter og materialer

Grunnarbeid Grøft og fundament for nedsetting

🧱 Komprimert finpukk/singel 12-22 mm, eventuelt betongplate for forankring

Antall: 1

Grøft utgravd minst 200 mm større enn utskiller, bunn lagt på komprimert finpukk, forankring mot oppdrift i fjell eller armert betongplate ved behov

Grunnarbeid for nedsetting av oljeutskiller

Annet Serviceavtale for tømming og vedlikehold

Antall: 1

Avtale med Hydroclean AS for tømming, spyling, rengjøring, kontroll, prøvetaking og rapportering, minimum 2 tømminger årlig og årlig prøvetaking

Serviceavtale for drift og vedlikehold av oljeutskilleranlegget

Fasade Gasstett kumlokk med ramme

🧱 Flytende støpejernsramme og gass tett kumlokk

Antall: 2

Kumlokk Ø650 mm for utskiller og Ø400 mm for prøvetakingskum, maks belastning 40 tonn

Kumlokk for oljeutskiller og prøvetakingskum

Annet Alarmanlegg

🧱 OMS-1 kontrollenhet med OMS føler og kabel

Antall: 1

Alarm for overvåkning av oljelagstykkelse med LED indikatorer, reléutgang, IP65 kapsling, driftsspenning 230 VAC

Automatisk alarm for oljelagstykkelse i oljeutskiller for varsling ved behov for tømming

VVS Pumpekum og pumpeledning

🧱 Betongkum og PE/PP rør

Antall: 1

Innebygd pumpekum på utsiden av bygg A, tilkoblet spillvannsanlegg via pumpeledning

Pumpeanlegg for tilkobling av oljeutskiller til kommunalt spillvannssystem

Annet Prøvetakingskum

🧱 Stål med gasstett kumlokk

Antall: 1

Prøvetakingskum montert for kontroll av oljeinnhold, dimensjon Ø400 mm

Kum for prøvetaking av renset avløpsvann etter oljeutskiller

Annet Oljeutskiller komplett

🧱 Overflatebehandlet stål med magnesium offeranoder

Antall: 1

Odin SUK-SR NS 2, våtvolum 2 m³, integrert sandfang 1 m³, koalesensfilter i rustfri ramme, gasstett kumlokk med støpejernsramme, nedstigningssjakt, rustfri leider, kvadratisk oppdriftsplate, maks belastning 40 tonn, testet og godkjent etter NS-EN 858-1 Klasse I

Nedgravd oljeutskiller for rensing av oljeholdig avløpsvann fra vaske- og spyling i kjeller

VVS Rør og tilkoblinger

🧱 Galvanisert rør for lufting, PE og PP rør for innløp og utløp

2” galvanisert lufterør ført minst 4 meter over terreng, tilpassede dimensjoner på innløp og utløp, tilbakeslagssikring iht. NS-EN 1717

Rørinstallasjoner for oljeutskiller, inkludert lufting og tilkobling til kommunalt avløpsnett

Hendelser

15.04.2026 Bernt Ankers Gate 24 - 3/1224 - Ferdigmelding for påslippstillatelse
15.04.2026 Bernt Ankers Gate 24 - 3/1224 - Godkjenning av ferdigmelding for påslippstillatelse
04.07.2024 Bernt Ankers Gate 24 - 3/1224 - vedtak om påslippstillatelse
03.07.2024 Bernt Ankers Gate 24 - 3/1224 - Godkjenning av søknad om påslippstillatelse
21.06.2024 Bernt Ankers Gate 24 - 3/1224 - revidert søknad om påslippstillatelse
18.06.2024 Bernt Ankers Gate 24 - 3/1224 - mangel ved søknad om påslippstillatelse
24.05.2024 Bernt Ankers Gate 24 - 3/1224 - søknad om påslippstillatelse