NewConstruction Rammetillatelse Other

Ny båthus og bryggefront i Flikkaveien 12, Flekkefjord

📍 Flikkaveien 12 , 4406 FLEKKEFJORD

Nøkkelinfo

Sakstype
Nybygg
Bygningstype
Other
Bruksareal
34 m²
Kommune
Flekkefjord
Fylke
Agder
Gnr / Bnr
79 / 9
Saksnummer
25/03175
Fase
Rammetillatelse

Om byggesaken

Ny oppføring av båthus på 34 m² med tilhørende bryggefront ved Flikkaveien 12 i Flekkefjord. Det nye båthuset erstatter et eksisterende falleferdig båthus og er tilpasset det historiske bygningsmiljøet i området. Bygget har saltak og pulttak med tegl som takmateriale, og inneholder 2 vinduer og flere dører. Bryggefronten reetableres som en landingsplass for båt, med begrenset inngrep i strandlinjen. Tiltaket ligger i LNF-område og innenfor 100-metersbeltet langs vassdraget Loja, og det er gitt dispensasjon fra arealformål og byggeforbud. Bygningen skal ikke ha innlagt vann, og overvann føres til terreng. Parkering er ivaretatt på eiendommen. Tiltaket utføres med personlig ansvarsrett for prosjektering og utførelse av tiltakshaver, med innleid profesjonell bistand til grunn- og betongarbeider.

Produkter og materialer

Dører Ytterdører

Antall: 7

Dører på flere fasader, inkludert garasjeporter

Ytterdører og garasjeporter til båthus

Avfallshåndtering Sortering og levering av avfall

Antall: 10

Avfallsmengde ca 10 tonn, hovedsakelig ubehandlet trevirke, sorteres og leveres til godkjent mottak

Avfallshåndtering ved riving av eksisterende båthus

Tømrer Tømrerarbeid vegger og tak

🧱 Ubehandlet tre

Reisverk i ubehandlet tre, kappes opp til ved ved riving av eksisterende bygg

Tømrerarbeid for vegger og tak i nytt båthus

Overvann Overvann føres til terreng

Overvann skal infiltreres eller fordrøyes på eiendommen og føres til terreng

Overvannshåndtering for båthus og bryggefront

Tak Taktekking bølgeblikk

🧱 Bølgeblikk

Eksisterende bølgeblikk taktekking gjenbrukes

Taktekking med bølgeblikk på båthus

Brygge Bryggefront i betong

🧱 Betong

Reetablering av bryggefront som landingsplass for båt, oppstramming av strandlinje

Bryggefront i betong ved båthuset

Vinduer Fasadevindu

Antall: 5

2 vinduer i båthus, 3 vinduer på fasade Sør-Vest

Fasadevinduer i båthus

Grunnarbeid Fundamentering og betongarbeid

Grunn- og betongarbeid utføres med innleid profesjonell bistand

Fundamentering og betongarbeid for båthus og bryggefront

Fasade Tegl taktekking

🧱 Tegl

Saltak og pulttak med tegl som takmateriale

Taktekking med tegl på saltak og pulttak

VVS Ingen innlagt vann

Bygningen skal ikke ha innlagt vann

Ingen vanninstallasjoner planlagt i båthuset

Plantegning

Båthus 34.0 m²

Etasje 1 34.0 m²

Rom Areal Vinduer Dører
Båthus 101 34.0 m² 2 1
Hovedrom 137.4 m² 0 2

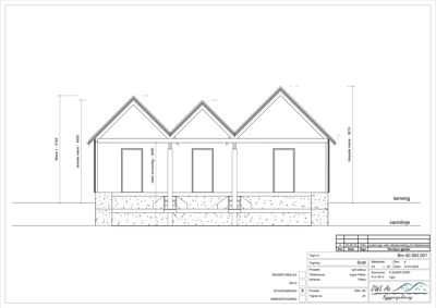
Fasader

Båthus

Sør-Øst
Taktype
Pulttak
Takmat.
Tegl
Vinduer
0
Dører
1
Synlige etasjer
1
Sør-Vest
Taktype
Saltak
Takmat.
Tegl
Vinduer
3
Dører
0
Synlige etasjer
1
Nord-Vest
Taktype
Pulttak
Takmat.
Tegl
Vinduer
0
Dører
1
Synlige etasjer
1
Nord-Øst
Taktype
Saltak
Takmat.
Tegl
Vinduer
0
Dører
3
Synlige etasjer
1

Hendelser

10.04.2026 25/03175-16 Administrativt vedtak om rammetillatelse for oppføring av bryggefront og båthus ved Flikkaveien 12, Gnr. 79, Bnr. 9
23.02.2026 25/03175-15 Svar på spørsmål -Sak 25/00398 - Flikkaveien 12 - båthus og bryggefront
23.02.2026 25/03175-14 Spørsmål angående praksis for byggesøknader
23.02.2026 25/03175-13 Kommentar til Statsforvalterens uttalelse
04.02.2026 25/03175-11 Vedr. BYGG-25/00398 Bryggefront og Båthus
03.02.2026 25/03175-10 Uttalelse til dispensasjon fra Statsforvalteren i Agder
16.01.2026 25/03175-9 Uttalelse fra Norsk maritimt museum
14.01.2026 25/03175-8 Anmodning om uttalelse -Rive eksisterende båthus, oppføring av nytt båthus og bryggefront ved Flikkaveien 12
14.01.2026 25/03175-7 Uttalelse fra Agder fylkeskommune
08.01.2026 25/03175-5 Anmodning om uttalelse -Rive eksisterende båthus, oppføring av nytt båthus og bryggefront ved Flikkaveien 12