NewConstruction Soeknad Other

Ny landbruksbru over Sønstebybekken, Heggenveien 547

📍 Heggenveien 547 , 3360 GEITHUS

Nøkkelinfo

Sakstype
Nybygg
Bygningstype
Other
Kommune
Modum
Fylke
Buskerud
Gnr / Bnr
33 / 10
Saksnummer
2026/1768
Fase
Søknad

Om byggesaken

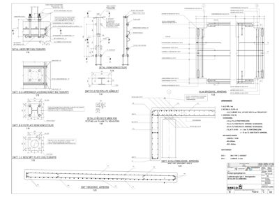
Ny landbruksbru med en spennvidde på 8 meter bygges over Sønstebybekken ved Heggenveien 547. Brua er en betongplatebru med armering i henhold til typegodkjente tegninger fra Skogkurs, dimensjonert for å tåle tømmervogntog opp til 74 tonn. Konstruksjonen inkluderer fundamentering, forskaling, armering, montering av lager og støping av brudekke, samt montering av N2-klasse rekkverk med varmgalvaniserte stålkomponenter og impregnert treverk. Brua har rekkverksstolper i syrefast stål med boltegrupper nedstøpt i betong. Arbeidet omfatter også veifylling på begge sider av brua i en lengde på 15 meter fra bruas senterlinje. Tiltaket inkluderer miljøtiltak for å minimere påvirkning på vassdraget, som legging av ledninger og kabler med fire meters avstand, støpt fast i betong og dekket med stedegne masser. Brua er godkjent for vegklasse 2-8 og har et slitelag på 30 mm betongslitelag.

Produkter og materialer

Annet Glidelager

Glidelager av typen Lastoflon Ga eller tilsvarende montert horisontalt

Glidelager for å håndtere bevegelser i brua

VVS Legging av vannledninger og rør

Nye vannledninger, spillvannsledning og rør for høyspentkabler støpt fast i betong med 4 meters avstand

Installasjon av vann- og avløpsledninger under brua

Grunnarbeid Fundamentering og veifylling

Fundamentering for bru, veifylling på begge sider av brua i 15 meters lengde

Grunnarbeid for bruens fundament og tilstøtende vei

Stål Armering og rekkverksstolper

🧱 B500NC armeringsstål, varmgalvanisert stål, syrefast stål for boltegrupper

Armering i henhold til armeringslister, rekkverksstolper i varmgalvanisert stål, boltegrupper i syrefast stål

Armering i brudekke og fundament, samt rekkverksstolper og boltegrupper

Betong Betongplatebru dekke og fundament

🧱 B-35/MF-45 betong

Betongplatebru med betongklasse B-35/MF-45, inkl. betongslitelag 30 mm på brudekke

Betong til bruens dekke, fundament og landkar

Fasade Rekkverk med impregnert treverk

🧱 CU-impregnert treverk

Rekkverk med impregnert treverk montert på varmgalvaniserte stålstolper

Rekkverk langs bruens sider for sikkerhet

Elektro Kabler for strømforsyning og kommunikasjon

Kabler for strøm og fiber lagt med 4 meters avstand, støpt fast i betong

Elektriske og kommunikasjonskabler under brua

Hendelser

16.04.2026 Søknad om tillatelse i ett trinn - Gnr 33 bnr 10 og gnr 35 bnr 1 - Heggenveien 547 og 549