NewConstruction UnderBehandling Other

Etablering av privat avløpsanlegg på Heiene 19, Modum

📍 Heiene 19 , 3340 ÅMOT

Nøkkelinfo

Sakstype
Nybygg
Bygningstype
Other
Kommune
Modum
Fylke
Buskerud
Gnr / Bnr
115 / 36
Saksnummer
2025/4359
Fase
Under behandling

Om byggesaken

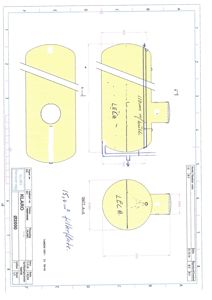
Ny installasjon av et privat biologisk/kjemisk minirenseanlegg med kapasitet for 30 PE på eiendommen Heiene 19 i Modum kommune. Anlegget består av en 30,5 m³ glassfibertank med tilhørende styreskap, pumpekummer, slamsikringskum, biologisk filter med Filtralite, og trykkutløsningskum. Renseanlegget er nedgravd med overdekning av stedlige masser og har inspeksjonsluker i terrengnivå. Avløpsvannet renses med minimum 90 % reduksjon av fosfor og BOF5, og utslipp skjer til Simoa via dykket utløp. Anlegget inkluderer også kjemisk felling av fosfor og hygienisering. Tiltaket omfatter gravearbeider for nedlegging av tanker, ledninger og filteranlegg, samt tilknytning til privat vannverk og eksisterende ledningsnett. Det er krav om serviceavtale og regelmessig vedlikehold for å sikre anleggets funksjon og renseeffekt.

Produkter og materialer

Annet Biologisk/kjemisk minirenseanlegg

🧱 Glassfiber (GRP)

Antall: 1

Klaro 30 PE GRP 2, 30,5 m³ tank, diameter 2400 mm, lengde 7100 mm, høyde 3120 mm, kompressor BECKER DT 4,10 1-fas 230 V, styreskap Klaro Control M/S

Biologisk/kjemisk minirenseanlegg for 30 PE med kjemisk felling av fosfor og hygienisering, godkjent for utslipp med minimum 90 % reduksjon av fosfor og BOF5

Grunnarbeid Graving og tilbakefylling

🧱 Stedlige masser

Graving for nedlegging av tanker, kummer, ledninger og filteranlegg, tilbakefylling med stedlige masser med fyllingsfot ikke overskridende 0,5 m og hellingsgrad 1:3

Grunnarbeid for installasjon av avløpsanlegg med minimal terrenginngrep

Betong Slamsikringskum

Antall: 1

4 m³ Baga slamavskiller

Slamsikringskum for oppsamling av slam fra avløpsanlegget

Betong Pumpekum med kvernpumpe

Antall: 1

Pumpekum med kvernpumpe for trykkutløp

Pumpekum med kvernpumpe for trykkavløp fra renseanlegget

Annet Serviceavtale

Regelmessig service med kontroll av nivåvipper, trykkfølere, pumper og rengjøring av pumpesump, minimum ett besøk annet hvert år

Service og vedlikehold for å sikre anleggets funksjon og renseeffekt

VVS Ledningsnett og rør

🧱 PVC-U og PE

Selvfallsledninger 160 mm PVC-U, stikkledninger 110 mm PVC-U, pumpeledning 40 mm PE

Ledningsnett for tilknytning av avløpsanlegget til utslippssted

Mur Biologisk filter med Filtralite

🧱 LECA Filtralite P

Antall: 2

2 x Klaro 15 PE biologisk etterpoleringsfilter med overrisling til 85 cm LECA Filtralite P i parallell montasje

Biologisk filter for etterpolering av avløpsvann før utslipp

Elektro Styreskap og kompressor

Antall: 1

Styreskap Klaro Control M/S, kompressor BECKER DT 4,10 1-fas 230 V

Elektrisk styring og luftkompressor for renseanlegget

Hendelser

16.04.2026 Supplering av søknad - Gnr 115 bnr 36 - Heiene 19
05.03.2026 Supplering av søknad - Gnr 115 bnr 36 - Heiene 19
14.10.2025 Avviser søknad - Gnr 115 bnr 36 - Heiene 19 - Etablering av nytt/oppgradert privat avløpsanlegg
30.09.2025 Søknad om tillatelse i ett trinn - Gnr 115 bnr 36 - Heiene 19