NewConstruction Igangsettingstillatelse Other

Ny frittliggende boenhet med bod/drivhus i Hordatunvegen 25, Lofthus

📍 Hordatunvegen 25 , 5781 LOFTHUS

Nøkkelinfo

Sakstype
Nybygg
Bygningstype
Other
Bruksareal
57 m²
Boenheter
1
Kommune
Ullensvang
Fylke
Vestland
Gnr / Bnr
176 / 123
Saksnummer
2024/1211
Fase
Igangsettingstillatelse

Om byggesaken

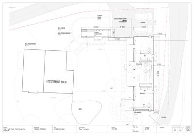
Ny frittliggende boenhet på 57,2 m² BRA med saltak og skifertekking, oppført på eiendom i Hordatunvegen 25, Lofthus. Bygget inneholder oppholdsrom, kjøkken, bad, soverom, sluse og bod/drivhus på 10,4 m² med flatt tak. Bygget er plassert i et skjermet tun sammen med eksisterende bolig og utebod, med trinnfri adkomst vurdert. Bygget er prosjektert i henhold til TEK17 med isolasjonskrav, balansert ventilasjon og tilgjengelighet. Eiendommen har dispensasjon fra regulert arealformål "Offentlig bygg - Undervisning" til boligformål. Skredfarevurdering viser at området har tilstrekkelig sikkerhet mot skred i sikkerhetsklasse S2/S3. Det er etablert tilstrekkelig slokkevannskapasitet via brannkum og vannverk. Prosjektet har gjennomføringsplan og ansvarserklæringer for prosjektering og utførelse.

Produkter og materialer

Ventilasjon Balansert ventilasjon

Antall: 1

Balansert ventilasjon i henhold til TEK17

Ventilasjonssystem for boenhet

Tak Flatt tak

Antall: 1

Flatt tak på bod/drivhus

Tak Saltak

🧱 Skifer

Antall: 1

Saltak med skifertekking på anneks

Vinduer Takvindu

Antall: 0

Ingen takvinduer oppgitt

Vinduer Fasadevindu

🧱 Tre

Antall: 6

Fasadevindu i anneks og eksisterende bolig, tremateriale

VVS Sanitærinstallasjoner

Bad med sanitærutstyr i henhold til TEK17

Sanitærinstallasjoner i bad i anneks

Tømrer Trekonstruksjoner

🧱 Tre

Montering av trekonstruksjoner for boenhet

Trekonstruksjoner for boenhet og bod/drivhus

Betong Betongplate og fundament

🧱 Betong

Betongfundament og plate for boenhet

Fasade Trepanel

🧱 Tre

Trepanel på fasader for anneks, bod/drivhus og eksisterende bolig

Gulv Innvendig gulv

Oppfyller TEK17 krav til isolasjon og tilgjengelighet

Innvendige gulv i boenhet med isolasjon og tilgjengelighet i henhold til TEK17

Grunnarbeid Fundamentering

Fundamentering og grunnarbeid i henhold til prosjektering

Grunnarbeid og fundamentering for ny boenhet

VVS Vannforsyning

Tilknyttet Hordatun Vassverk med dokumentert kapasitet og brannkum

Vannforsyning til boenhet med tilstrekkelig slokkevannskapasitet

Terrasse Betongrampe og skiferheller

🧱 Betong, skifer

Betongrampe og skiferheller på bakkeplan for trinnfri adkomst

Utendørs adkomst og terrasseareal

Dører Ytterdør

🧱 Tre

Antall: 4

Ytterdører i anneks og bod/drivhus, tremateriale

Elektro Sikringsskap

Antall: 1

Sikringsskap i boenhet

Rekkverk Levegg

🧱 Tre

Antall: 1

Levegg i tre for skjerming i tunet

Maling Utvendig maling

Utvendig maling av trepanel

Plantegning

Enebolig 57.2 m²

Etasje 1 57.2 m²

Rom Areal Vinduer Dører
Opholdsrom 101 15.0 m² 1 1
Kjøkken 102 0.0 m² 0 0
Bad 103 4.0 m² 0 1
SDV 104 8.0 m² 1 1
Bad 105 3.0 m² 0 1
Sluse 2 106 1.7 m² 0 1
Sov 2 107 12.9 m² 1 1

Fasader

Anneks

Vest
Materiale
Tre
Taktype
Saltak
Takmat.
Skifer
Vinduer
3
Dører
2
Synlige etasjer
1
Sør
Materiale
Tre
Taktype
Saltak
Vinduer
2
Dører
0
Synlige etasjer
1

Eksisterende bolig

Sør
Materiale
Tre
Taktype
Saltak
Vinduer
4
Dører
0
Synlige etasjer
2

Vedskjul/utebod/drivhus

Sør
Materiale
Tre
Taktype
Flatt tak
Vinduer
0
Dører
0
Synlige etasjer
1

Tun

Sør
Materiale
Tre
Taktype
Flatt tak
Vinduer
0
Dører
0
Synlige etasjer
1

Levegg

Sør
Materiale
Tre
Taktype
Flatt tak
Vinduer
0
Dører
0
Synlige etasjer
1

Hendelser

10.04.2026 Vedtak - Igangsettingstillatelse - Gnr. 176, bnr. 123 - Hordatunvegen 25
30.03.2026 Tilbakemelding om mangler - Gnr. 176, bnr. 123 - Hordatunvegen 25
27.03.2026 Gnr. 176, bnr. 123 - Hordatunvegen 25 - Supplering av søknad
25.03.2026 Gnr. 176, bnr. 123 - Hordatunvegen 25 - Søknad om igangsettingstillatelse
26.06.2025 Gnr. 176, bnr. 123 - Hordatunvegen 25 - Supplering av søknad
20.06.2025 Melding om ufullstendig gjennomføringsplan
20.06.2025 Rammetillatelse - Gnr. 176, bnr. 123 - Hordatunvegen 25
02.04.2025 Gjeld dispensasjon - anneks og bod / drivhus - gnr. 176 bnr. 123 - Hordatunvegen 25 - Ullensvang kommune
26.03.2025 Til uttale - Gnr. 176, bnr. 123 - Hordatunvegen 25 - oppføring av anneks og bod/drivhus
07.03.2025 Gnr. 176, bnr. 123 - Tilbakemeldinger om mangler
07.03.2025 Gnr. 176, bnr. 123 - Hordatunvegen 25 - supplering av søknad
28.01.2025 Gnr. 176, bnr. 123 - Tilbakemeldinger om mangler
08.10.2024 Gnr. 176, bnr. 123 - Hordatunvegen 25 - Supplering av søknad
12.09.2024 Tilbakemelding om manglar - gnr. 176, bnr. 123 - Hordatunvegen 25 - oppføring av anneks og bod/drivhus
22.05.2024 Gnr. 176, bnr. 123 - Hordatunvegen 25 - Søknad om rammetillatelse
22.04.2024 Referat fra førehandskonferanse - gnr. 176, bnr. 123 - Hordatunvegen 25 - oppføring av anneks og bod/drivhus
04.04.2024 Innkalling til førehandskonferanse - gnr. 176, bnr. 123 - Hordatunvegen 25 - oppføring av anneks og bod/drivhus
20.03.2024 Gnr. 176, bnr. 123 - Førespurnad om førhandskonferanse