NewConstruction Rammetillatelse Other

Oppføring av midlertidig boligrigg på Husbyneset 11, Nesna

📍 Husbyneset 11 , 8723 HUSBY

Nøkkelinfo

Sakstype
Nybygg
Bygningstype
Other
Bruksareal
234 m²
Boenheter
11
Kommune
Nesna
Fylke
Nordland - Nordlánnda
Gnr / Bnr
96 / 26
Saksnummer
2025/2376
Fase
Rammetillatelse

Om byggesaken

Ny midlertidig boligrigg i tre med flatt tak, oppført på eiendommen Husbyneset 11, Gnr 96 Bnr 26 i Nesna. Boligriggen er to etasjer høy og har totalt 15 vinduer og flere dører fordelt på alle fasader. Bygget inneholder oppholdsrom, kjøkken, innganger, flere hybelenheter for innkvartering av 11 personer, korridorer, vaskerom og terrasse. Boligriggen er tilrettelagt for midlertidig innkvartering av arbeidere i forbindelse med næringsvirksomhet, med en planlagt brukstid på inntil 2 år. Det er etablert en ny slamavskiller på 9,5 m³ for sanitært avløpsvann, tilknyttet eksisterende avløpsanlegg, med godkjent utslippstillatelse. Bygget er prosjektert og utført av Moelven Byggmodul AS og Nesna Entreprenør AS, med Gabbro Nor AS ansvarlig for grunnarbeider og avløp. Brannsikkerhet er ivaretatt i henhold til TEK17, og det foreligger godkjent brannkonsept. Boligriggen skal fjernes innen 31.03.2028.

Produkter og materialer

Dører Ytterdører i tre

🧱 Tre

Antall: 4

Ytterdører fordelt på fasader, hvite

Ytterdører for boligrigg

VVS Sanitærinstallasjoner og avløp

Sanitærinstallasjoner i moduler av Moelven Byggmodul AS, avløp og septiktank installert av Gabbro Nor AS, slamavskiller 9,5 m³ prefabrikkert tank med tilkobling til eksisterende anlegg

Sanitær- og avløpsløsning for boligrigg med slamavskiller

Betong Fundamentering rigg

🧱 Betong

Fundamentering utført av Nesna Entreprenør AS

Betongfundament for boligrigg

Tømrer Modulbygging og montasje

🧱 Tre/moduler

Moduler levert, montert og sammenstilt av Moelven Byggmodul AS og Nesna Entreprenør AS

Modulbygging av boligrigg

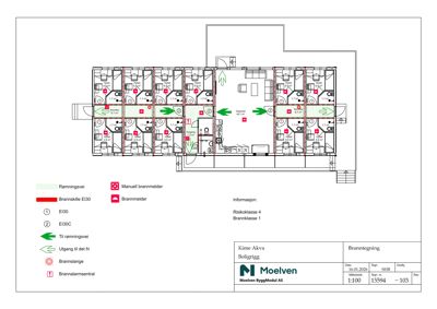
Brannvern Brannkonsept og brannskille

Brannkonsept i henhold til TEK17 kapittel 11, brannskille EI30, branntegning fra Moelven Byggmodul AS

Brannsikkerhetstiltak for boligrigg

Terrasse Terrasse 18 m²

🧱 Tre

Antall: 1

Terrasse på 18 m² med dørtilgang

Utendørs terrasse til boligrigg

Grunnarbeid Fundamentering og grunnarbeider

Graving, sprenging, fylling og komprimering utført av Gabbro Nor AS

Grunnarbeider for boligrigg og slamavskiller

Fasade Fasade i tre med flatt tak

🧱 Tre

Fasade med 8 vinduer og 1 dør mot nord, 1 vindu og 1 dør mot sør, 6 vinduer og 1 dør mot vest, alle med flatt tak

Trefasade med flatt tak på boligrigg

Vinduer Fasadevindu i tre

🧱 Tre

Antall: 15

Vinduer fordelt på fasader, hvite rammer

Vinduer for boligriggens fasader

Plantegning

Slakteri 234.2 m²

Etasje 1 234.2 m²

Rom Areal Vinduer Dører
Opphold 101 44.7 m² 2 1
Kjøkken 102 12.0 m² 1 1
Inngang 103 7.3 m² 0 1
WC 104 2.1 m² 0 1
Hybel 105 6.9 m² 1 1
Hybel 106 6.9 m² 1 1
Hybel 107 6.9 m² 1 1
Hybel 108 6.9 m² 1 1
Hybel 109 6.9 m² 1 1
Hybel 110 6.9 m² 1 1
Hybel 111 6.9 m² 1 1
Hybel 112 6.9 m² 1 1
Korridor 113 6.7 m² 0 0
Korridor 114 6.7 m² 0 0
Terrasse 115 18.0 m² 0 1
Inngang 116 7.3 m² 0 1
Vaskerom 117 1.7 m² 0 1
Vaskerom 118 1.7 m² 0 1
Vaskerom 119 1.7 m² 0 1
Vaskerom 120 1.7 m² 0 1
Vaskerom 121 1.7 m² 0 1
Vaskerom 122 1.7 m² 0 1
Vaskerom 123 1.7 m² 0 1
Vaskerom 124 1.7 m² 0 1

Fasader

Boligrigg

Nord
Materiale
Tre
Taktype
Flatt tak
Vinduer
8
Dører
1
Balkonger
1
Synlige etasjer
2
Sør
Materiale
Tre
Taktype
Flatt tak
Vinduer
1
Dører
1
Balkonger
1
Synlige etasjer
2
Vest
Materiale
Tre
Taktype
Flatt tak
Vinduer
6
Dører
1
Balkonger
1
Synlige etasjer
2

Hendelser

09.04.2026 Tillatelse til tiltak – Boligrigg (midlertidig tiltak)
07.04.2026 SV: Brannkonsept – brakkerigg gnr. 96 bnr. 26
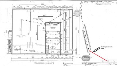
01.04.2026 Tillatelse til tiltak – Utslippstillatelse for slamavskiller på Gnr. 96/26
31.03.2026 Svar vedrørende ansvarsretter og avløpsløsning – behov for avklaringer
31.03.2026 Mangelbrev – krav om supplerende dokumentasjon for behandling av søknad
31.03.2026 Innsending av ansvarsrett og tegninger
31.03.2026 Supplerende dokumentasjon kreves
27.03.2026 Søknad om utslippstillatelse
14.01.2026 Krav til avløp og brannsikkerhet – oppføring av boligrigg på Gnr. 96/26
01.12.2025 Meddelelse
01.12.2025 Byggesøknad Gnr 96 Bnr 26