NewConstruction Rammetillatelse Other

Ny driftsbygning i landbruket på Hyllestadvegen 199

📍 Hyllestadvegen 199 , 6957 HYLLESTAD

Nøkkelinfo

Sakstype
Nybygg
Bygningstype
Other
Bruksareal
171 m²
Kommune
Hyllestad
Fylke
Vestland
Gnr / Bnr
57 / 7
Saksnummer
2026/128
Fase
Rammetillatelse

Om byggesaken

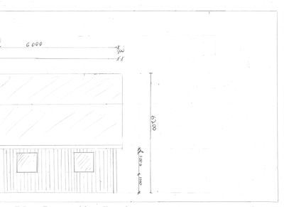
Ny driftsbygning for sauehold med et bruksareal på 171 m² og grunnflate på 171 m² oppføres på eiendommen Hyllestadvegen 199. Bygget har mål 9 x 19 meter, mønehøyde på 6,5 meter og gesimshøyde på 2,5 meter. Bygningen er i to etasjer med trekledning og kombinasjon av flatt tak og saltak. Fasadene har flere vinduer og dører fordelt på alle sider. Bygget plasseres 1 meter fra nabogrense og 14 meter fra nærmeste bygning, og er tilpasset LNF-område i kommuneplanen. Det er ikke planlagt el-nett i bygget, og tiltaket er vurdert å ikke komme i konflikt med naturfare, kulturminner eller landskap.

Produkter og materialer

Grunnarbeid Fundament

Fundamenttegninger foreligger for driftsbygning

Grunnarbeid og fundamentering for driftsbygning

Tak Flatt tak og saltak

Flatt tak på nord og sørfasade, saltak på øst og vestfasade

Taktekking for driftsbygning med flatt tak og saltak

Elektro El-nett

Ingen el-nett planlagt i bygget

Elektrisk anlegg ikke installert i driftsbygning

Vinduer Fasadevindu

Antall: 16

Vinduer fordelt på alle fasader: 5 nord, 4 vest, 4 sør, 3 øst

Fasadevinduer for naturlig lys og ventilasjon

Tømrer Byggkonstruksjon

🧱 Tre

Trekonstruksjon for driftsbygning i to etasjer

Tømrerarbeid for oppføring av driftsbygning

Annet Port

Antall: 1

Port på sørside av bygget, flyttet lengre vest ved endring

Innkjøringsport til driftsbygning

Fasade Trekledning

🧱 Tre

Fasader i tre med kombinasjon av flatt tak og saltak, gesimshøyde 6,5 m

Trekledning for fasader på driftsbygning

VVS Vann og avløp

Privat vannforsyning, ikke innlagt vann, privat avløpsanlegg

VVS-installasjoner for driftsbygning uten vannklosett

Dører Ytterdører

Antall: 4

Dører på nord (1), sør (2), øst (1) fasade

Ytterdører for adkomst til driftsbygning

Fasader

Hovedbygg

Nord
Materiale
Tre
Taktype
Flatt tak
Høyde
6.5 m
Vinduer
5
Dører
1
Synlige etasjer
2
Vest
Materiale
Tre
Taktype
Saltak
Høyde
6.5 m
Vinduer
4
Dører
0
Synlige etasjer
2
Sør
Taktype
Flatt tak
Høyde
6.5 m
Vinduer
4
Dører
2
Synlige etasjer
2
Øst
Taktype
Saltak
Høyde
6.5 m
Vinduer
3
Dører
1
Synlige etasjer
2

Garasje

Sør
Høyde
2.8 m
Vinduer
0
Dører
2
Synlige etasjer
1

Hendelser

10.04.2026 Endre plassering av driftsbygning. Arkivsak 2026/128
10.04.2026 Løyve til tiltak - Gbnr 57/7 - Oppføring av driftsbygning
10.03.2026 Driftsbygning - Gbnr 57/7 - Robert Atterås
17.02.2026 Byggesøknad driftsbygning