NewConstruction Ferdigattest Other

Ny skiundergang med infrastruktur i Jogledalsveien, Fidjeland

📍 Jogledalsveien 114 , 4443 TJØRHOM

Nøkkelinfo

Sakstype
Nybygg
Bygningstype
Other
Kommune
Sirdal
Fylke
Agder
Gnr / Bnr
3 / 96
Saksnummer
2025/296
Fase
Ferdigattest

Om byggesaken

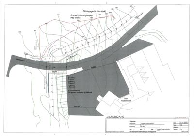
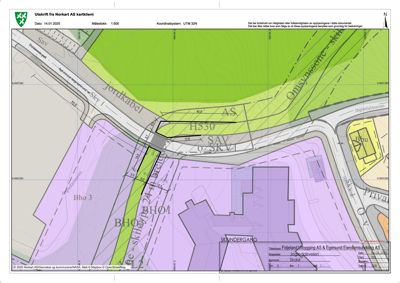
Prosjektet omfatter oppføring av en skiundergang under Jogledalsveien ved Sirdal Høyfjellshotell på eiendommen gnr. 3, bnr. 96. Undergangen er planlagt som en kulvert med tilhørende skråninger og støttemurer, tilrettelagt for skiløpere og økt trafikksikkerhet. Anlegget inkluderer dreneringsgrøfter og sikringsgjerde, og er tilpasset reguleringsplanens krav om planskilt kryssing mellom skiløype og kommunal vei. Prosjektet er gjennomført i samsvar med rammetillatelse, igangsettingstillatelse og ferdigattest, med dokumentasjon på ansvarsrett for prosjektering og utførelse. Det har vært flere klager og rettslige tvister knyttet til eiendomsforhold og bruksrettigheter, men tiltaket er godkjent og ferdigstilt. Skiundergangen har tre utganger, inkludert til Myrene parkeringsområde, og er utformet for universell tilgjengelighet og sikkerhet.

Produkter og materialer

Teknisk VA-anlegg

Tilknytning til kommunalt vann- og avløpsnett, inkl. drenssystem

VA-anlegg for skiundergang, inkludert drenering og overvannshåndtering

Tømrer Støttemurer

🧱 Betong og naturstein

Støttemurer langs skiundergang og skiløype, med natursteinforblending

Støttemurer for terrengarrondering og sikring av skiundergang

Maling Overflatebehandling

Maling og behandling av overflater i henhold til reguleringsplanens krav om mørke jordfarger

Overflatebehandling for å sikre estetisk tilpasning til omgivelsene

Drenering Drensledning

🧱 PVC/plastrør

Antall: 60

Drensrør dimensjon 300 mm, ca. 60 meter langs Jogledalsveien tilkoblet eksisterende grøft

Drensledning fra skiundergang til kommunal grøft for overvannshåndtering

Grunnarbeid Graving og utstikking

Grunnarbeid, innmåling og utstikking for skiundergang og drensgrøfter

Grunnarbeid inkludert graving, innmåling og utstikking for kulvert og tilhørende drensgrøfter

Annet Skilting og trafikkspeil

Skilting for å sikre bruk av skiundergang og trafikkspeil for bedre sikt

Trafikksikkerhetstiltak i tilknytning til skiundergang

Fasade Sikringsgjerde

🧱 Metallgjerde

Sikringsgjerde med høyde 1,2 meter montert langs skiundergang, inkludert gjerde på tvers av trasé ved utløp

Sikringsgjerde for å hindre fall og sikre skiløpere, montert i henhold til godkjent plan

Betong Plasstøpte betongkonstruksjoner

Betongkonstruksjoner for skiundergang og støttemurer

Plasstøpte betongkonstruksjoner for kulvert og støttemurer i skiundergangen

Hendelser

13.04.2026 Vedr. oversendelse av klage
09.04.2026 Foto
08.04.2026 Skiundergang.
24.03.2026 3/96. Klage på ferdigattest skiundergang.
24.03.2026 Oversendelse av klage til endelig behandling
24.03.2026 3/96. Klage på ferdigattest skiundergang.
24.03.2026 Oversendelse av klage til endelig behandling
24.03.2026 Sv: Attached Image
24.03.2026 3/96. Klage på rammetillatelse.
24.03.2026 Sv: skiundergang
05.03.2026 Foreløpig svar - saksbehandlingstid
20.02.2026 Skiundergang
20.02.2026 Skiløype
10.02.2026 Kommentar - Skiundergang Fidjeland på gnr. 3, bnr. 96- Sak nr. 25/296-52
21.01.2026 skiundergang
19.01.2026 Klage på ferdigattest – oversendelse til uttalelse
07.01.2026 Klage på delegert vedtak ferdigattest skiundergang Fidjeland på gnr. 3, bnr. 96- Sak nr. 25/296-52
15.12.2025 3/96. Ferdigattest skiundergang.
09.12.2025 Søknad om ferdigattest for Skiundergang på Gnr.3 Bnr.96, Jogledalsveien.
14.11.2025 VS: Tiltak Svartupsbekken.
14.11.2025 Skal grøften være åpen- Med steinsperringer i løypa
07.11.2025 Tiltak Svartupsbekken
08.08.2025 Skiundergang.
18.07.2025 VS: Skiundergang
03.07.2025 VS: Attached Image
03.07.2025 SV: Drens på kommunal grunn
03.07.2025 skiundernngang
03.07.2025 avløp skiundergang.
03.07.2025 SV: Endring skiundergang
03.07.2025 VS: Endring skiundergang
03.07.2025 SV: Skiundergang.
02.07.2025 SV: Skiundergang.
02.07.2025 3/96. Fidjeland Utbygging AS. Endring av tillatelse, skiundergang. Jogledalen
02.07.2025 SV: Attached Image
02.07.2025 SV: Drens på kommunal grunn
13.06.2025 NB! Vedlegg til søknad om Søknad om endring av gitt tillatelse av skiundergang på Gnr.3 Bnr.96 Jogledalsveien.
13.06.2025 Søknad om endring av gitt tillatelse av skiundergang på Gnr.3 Bnr.96 Jogledalsveien.
11.06.2025 Oversendelse av klage på rammetillatelse
11.06.2025 sikringsgjerde
11.06.2025 VS: Attached Image
11.06.2025 skiundergang
11.06.2025 Klage på vedtak Rammetillatelse.
04.06.2025 Alvorlig feil påvist i Overskjønn LG-2024-154481 den 15.5.2025 referanse dom av LG-2013-158361 den 25.9.2014 -Kopi offentligheten
04.06.2025 Klage på vedtak 16.5.2025- Sak:25/163- 25/296-10 Rammetillatelse Fidjeland Utbygging AS bør trekkes- Gulating Lagmannsrett 15.5.2025 Overskjønn
02.06.2025 3/96. Fidjeland Utbygging AS. Igangsettingstillatelse.
02.06.2025 3/96. Fidjeland utbygging AS. Rammetillatelse for oppføring av skiundergang. Fidjeland
26.05.2025 Sak 25/163 Rammetillatelse for oppføring av skiundergang Fidjeland
26.05.2025 Søknad om igangsettingstillatelse for skiundergang på Gnr.3 Bnr.96 Jogledalsveien.
07.05.2025 VS: Pågående konflikt med Leif Berland- Berland Betong AS- Graveforbud- Nektes å sage skog-trær på gnr. 3, bnr. 1
01.04.2025 SV: Skiundergangen aksepteres av Fidjeland Skitrekk AS i ankesaken etter Agder Jordskifterett ref. adv. Lars Martin Ramsland
01.04.2025 SV: Skiundergangen aksepteres av Fidjeland Skitrekk AS i ankesaken etter Agder Jordskifterett ref. adv. Lars Martin Ramsland
01.04.2025 SV: Det bør etableres en 3 utgang-Inngang mot Myrene parkeringsområde- Ref. PlanID2009016- Tilrettelegge løype 150 meter østover SV: Nabovarsel undergang
19.03.2025 Det bør etableres en 3 utgang-Inngang mot Myrene parkeringsområde- Ref. PlanID2009016- Tilrettelegge løype 150 meter østover SV: Nabovarsel undergang
19.03.2025 Tilskuddsordninger forebyggende trafikksikkerhet
19.03.2025 Skiundergangen aksepteres av Fidjeland Skitrekk AS i ankesaken etter Agder Jordskifterett ref. adv. Lars Martin Ramsland
19.03.2025 Søknad om rammetillatelse for Skiundergang på Gnr.3 Bnr.96 Jogledalsveien.
19.03.2025 Mottatt søkand