NewConstruction Ferdigattest Other

Ny badstue med badetrapp på Strandpromenaden, Kristiansand

📍 Kirkegata 2F , 4610 KRISTIANSAND S

Nøkkelinfo

Sakstype
Nybygg
Bygningstype
Other
Bruksareal
54 m²
Kommune
Kristiansand
Fylke
Agder
Gnr / Bnr
150 / 1745
Saksnummer
25/15585
Fase
Ferdigattest

Om byggesaken

Ny frittstående badstue på 53,5 m² med tilhørende badetrapp og iskulp plassert ytterst på piren ved Strandpromenaden i Kristiansand. Bygget har en mønehøyde på ca. 3,7-3,9 meter over terreng og består av garderobe, mellomrom med utsiktsbenk, badstue, iskulp og teknisk rom. Bygget har flatt og saltak med tre som fasademateriale, flere dører og vinduer, samt terrassebord og rekkverk. Badstuen er universelt utformet og tilrettelagt for allmennheten som et midlertidig tiltak med varighet inntil 8 år. Det er etablert tilkoblinger for vann, avløp og strøm, og tiltaket er godkjent med dispensasjoner fra reguleringsplan og byggeforbud i strandsonen. Det er også lagt vekt på estetisk utforming og dempet belysning for å unngå sjenanse.

Produkter og materialer

Tømrer Limtrekonstruksjon og benker

🧱 Limtre og tre

Limtrekonstruksjon for bæring, avtagbare ospebenker i to høyder, utsiktsbenk

Bærekonstruksjon og sittebenker i badstue

Vinduer Takvindu

🧱 Tre/aluminium

Antall: 6

Takvindu 9x9 og 10x10 cm, 3-lags energiglass, festes utenpå limtrekonstruksjon

Takvinduer for naturlig lys og ventilasjon i badstue og garderobe

Dører Ytterdører og innerdører

🧱 Tre

Antall: 12

Dører 103x212 cm, flere dører til garderobe, badstue, teknisk rom, dusj og vaskerom

Dører for adkomst til alle rom i badstueanlegget

Elektro Belysning og strømtilkobling

LED-striper med dempet lavmelt belysning på vegger og gangsoner, strømtilkobling via kabel i sjø

Elektrisk anlegg for belysning og strøm

Tak Flatt tak og saltak

🧱 Båndtekking platetekking, luftede plater over limtrekonstruksjon

Båndtekking likt som flytende badstu i Nodeviga, luftet takrom

Taktekking for værbestandighet og estetikk

Fasade Trepanel

🧱 Tre

Trepanel på alle fasader, med beslag i overgang mellom betong og yttervegg

Fasadebekledning for estetikk og beskyttelse

Grunnarbeid Terrengtilpasning og grunnarbeid

Flytting av steinmasse for fundamentering, grunnarbeid for frostbeskyttelse

Grunnarbeid for fundamentering av badstue på piren

Rekkverk Utendørs rekkverk

🧱 Tre/metall

Rekkverk på rampe og terrasser, utforming justert i byggefasen

Sikkerhetsrekkverk rundt badstue og rampe

Gulv Membran og gulvbelegg

🧱 Asfaltmembran, gulvbelegg med oppkant

Membran mellom betong og sviller, gulvbelegg i dusjsone sprutsikkert og tett

Vanntett gulv i våtsoner

Blikk Beslag og taktekking

🧱 Metall

Beslag i overgang mellom betong og yttervegg, taknedløp og renner tilpasses

Beslag og taktekking for vanntetting

Betong Betongfundament og støp

🧱 Betong

Betongfundament på eksisterende betongmur, Ribe blokker, sluk og renner

Fundamentering og drenering

Trapper Badetrapp

🧱 Tre og metall

Antall: 1

Badetrapp med vinsj for oppheising ved farlige bølgeforhold

Trapp for trygg adkomst til sjø for bading

Maling Utendørs og innendørs maling

Maling av treflater for beskyttelse og estetikk

Overflatebehandling av treverk

Annet Kunstverksvegg

Antall: 1

Kunstverksvegg på baksiden av anlegget mot plen og brygger

Estetisk element for allmennheten

VVS Sanitærinstallasjoner og avløp

VA-tilkobling til kommunalt nett, gråvannsutslipp via moloen vurdert ikke skadelig

Vann- og avløpsinstallasjoner for badstue og vaskerom

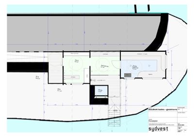
Plantegning

Badstu 53.5 m²

Etasje 1 53.5 m²

Rom Areal Vinduer Dører
Gard Gard 9.4 m² 0 1
Mellomrom mellomrom 8.1 m² 0 1
Badstue Badstue 13.5 m² 0 1
Iskulp iskulp 1.4 m² 0 1
Teknisk Teknisk 0.0 m² 0 0
Teknisk rom Tekn 1.3 m² 0 1
Badstue BD-2 13.5 m² 1 1
Innendørs dusj ID-1 0.0 m² 0 1
Innendørs dusj ID-2 0.0 m² 0 1
Vaskerom V-1 0.0 m² 0 1
Vaskerom V-2 0.0 m² 0 1
Vaskerom V-3 0.0 m² 0 1
Vaskerom V-4 0.0 m² 0 1

Fasader

Badstu

Syd
Materiale
Tre
Taktype
Flatt tak
Høyde
3.0 m
Vinduer
3
Dører
1
Balkonger
1
Synlige etasjer
1
Vest
Materiale
Tre
Taktype
Flatt tak
Høyde
3.1 m
Vinduer
0
Dører
1
Balkonger
1
Synlige etasjer
1
Nord
Materiale
Tre
Taktype
Saltak
Høyde
3.4 m
Vinduer
0
Dører
0
Synlige etasjer
1
Øst
Materiale
Tre
Taktype
Saltak
Høyde
3.3 m
Vinduer
1
Dører
0
Synlige etasjer
1

Hendelser

22.04.2026 2025015585-16 SV: Spm. Strandpromenaden, Badstue- adresseskisse. Ny adresse Kirkegata 2F.
19.03.2026 2025015585-15 Strandpromenaden - piren, gnr. 150 bnr. 1745. Ferdigattest.
19.03.2026 2025015585-14 BYGG-25/02184 - Strandpromenaden - piren 150/1745 - Vedr. vilkår
18.03.2026 2025015585-13 Søknad om ferdigattest 150/1745
20.11.2025 2025015585-10 Strandpromenaden/gjestehavn - 150/1745 - søknad om tillatelse - kabel - kopi av brev til Sydvest Arkitektur AS
18.11.2025 2025015585-9 Strandpromenaden - piren, 150/1745 - badstu, igangsettingstillatelse.
17.11.2025 2025015585-8 Strandpromenaden - piren - Søknad om igangsettingstillatelse 150/1745
16.09.2025 2025015585-7 Strandpromenaden - piren, gnr. 150 bnr. 1745. Dispensasjon og tillatelse til oppføring av badstue.
15.09.2025 2025015585-5 Strandpromenaden - piren 150/1745 - snitt som viser høyder over terreng
15.09.2025 2025015585-6 Sv: 25/02184 - Strandpromenaden - piren 150/1745 Tiltak i sjø - gjestehavna badstu- ansvarlig søker oppgir mønehøyde