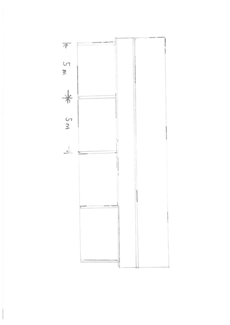
Facade
En tegning som viser en fasade eller en sidevindu av en bygning med angitte mål på 5 meter.
1 / 6
NewConstruction
Soeknad
Other
Ny driftsbygning i landbruket på Kyrkjevegen 101
📍 Kyrkjevegen 101 , 5470 ROSENDAL
Nøkkelinfo
- Sakstype
- Nybygg
- Bygningstype
- Other
- Kommune
- Kvinnherad
- Fylke
- Vestland
- Gnr / Bnr
- 82 / 11
- Saksnummer
- 2026/3294
- Fase
- Søknad
Om byggesaken
Ny driftsbygning for landbruk med samlet areal under 1000 m² oppføres på eiendommen Kyrkjevegen 101. Bygget er en lagerhall/driftsbygning tilknyttet landbruksformål, plassert innenfor byggegrenser uten konflikt med vann, avløp eller strømførende ledninger. Bygningen har saltak og er planlagt uten innlagt vann eller avløp, med takvann ført til terreng. Det er ikke planlagt ny eller endret adkomst til bygget. Bygget er tilpasset gjeldende arealplan for landbruk og reindrift.
Produkter og materialer
Vinduer
Fasadevindu
Vinduer til driftsbygning, antall ikke spesifisert
Elektro
Ingen strømførende linjer i konflikt
Ingen strømførende linjer eller transformator i konflikt med tiltaket
Elektroinstallasjoner ikke spesifisert
Dører
Ytterdør
Ytterdør til driftsbygning
Overvann
Takvann ført til terreng
Takvann føres til terreng, ingen overvannssystem
Overvannshåndtering for driftsbygning
Tak
Saltak
Saltak som takform
Taktekking og konstruksjon for saltak
Grunnarbeid
Byggegrunn og fundamentering
Bygget plasseres innenfor byggegrenser uten fare for flom eller skred
Grunnarbeid for driftsbygning i landbruket
Fasade
Yttervegger og kledning
Fasade og kledning for driftsbygning
VVS
Ingen innlagt vann eller avløp
Bygningen skal ikke ha innlagt vann eller avløp
Ingen VVS-installasjoner planlagt
Tømrer
Bærekonstruksjon og vegger
Tømrerarbeid for lagerhall/driftsbygning i landbruket
Betong
Fundament og plate på mark
Betongfundament og plate for lagerhall/driftsbygning
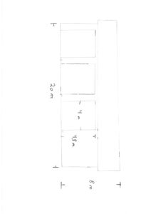
Fasader
Ukjent
Ukjent
- Vinduer
- 0
- Dører
- 0
- Synlige etasjer
- 4
Hovedbygg
Ukjent
- Taktype
- Saltak
- Høyde
- 4.8 m
- Mønehøyde
- 8.3 m
- Vinduer
- 3
- Dører
- 0
- Synlige etasjer
- 1
Hendelser
13.04.2026
Stadfesting på mottatt søknad - Søknad utan ansvarsrett - 82/11
10.04.2026
Søknad om tiltak utan ansvarsrett - 82/11