NewConstruction Ferdigattest Other

Opparbeidelse av vei SV2 med VA-ledninger og støyskjerm i Lerkeveien 14, Asker

📍 Lerkeveien 14 , 1384 ASKER

Nøkkelinfo

Sakstype
Nybygg
Bygningstype
Other
Bruksareal
6,400 m²
Kommune
Asker
Fylke
Akershus
Gnr / Bnr
24 / 107
Saksnummer
20/5994
Fase
Ferdigattest

Om byggesaken

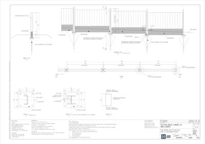
Prosjektet omfatter opparbeidelse av del 1 av vei SV2, inkludert etablering av kjørevei med 6 meters bredde og 2,5 meters fortau, samt tilhørende overvannsledning, spillvannsledning og støyskjerm langs veien. Veien krysser eksisterende Holsfjordledning ved to punkter, hvor det er prosjektert spesielle løsninger for å ivareta ledningens funksjon og sikkerhet, blant annet bruk av lette EPS-masser for å redusere setninger. Det er etablert en støyskjerm bestående av en 2 meter høy voll med 1,5 meter høy tremodulskjerm på toppen, fundamentert på punkt- og stripefundamenter. Prosjektet inkluderer også geotekniske tiltak for stabilisering av jernbanefylling i nærheten, med motfylling og overvåkning av poretrykk. Området har vært gjenstand for omfattende miljøgeologiske undersøkelser og sanering av forurenset grunn. Arbeidene er utført med hensyn til eksisterende infrastruktur, miljø og sikkerhet, og prosjektet er ferdigstilt med midlertidig brukstillatelse og ferdigattest.

Produkter og materialer

Fasade Støyskjerm

🧱 Tremoduler, royalimpregnert tre, betongelementer, stålprofiler S355

2 m høy voll med 1,5 m høy støyskjerm på toppen, fundamentert på punkt- og stripefundamenter, tremoduler med royalimpregnert tre, betongelementer klasse B45, stålprofiler varmforsinket og epoksybehandlet

Støyskjerm langs SV2 for støydemping mot E18

Elektro Gatelys

Gatelys langs SV2, utført i henhold til Asker kommunes veibelysningsnorm

Gatelys for vei SV2

Grunnarbeid Sanering av forurenset grunn

🧱 Fjerning og håndtering av forurensede masser, gjenbruk av masser innenfor tiltaksområdet

Sanering av forurenset grunn i henhold til tiltaksplan, håndtering av masser i tilstandsklasse 1 og 2, fjernet asfalt med kreosotforurensning

Miljøgeologisk oppfølging og sanering av forurenset grunn i tiltaksområdet

Tømrer Støyskjerm tremoduler

🧱 Royalimpregnert tre, skruer syrefaste A4

Tremoduler med bordforskaling, avfasing 20 mm, maling RAL 7008 Khakigrau

Tremoduler for støyskjerm langs SV2

Grunnarbeid Geotekniske tiltak

🧱 EPS-blokker, betongfundamenter, armering B500NC

EPS-fylling for lett masse over Holsfjordledningen, motfylling for stabilisering av jernbanefylling, betongfundamenter for støyskjerm

Geotekniske tiltak for stabilisering og setningsreduksjon

Vei Kjørevei og fortau

🧱 Asfalt, grus, drenerende masser

Kjørevei 6 m bred, fortau 2,5 m bred, normalprofil og overbygning iht. tegninger

Opparbeidelse av kjørevei SV2 med fortau

VVS Overvannsledning

🧱 PVC og betongrør, dimensjoner Ø500, Ø600, Ø800 mm

Overvannsledninger med sandfang, fordrøyningsbasseng, erosjonssikring ved utløp

Nye overvannsledninger for håndtering av veivann langs SV2

VVS Spillvannsledning

🧱 PVC rør, dimensjoner ikke spesifisert

Spillvannsledninger for avløp fra nye utbyggingsfelter, inkludert kryssing av Holsfjordledningen

Nye spillvannsledninger langs SV2

Betong Betongelementer støyskjerm

🧱 Betong fasthetsklasse B45, armering B500NC

Betongelementer for støyskjerm, inkl. form og armering, fundamenter

Betongelementer for støyskjerm langs SV2

Grunnarbeid Erosjonssikring

🧱 Betong, stein

Erosjonssikring ved utløp av stikkrenner Ø800 mm

Erosjonssikring ved overvannsutløp

Hendelser

21.04.2026 24/107 m.fl. - Ferdigattest - Opparbeidelse del 1 av SV2 - Overvannsledning, spillvannsledning og støyskjerm
26.03.2026 24/107 Søknad om ferdigattest
21.12.2022 24/107 m.fl. - Sluttrapport forurenset grunn - Opparbeidelse del 1 av SV2 - Overvannsledning, spillvannsledning og støyskjerm
10.10.2022 24/107 m.fl. - Oversendelse bekreftelse på ferdigstilte arbeider med betydning for sikkerheten - Opparbeidelse del 1 av SV2
22.09.2022 24/107 m.fl. - Midlertidig brukstillatelse - Opparbeidelse del 1 av SV2 - Overvannsledning, spillvannsledning og støyskjerm
15.09.2022 24/107 m.fl. - Søknad om midlertidig brukstillatelse - Opparbeidelse del 1 av SV2
22.02.2021 24/107 m.fl. - Vedrørende feilsendt vedtak om tillatelse til endringer
18.02.2021 24/107 m.fl. - Spørsmål til mottatt sak - Opparbeidelse del 1 av SV2 - Overvannsledning, spillvannsledning og støyskjerm
09.02.2021 24/107 m.fl. - Godkjent søknad om endringer - Opparbeidelse del 1 av SV2 - Overvannsledning, spillvannsledning og støyskjerm
03.02.2021 24/107 m.fl. - Presisering av stigningsforhold vedr. endringer for del 1 av SV2 - Høn Landås
27.01.2021 24/107 m.fl. Mindre endringer ved etablering del 1 av SV2 , støyskjerm, OV- og SPV ledning
21.01.2021 24/107 m. fl. - Foreløpig besvarelse om endringer for etablering av del 1 av SV2, Høn- Landås
18.11.2020 24/107 m.fl - Uttalelse til søknad om dispensasjon (kopi) - Opparbeidelse del 1 av SV2
16.11.2020 24/107 m.fl - Opparbeidelse del 1 av SV2 - Informasjon og tilbaketrekking nabovarsel
16.11.2020 24/107 m.fl. - Spørsmål til opparbeidelse og utbyggingsrekkefølge - Opparbeidelse del 1 av SV2
12.11.2020 24/107 m. fl. - Besvarelse til forespørsel opparbeidelse og utbyggingsrekkefølge - Høn-Landås
10.11.2020 24/107 m.fl - Godkjent dispensasjon og tillatelse til tiltak - Opparbeidelse del 1 av SV2
06.11.2020 24/107 m. fl. Tilleggsdokumentasjon - Nabomerknader - Opparbeidelse del 1 av SV2
23.10.2020 24/107 m. fl. Dialog om nabomerknad - Støyskjerming
23.10.2020 24/107 m. fl. - Spørsmål til dokumentasjon - Opparbeidelse del 1 av SV2 - Overvannsledning, spillvannsledning og støyskjerm
22.10.2020 24/107 m.fl - Klage på manglende oppfølging av vedtak
20.10.2020 24/107 m.fl. - Følgebrev til søknad vedrørende opparbeidelse av SV2, støyskjerm og VA-ledninger
19.10.2020 24/107 Ber om status i saken / tilbakemelding fra SVV - Opparbeiding Del 1 av SV2
01.10.2020 24/107 Innspill fra nabo - Opparbeiding Del 1 av SV2 - Overvannsledning, spillvannsledning og støyskjerm - Høn - Landås
21.09.2020 24/107 Oversendelse uttalelse til søknad om dispensasjon for arbeider nær E18 (kopi)
21.09.2020 24/107 Kvitteringsbrev - Opparbeiding Del 1 av SV2 - Overvannsledning, spillvannsledning og støyskjerm - Høn - Landås
17.09.2020 24/107 Søknad om opparbeiding Del 1 av SV2 - Overvannsledning, spillvannsledning og støyskjerm - Høn - Landås