NewConstruction Rammetillatelse Other

Flytebrygge med badstue på Lille Brønnøya, Brønnøy

📍 Lille Brønnøya

Nøkkelinfo

Sakstype
Nybygg
Bygningstype
Other
Bruksareal
54 m²
Kommune
Brønnøy
Fylke
Nordland - Nordlánnda
Gnr / Bnr
104 / 398
Saksnummer
2024/3893
Fase
Rammetillatelse

Om byggesaken

Ny flytebrygge med badstue på 54,5 m² plassert på nordsiden av Lille Brønnøya i Brønnøy kommune. Anlegget består av en badstue på betongflytebrygge med dimensjoner 6x12 meter, tilknyttet landgang med landfeste til eksisterende gangvei på land. Badstuen inneholder varmerom, oppholdsrom, garderober med dusjer, lager og terrasseareal. Bygget har mørk brun trekledning og flatt tak med saltakskonstruksjon over hele bryggen. Det er planlagt vedovn som varmekilde, flere badetrapper rundt bryggen, belysning under vann og på taket, samt sikkerhetstiltak som redningsbøyer og hjertestarter på land. Vannforsyning til badstuen etableres via vannledning fra land. Anlegget er kommersielt drevet med adgangskontroll til badstue og garderober, mens uteområdene på bryggen er åpne for allmennheten. Tiltaket er dispensasjonsbehandlet fra reguleringsplan, har fått tillatelse etter havne- og farvannsloven, og rammetillatelse etter plan- og bygningsloven.

Produkter og materialer

VVS Vedovn

Antall: 1

Vedovn som varmekilde i badstue

Vedovn valgt for pålitelighet og lavt vedlikehold

Elektro Belysning

Skiltbelysning på tak, neonbelysning under brygge for sjøbunnslys

Belysning for sikkerhet og estetikk på badstue og brygge

Gulv Terrasse

🧱 Tre

Terrasseareal på 26,7 m² under tak på flytebrygge

Uteoppholdsareal på flytebrygge med takoverbygg

Vinduer Fasadevindu

Antall: 5

Ett større vindu mot Brønnøysundet, fire små vinduer i garderober og dusjrom

Vinduer for dagslys og utsikt, plassert i badstue og garderober

Sikkerhet Redningsutstyr

Redningsbøyer på brygge, automatisk hjertestarter på land

Sikkerhetsutstyr for badegjester og brukere

Fasade Trekledning

🧱 Beiset eller karbonisert tre

Mørk brun trekledning tilpasset miljø med naturstein, betong og cortenstål

Yttervegger kledd med mørk brun trekledning, beiset eller karbonisert

Grunnarbeid Flytebrygge i betong

🧱 Betongflytebrygge

Antall: 1

Flytebrygge 6x12 meter i betong med pontongkonstruksjon

Flytende betongkonstruksjon som bærer badstueanlegget

Tak Flatt tak med saltakskonstruksjon

🧱 Bølgeblikkplater i aluminium

Saltakskonstruksjon over hele flytebrygga, taktekking med aluminium bølgeblikkplater

Taktekking med aluminium bølgeblikkplater på saltakskonstruksjon

Tømrer Landgang og gangvei

🧱 Tre

Antall: 1

Landgang av tre med landfeste til eksisterende gangvei på Lille Brønnøya

Treplatting og gangvei for tilkomst til flytebrygge

Dører Ytterdører

Antall: 5

Dører til sauna, garderober, lager og gang

Dører til alle rom i badstueanlegget

VVS Dusj og garderobeinstallasjoner

Antall: 1

Dusjer med kaldt og varmt vann, garderober med dusjrom

Innvendige sanitærinstallasjoner for garderober og dusj

VVS Vannledning

Antall: 1

Vannledning fra land til flytebrygge for vanntilførsel til badstue

Vannforsyning til badstueanlegget via vannledning under vann

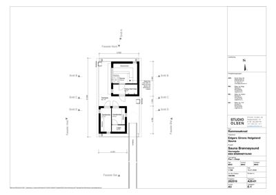
Plantegning

Sauna 54.5 m²

Etasje 1 54.5 m²

Rom Areal Vinduer Dører
Sauna 101 10.9 m² 0 1
Gang med dusj 102 5.6 m² 0 1
Badstubenker 103 0.0 m² 0 0
Terrasse 104 26.7 m² 0 0
Garderobe 105 5.7 m² 0 1
Garderobe 106 5.0 m² 0 1
Lager 107 2.0 m² 0 1

Fasader

Sauna

Øst
Materiale
Tre
Taktype
Flatt tak
Vinduer
1
Dører
1
Synlige etasjer
1

Hendelser

13.04.2026 Rammetillatelse - Nytt anlegg/konstruksjon - Badstue - Lille Brønnøya - Gnr/bnr 104/398
09.03.2026 Søknad om rammetillatelse - Nytt anlegg/konstruksjon - Badstue - Lille Brønnøya - Gnr/bnr 104/398
01.10.2025 Vedrørende sak - Oppføring av flytebrygge og sauna - Lille Brønnøya - Gnr/bnr 104/398 - Edgars Girons
18.09.2025 Vedrørende sak - Oppføring av flytebrygge og sauna - Lille Brønnøya - Gnr/bnr 104/398 - Edgars Girons
30.06.2025 Søknad om endring av innvilget dispensasjon fra reguleringsplan til utlegging av flytebrygge og sauna - Lille Brønnøya
23.06.2025 Søknad for om endring av innvilget dispensasjon - Lille Brønnøya - Gnr/bnr 104/398
23.06.2025 Søknad om endring av innvilget dispensasjon
18.06.2025 Kopi - Tillatelse til etablering av flytende saunaanlegg - Brønnøysundet - Brønnøy kommune - Nordland fylke
05.12.2024 Vedtak - Søknad om dispensasjon fra reguleringsplan til utlegging av flytebrygge og sauna - Lille Brønnøya
12.11.2024 Uttalelse sauna anlegg ved lille Brønnøybrua - Thorleif Holmstrand
11.11.2024 Uttalelse Sauna anlegg ved lille Brønnøybrua - Frank Sandvær
11.11.2024 Uttalelse sauna anlegg ved Frøkenosbrua - Brønnøy Havn KF
25.10.2024 Uttalelse til dispensasjonssøknad - Flytebrygge med sauna - Gnr/bnr 104/398
17.10.2024 Høring - Dispensasjon fra reguleringsplan til oppføring av Sauna-anlegg ved Lille Brønnøybrua - Edgars Girons
30.09.2024 Dispensasjonssøknad - Oppføring av flytebrygge og sauna - Lille Brønnøya - Gnr/bnr 104/398