NewConstruction Soeknad Other

Utvidelse av Flyt bike- og skatepark og boligtilbygg i Narvik

Nøkkelinfo

Sakstype
Nybygg
Bygningstype
Other
Bruksareal
120 m²
Boenheter
1
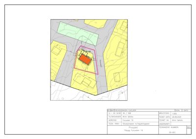
Kommune
Narvik
Fylke
Nordland - Nordlánnda
Saksnummer
26/124
Fase
Søknad

Om byggesaken

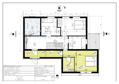
Byggetrinn II av Flyt bike- og skatepark på Jaklamyra i Narvik omfatter etablering av BMX freestylepark, ferdighetspark, turveier, løyper, stier, to tre- og betongbruer, samt sosiale oppholdsplasser som Rest Area Arena og Rest Area Forrest. Anlegget er universelt utformet med fokus på inkludering, miljøhensyn og helårsbruk. I tillegg omfatter saken ombygging og tilbygg til enebolig i Furuveien 19 med nye rom som soverom, vaskerom, bod og gang, samt endring av takform og fasade. Prosjektet inkluderer også oppføring av carport og terrasse. Videre inngår bygging av ny hovedvannledning i Bjerkvik som del av infrastruktur. Materialvalg for parken inkluderer betong, stål og tre, mens boligtilbygg benytter tre som fasademateriale og saltak. Prosjektet har betydelig areal og kompleksitet, med fokus på bærekraft og universell utforming.

Produkter og materialer

Tre Broer, benker, plattinger, pergolaer

🧱 Tre

Trebru med sklisikkert dekke og rekkverk, benker, plattinger og pergolaer i aktivitetsområdet

Trearbeider for broer, oppholdsplasser og tekniske elementer i parken

Betong Rammer, hopp og tekniske elementer

🧱 Betong

Betongkonstruksjoner for BMX freestylepark og ferdighetspark

Betongelementer for ramper, hopp og tekniske sykkelelementer i parken

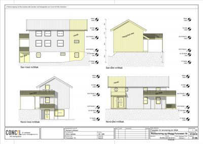
Tak Saltak og pulttak

🧱 Tre, isolasjon

Endring av takform fra saltak til pulttak med økt isolasjonstykkelse

Takendring og isolasjon på bolig

Dører Ytterdører og balkongdører

Nye dører med forbedret U-verdi

Utskifting av dører i bolig

Stål Rammer og tekniske elementer

🧱 Galvanisert stål

Stålkonstruksjoner for BMX-elementer og broer

Stålkonstruksjoner for ramper, broer og tekniske elementer i aktivitetsparken

Maling Utvendig og innvendig maling

Maling av fasader og innvendige flater i bolig og tilbygg

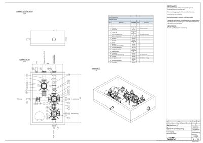
VVS Ny hovedvannledning og kummer

🧱 PE100 rør, støpejernsrør, aluminium kumstige

Ny 315 mm PE100 vannledning, kum med modulbasert armatur og mannhull

Vannforsyningsinfrastruktur i Bjerkvik

Fasade Trepanel og vinduer

🧱 Tre

Trepanel som fasademateriale, utskifting av vinduer med U-verdi 0,8-1,0 W/m²K

Fasadeendring og utskifting av vinduer og dører på bolig

Ventilasjon Generell ventilasjon i bolig

Ventilasjon som tilfredsstiller TEK17 § 13-1

Ventilasjon i bolig etter ombygging

Elektro Belysning og LED-skilt

🧱 LED-profilskilt, kraftig LED-belysning

LED profil 5 skilt med spesifikke mål, kraftig LED-belysning 7000 mm

Skilt og belysning for næringsbygg i Hamsuns vei 2

Garasjeport Carport for bil- og sykkeloppstilling

🧱 Tre

Antall: 1

Carport med plass til to biler i bredden, plassert nær eiendomsgrense

Oppføring av carport til bolig

Grunnarbeid Terrengjustering og grunnarbeid for løyper og anlegg

Terrengjusteringer, planering, grusing og fundamentering for sykkelløyper og aktivitetsområder

Grunnarbeid for etablering av løyper, stier, plattformer og aktivitetsarealer

Terrasse Markterrasse med glass- og trerekkverk

🧱 Tre, glass

Utvidelse og oppgradering av markterrasse med tette rekkverk ca. 1,1 m høyde

Terrassearbeid på bolig

Gulv Innvendige gulvflater

Gulvlegging i nye og ombygde rom i bolig

Isolasjon Tak- og veggisolasjon

Økt isolasjonstykkelse i ny takkonstruksjon

Isolasjon for boligtilbygg og takendring

Fasader

Enebolig

Nord
Materiale
Tre
Taktype
Saltak
Høyde
6.5 m
Mønehøyde
8.2 m
Vinduer
6
Dører
1
Balkonger
1
Synlige etasjer
2
Sør
Materiale
Tre
Taktype
Saltak
Høyde
6.5 m
Mønehøyde
8.2 m
Vinduer
4
Dører
1
Balkonger
1
Synlige etasjer
2
Vest
Materiale
Tre
Taktype
Saltak
Høyde
6.5 m
Mønehøyde
8.2 m
Vinduer
4
Dører
1
Balkonger
1
Synlige etasjer
2
Øst
Materiale
Tre
Taktype
Saltak
Høyde
6.5 m
Mønehøyde
8.2 m
Vinduer
4
Dører
1
Balkonger
1
Synlige etasjer
2
Sør-Vest
Materiale
Tre
Taktype
Saltak
Høyde
6.5 m
Mønehøyde
8.2 m
Vinduer
6
Dører
1
Balkonger
1
Synlige etasjer
2
Sør-Øst
Materiale
Tre
Taktype
Saltak
Høyde
6.5 m
Mønehøyde
8.2 m
Vinduer
1
Dører
1
Synlige etasjer
2
Nord-Vest
Materiale
Tre
Taktype
Saltak
Høyde
6.5 m
Mønehøyde
8.2 m
Vinduer
2
Dører
1
Balkonger
1
Synlige etasjer
2
Nord-Øst
Materiale
Tre
Taktype
Saltak
Høyde
6.5 m
Mønehøyde
8.2 m
Vinduer
4
Dører
1
Synlige etasjer
2

Tilbygg

Sørvest
Materiale
Tre
Taktype
Saltak
Vinduer
10
Dører
2
Synlige etasjer
1
Nordvest
Materiale
Tre
Taktype
Saltak
Vinduer
10
Dører
2
Synlige etasjer
1

Hendelser

14.04.2026 Nabovarsel for tiltak på gbnr. 39/598, Furuveien 19
09.04.2026 Nabovarsel for byggeplaner i nærheten av Lillevikveien 7
10.03.2026 Nabovarsel fra gbnr. 340/547, Bjørkåsveien 2
23.02.2026 Nabovarsel og situasjonskart - gbnr. 39/459, Sjøveien 22
30.01.2026 Nabovarsel for gbnr. 338/57, Fornes-E6 82
29.01.2026 Nabovarsel for gbnr. 10/632, Bjørkvangveien 2
27.01.2026 Nabovarsel for gbnr. 39/1880, Hamsuns vei 2
23.01.2026 Kopi til Narvik kommune - Uttalelse til nabovarsel - arealoverføring - gbnr. 10/10-408
21.01.2026 Nabovarsel for gbnr. 10/10 til Narvik kommune
20.01.2026 Nabovarsel for gbnr. 39/1497, Fasanveien 12 til Narvik kommune
16.01.2026 Nabovarsel for byggeplaner i nærheten av gbnr. 10/711, Vassdalsveien / Áravuomebállgis 80
13.01.2026 Nabovarsel for Kongens gate 66 til Narvik kommune