NewConstruction Ferdigattest Other

Ny kombinasjonsbygg med garasje i Odins Gate 4A, Fredrikstad

📍 Odins gate 4A , 1608 FREDRIKSTAD

Nøkkelinfo

Sakstype
Nybygg
Bygningstype
Other
Bruksareal
167 m²
Boenheter
1
Kommune
Fredrikstad
Fylke
Østfold
Gnr / Bnr
300 / 916
Saksnummer
2025/20488
Fase
Ferdigattest

Om byggesaken

Ny toetasjers kombinasjonsbygg på ca. 167 m² med saltak i tre, oppført på eiendommen Odins Gate 4A i Fredrikstad. Bygget har garasje og teknisk rom i første etasje med et samlet areal på ca. 41 m², samt boligdel med to soverom i annen etasje. Konstruksjonen består av Tewo-elementer med massivtre og isolasjon, og taket er tekket med teglstein. Bygget har branntekniske løsninger i henhold til TEK17, inkludert brannmotstand REI 30 for bærende elementer og brannklasse 1. Utearealer og parkering er også etablert rundt bygget. Det er én innvendig trapp, flere dører og vinduer i fasadene, samt garasjeport i nordfasaden.

Produkter og materialer

Betong Grunnmur og fundament

🧱 Betong

Grunnarbeid med støpte fundament og grunnmur

Garasjeport Garasjeport i tre/metal

Antall: 1

Garasjeport i nordfasade

Tak Saltak med teglstein

🧱 Teglstein

Tewo takelementer med teglstein som taktekking, klasse BROOF(t2)

Taktekking med teglstein på saltak

VVS Innvendige sanitærinstallasjoner

Sanitærinstallasjoner utført av Bravida Norge A/S

VVS-installasjoner for bolig og garasje

Gulv Massivtre etasjeskiller

🧱 Massivtre/kit

Etasjeskiller i massivtre med brannteknisk klassifisering D-s2,d0

Innvendige etasjeskillere i massivtre

Ventilasjon Avtrekkskanaler i sjakt

🧱 Stålspiralrør

Avtrekk fra kjøkken og bad med brannmotstand EI15

Ventilasjonskanaler med brannmotstand

Trapper Innvendig trapp i L-form

Antall: 1

Innvendig trapp mellom etasjer

Dører Ytterdører i tre

Antall: 4

Ytterdører i fasader nord og vest

Vinduer Fasadevindu i tre/aluminium

Antall: 4

Vinduer i fasader nord og vest

Elektro Elektriske installasjoner

Installasjon av stikk, lyspunkt, sikringsskap, varmekabler og bad/kjøkken utført av Raj Elektro A/S

Elektriske installasjoner i bolig og garasje

Isolasjon Mineralull isolasjon

🧱 Rockwool

Isolasjon som tilfredsstiller A1-s0, d0 klasse

Isolasjon i vegger og tak for brann- og varmeisolering

Grunnarbeid Tomtearbeid og drenering

Grunnarbeid inkludert drenering og planering av utearealer og parkering

Maling Innvendig og utvendig maling

Overflatebehandling av trepanel og innvendige flater

Fasade Trepanel med not og fjær

🧱 Tre

Ubehandlet trepanel som tilfredsstiller D-s2,d0 og K10 brannklasse

Ytterkledning i trepanel med not og fjær for fasader

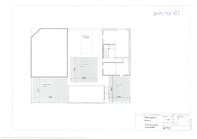
Plantegning

Anneks 167.5 m²

Etasje 1 41.5 m²

Rom Areal Vinduer Dører
Garasje 101 25.2 m² 0 1
Teknisk rom 102 1.5 m² 0 1
Bod 103 6.7 m² 0 1
Bod 104 8.4 m² 0 1

Etasje 0 126.0 m²

Rom Areal Vinduer Dører
Uteareale 1 Uteareale 1 39.0 m² 0 0
Uteareale 2 Uteareale 2 32.0 m² 0 0
Uteareale 3 Uteareale 3 25.0 m² 0 0
Parkering Parkering 28.0 m² 0 0

Fasader

Anneks

Nord
Materiale
Tre
Taktype
Saltak
Høyde
4.9 m
Mønehøyde
7.5 m
Vinduer
1
Dører
1
Synlige etasjer
2
Vest
Materiale
Tre
Taktype
Saltak
Vinduer
3
Dører
3
Synlige etasjer
2

Hendelser

20.04.2026 Ferdigattest - Riving/nybygg - Odins gate 4B - Eiendom 300/916
03.07.2025 Sak til matrikkelregistrering
03.07.2025 Ferdigattest - Riving/nybygg - Ferdigattest - Odins Gate 4A - Eiendom 300/916
26.06.2025 Søknad om ferdigattest - Odins Gate 4A - Eiendom 300/916 - Riving/nybygg