NewConstruction Rammetillatelse Other

Montering av Nordpeis Lisboa S-18U eldstad på Ole Torjussens veg 41, Svanøybukt

📍 Ole Torjussens veg 41 , 6914 SVANØYBUKT

Nøkkelinfo

Sakstype
Nybygg
Bygningstype
Other
Kommune
Kinn
Fylke
Vestland
Gnr / Bnr
117 / 58
Saksnummer
2026/4252
Fase
Rammetillatelse

Om byggesaken

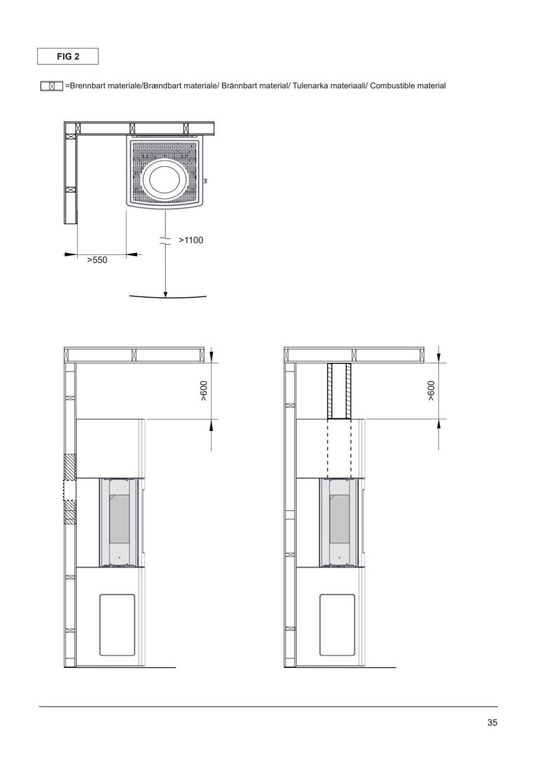
Ny montering av en Nordpeis Lisboa S-18U elementpeis med en nominell effekt på 4 kW og vekt på 209 kg. Peisen har en stålinnsats med varmebestandig lakkert dør og ramme, og er tilkoblet en stålpipe med diameter 150 mm. Peisen har sekundærforbrenning for redusert utslipp og høy virkningsgrad på 82 %. Monteringen inkluderer brannmur, gulvplate foran ildstedet, korrekt avstand til brennbare materialer, og sikring av tilstrekkelig forbrenningsluft. Omramming av betongelementer limes med akryl, og det benyttes metallkonsoller for stabilitet. Det er også mulighet for tilkobling av friskluftsett. Peisen er utstyrt med opptenningsventil og kan kobles til pipe både topp og bak. Det følger med omfattende monteringsanvisning, vedlikeholdsinstruksjoner og sikkerhetsregler. Installasjonen er kontrollert og godkjent av kvalifisert montør med byggmesterkompetanse.

Produkter og materialer

Annet Acrylic lim

🧱 Akryl

Brukes til liming og fuging av betongelementer

Lim for montering og fuging av peisens elementer

Fasade Omramming i betongelementer

🧱 Betongelementer limt med akryl

Antall: 1

Elementer montert med akryl lim, fuger fylt og jevnet med akryl

Peisens ytre omramming av betongelementer

Stål Stålrammer og metallkonsoller

🧱 Stål med skruer og skiver

Metallavstivning montert med skruer og skiver for stabilitet

Støtte og feste for peisens elementer

Gulv Gulvplate foran ildsted

🧱 Ildfast plate i betong, naturstein eller stålplate 0,7 mm

Antall: 1

Gulvplate foran ildstedet med minimum 30 cm bredde foran og minst like bred som peisens luke

Beskyttelse av brennbart gulv mot glør og varme

Annet Thermotte isolasjonsplater

🧱 Isolerende betongelementer

Isolasjonsplater i brennkammer, utskiftbare slitedeler

Isolasjon i peisens brennkammer

Fasade Brannmur

🧱 Nordmur brannmurelementer eller tilsvarende steinmateriale

Antall: 1

Brannmur med byggetykkelse 30/65 mm inkl. luftespalte 10/15 mm, høyde slik at avstand til brennbart er minimum 300 mm

Brannmur montert inntil brennbar vegg for beskyttelse mot varme

VVS Friskluftsett (tilbehør)

Frisklufttilførsel for forbrenningsluft, kan kobles til bunnplate eller bakvegg

Sikrer tilstrekkelig lufttilførsel til forbrenning

Pipe Stålpipe

🧱 Stål

Antall: 1

Stålpipe med diameter 150 mm, tilkoblet topp- eller bakuttak på peisen

Røykavtrekk for peis

Dører Peisdør med glass

🧱 Varmebestandig glass og lakkert stålramme

Antall: 1

Dør med varmebestandig lakk, tetningslister som kan skiftes

Dør med glass for peisinnsats

Hendelser

16.04.2026 Melding om montering av eldstad gbnr 117/58