NewConstruction Rammetillatelse Other

Ny og endret støttemur med biloppstillingsplass på Olsvollen 20

📍 Olsvollen 20 , 6019 ÅLESUND

Nøkkelinfo

Sakstype
Nybygg
Bygningstype
Other
Kommune
Ålesund
Fylke
Møre og Romsdal
Gnr / Bnr
34 / 41
Saksnummer
2025/9464
Fase
Rammetillatelse

Om byggesaken

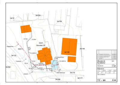
Prosjektet omfatter oppføring av ny støttemur og utvidelse/oppgradering av biloppstillingsplass på eiendommen Olsvollen 20 i Ålesund. Muren er planlagt med varierende høyde opptil 1,04 meter, fundamentert med drensrør og drenerende masser, og toppet med hekk som fallhinder. Det er etablert en todeling av muren i sørvestre hjørne, mens resten av muren er uten todeling for å ivareta siktlinjer. Biloppstillingsplassen er integrert i terrenget med tilhørende avkjørsel og stikkrenne for overvann. Tiltaket er tilpasset reguleringsplan og byggegrenser, med dispensasjon godkjent for byggegrense mot vei. Muren og biloppstillingsplassen er prosjektert og utføres av ansvarlige foretak med nødvendige ansvarsretter.

Produkter og materialer

Tømrer Oppgradering av avkjørsel

Utbedring av avkjørsel i sør, tilpasset vei og trafikksikkerhetskrav.

Oppgradering av avkjørsel for trygg og funksjonell tilkomst til biloppstillingsplass.

Mur Støttemur i naturstein

🧱 Naturstein, Stein 20

Muren fundamenteres med drensrør, drenerende masser og fiberduk. Høyde opptil 1,04 m. Hekk på toppen som fallhinder.

Støttemur med drenering og hekk som sikrer stabilitet og estetikk.

Grunnarbeid Drenering og stikkrenne

🧱 Ø250 mm stikkrenne, drensrør, finpukk

Drensrør føres til overvannsnettet, stikkrenne med minimum 200 mm diameter under avkjørsel.

Grunnarbeid for drenering og overvannshåndtering under mur og biloppstillingsplass.

Fasade Flettverksgjerde

🧱 Flettverksgjerde 0,9 m høyde

Eksisterende gjerde erstattes delvis av hekk, men flettverksgjerde er nevnt i opprinnelig plan.

Gjerde som del av sikring og avgrensning ved mur og biloppstillingsplass.

Fasade Hekk

Hekk på toppen av støttemur som fallhinder og estetisk løsning i stedet for flettverksgjerde.

Beplantning som sikrer estetikk og sikkerhet på murens topp.

Grunnarbeid Biloppstillingsplass

Utvidelse og oppgradering av biloppstillingsplass med tilhørende avkjørsel og tilpasning til terreng.

Opparbeidet biloppstillingsplass integrert i terrenget med nødvendig drenering og tilkomst.

Hendelser

16.04.2026 Gbnr. 34/41 - Vedtak om nedsatt gebyr - Olsvollen 20 - Forstøtningsmur, utvidelse/ etablering av biloppstillingsplass
15.04.2026 Gbnr. 34/41 - Søknad om nedsatt gebyr - Olsvollen 20 - Forstøtningsmur, utvidelse/ etablering av biloppstillingsplass
26.02.2026 Gbnr. 34/41 - Supplering av søknad - Olsvollen 20 - Forstøtningsmur, utvidelse/ etablering av biloppstillingsplass
06.02.2026 Gbnr. 34/41 - Fakturagrunnlag - Olsvollen 20 - Forstøtningsmur, utvidelse/ etablering av biloppstillingsplass
29.01.2026 Gbnr. 34/41 - Vedtak om endring - Olsvollen 20 - Forstøtningsmur, utvidelse/ etablering av biloppstillingsplass
29.01.2026 Gbnr. 34/41 - Melding om vedtak i byggesak - Olsvollen 20 - Forstøtningsmur, utvidelse/ etablering av biloppstillingsplass
12.12.2025 Gbnr. 34/41 - Intern uttale - Olsvollen 20 - Forstøtningsmur, utvidelse/etablering av biloppstillingsplass
27.11.2025 Gbnr. 34/41 - Intern uttale - Olsvollen 20 - Forstøtningsmur, utvidelse/ etablering av biloppstillingsplass
25.11.2025 Gbnr. 34/41 og 34/417 - Søknad om endring av gitt tillatelse - Olsvollen 20 - Forstøtningsmur, utvidelse/ etablering av biloppstillingsplass
03.11.2025 Gbnr. 34/41, 34/417 - Kopi - Olsvollen 20 - MILSAM - Svar på nabovarsel om støttemur mv
07.10.2025 Gbnr. 34/41 - Mangelbrev - Olsvollen 20 - Forstøtningsmur, utvidelse/ etablering av biloppstillingsplass
26.09.2025 Gbnr. 34/41 - Søknad om endring av gitt tillatelse eller godkjenning - Olsvollen 20 - Forstøtningsmur
01.09.2025 Gbnr. 34/41 - Svar på henvendelse - Olsvollen 20 - Forstøtningsmur, utvidelse/ etablering av biloppstillingsplass
26.08.2025 Gbnr. 34/41 - Ber om tilbakemelding - Olsvollen 20 - Forstøtningsmur, utvidelse/ etablering av biloppstillingsplass
23.07.2025 Gbnr. 34/41 - Melding om endring - Olsvollen 20 - Forstøtningsmur, utvidelse/ etablering av biloppstillingsplass