NewConstruction
Avslatt
Other
Sentralfyrhus med rørledninger på Prestegårdsalleen 8, Asker
📍
Prestegårdsalleen 8
, 3070 SANDE I VESTFOLD
Nøkkelinfo
- Sakstype
- Nybygg
- Bygningstype
- Other
- Bruksareal
- 21 m²
- Kommune
- Asker
- Fylke
- Akershus
- Gnr / Bnr
- 309 / 4
- Saksnummer
- 22/4254
- Fase
- Avslått
Om byggesaken
Sentralfyrhus på ca. 20,8 m² BYA oppført i tre og stål med saltak og pipe, plassert på landbrukseiendom i LNF-område. Bygget inneholder fyrrom og teknikkrom, og er tilknyttet rørledninger for vannbåren varme som går til gårdens eksisterende driftsbygninger. Rørledningene er lagt i grøft på ca. 1,5 meters dybde over jordet. Det er oppgradert tilkomstvei og grusplass i tilknytning til fyrhuset, brukt til landbruksmaskiner. Tiltaket er plassert utenfor regulert sikkerhetssone for høyspent, med godkjent dispensasjon fra ledningseier Statnett. Bygget og anlegget har vært gjenstand for ettergodkjenning og klagebehandling, og er godkjent med krav om ferdigattest før bruk.
Produkter og materialer
🧱 Halmfyringsanlegg
Antall: 1
Fyrhus for vannbåren varme, areal BYA 20,82 m², halmfyringsanlegg for gårdens halm
Sentralfyringsanlegg for oppvarming av gårdens bygninger med halm som brensel
🧱 PVC/plast eller tilsvarende (ikke spesifisert)
Hovedledninger 63 mm, forgreninger 32 mm og 40 mm, lagt i grøft 1,5 m dybde, ca. 130 meter lengde
Rørledninger for vannbåren varme fra sentralfyrhus til gårdens bygninger
🧱 Ikke spesifisert
Antall: 1
Saltak på sentralfyrhus og tilhørende bygg
Tak med saltak på sentralfyrhus
🧱 Pukk, duk
Oppgradering av vei og grusplass med utsjakting, duk og ca. 40 cm pukk, ca. 103 m vei og 800 m² grusplass
Oppgradering av landbruksvei og oppstillingsplass for landbruksmaskiner
🧱 Tre og stål
Antall: 1
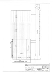
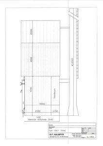
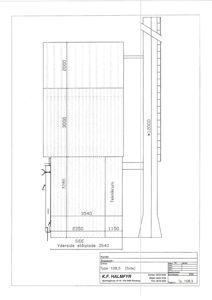
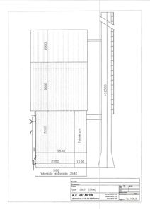
Saltak, gesimshøyde ca. 6,5-12 m, mønehøyde ca. 8,5-14 m, pipe på fyrhus
Fasade for sentralfyrhus i tre og stål med saltak og pipe
Plantegning
Sentralfyrhus 118.5 m²
Etasje 0 118.5 m²
| Rom |
Areal |
Vinduer |
Dører |
| Teknikkrom 001 |
38.5 m² |
0 |
1 |
| Fyrhus 002 |
79.0 m² |
2 |
1 |
| Teknikkrom 003 |
87.5 m² |
0 |
1 |
Hovedbygg 108.5 m²
Etasje 1 108.5 m²
| Rom |
Areal |
Vinduer |
Dører |
| Teknikkrom 101 |
12.5 m² |
0 |
1 |
| Stue 102 |
35.4 m² |
1 |
1 |
| Soverom 103 |
35.4 m² |
1 |
1 |
| Gang 104 |
25.2 m² |
0 |
1 |
Fasader
Sentralfyr
Sør
- Materiale
- Tre
- Taktype
- Saltak
- Høyde
- 6.3 m
- Mønehøyde
- 8.5 m
- Vinduer
- 0
- Dører
- 0
- Synlige etasjer
- 1
Nord
- Materiale
- Tre
- Taktype
- Saltak
- Høyde
- 6.3 m
- Mønehøyde
- 8.5 m
- Vinduer
- 0
- Dører
- 0
- Synlige etasjer
- 1
Øst
- Høyde
- 6.5 m
- Mønehøyde
- 12.0 m
- Vinduer
- 0
- Dører
- 0
- Synlige etasjer
- 1
Vest
- Høyde
- 6.5 m
- Mønehøyde
- 12.0 m
- Vinduer
- 0
- Dører
- 0
- Synlige etasjer
- 1
Sentralfyrhus
Front
- Materiale
- Stål
- Taktype
- Saltak
- Høyde
- 12.0 m
- Mønehøyde
- 14.0 m
- Vinduer
- 1
- Dører
- 0
- Synlige etasjer
- 2
Vannbeholder
Ukjent
- Materiale
- Stål
- Taktype
- Flatt tak
- Høyde
- 12.0 m
- Mønehøyde
- 14.0 m
- Vinduer
- 0
- Dører
- 0
- Synlige etasjer
- 2
Front
- Materiale
- Stål
- Taktype
- Saltak
- Høyde
- 12.0 m
- Mønehøyde
- 14.0 m
- Vinduer
- 1
- Dører
- 0
- Synlige etasjer
- 2
Hendelser
08.04.2026
309/4 Prestegårdsalleen 8 - Tilbakemelding om henvendelse fra Naturvernforbundet
19.03.2026
309/4 Prestegårdsalleen 8A - Anmodning om uttalelse til klage
klage
19.03.2026
309/4 Prestegårdsalleen 8A - Kvittering på mottatt klage
klage
19.03.2026
309/4 Prestegårdsalleen 8 - Oversender vedtak til orientering - Mulighet for uttalelse til søknad om tiltak i ettertid
klage
17.03.2026
309/4 Prestegårdsalleen 8 - Tilleggsmerknad til brev av 120326
16.03.2026
309/4 Prestegårdsalleen 8 - Klage på vedtak av 050326 og anmodning om å gjenoppta tilsynssak
klage
06.03.2026
309/4 Prestegårdsalleen 8A - Tillatelse til tiltak - Fyrhus med rørledninger
byggetillatelse
03.03.2026
309/4 Prestegårdsalleen 8 - Avtale med Statnett / gravetillatelse
02.03.2026
309/4 Prestegårdsalleen 8 - Svar på varsel om avslag
avslag
18.02.2026
309/4 Prestegårdsalleen 8A - Varsel om avslag om ettergodkjenning av oppført landbruksbygg / sentralfyrhus
avslag
27.02.2024
309/4 Prestegårdsalleen 8A - Ufullstendig søknad
klage
19.02.2024
309/4 Prestegårdsalleen 8A - Bekreftelse på at vi har mottatt din søknad
annet
22.01.2024
309/4 Prestegårdsalleen 8 - Supplerende opplysninger
19.06.2023
309/4 Bekreftelse på at søknaden er trukket - Ettergodkjenning av oppført landbruksbygg / sentralfyrhus / vei / grusplass
søknad
18.06.2023
309/4 Trekker saken - Ettergodkjenning av oppført landbruksbygg / sentralfyrhus
13.02.2023
309/4 Tilleggsdokumentasjon - Ettergodkjenning av oppført landbruksbygg / sentralfyrhus
03.01.2023
309/4 Midlertidig svar fra Landbrukskontoret - Ettergodkjenning av oppført landbruksbygg / sentralfyrhus
19.12.2022
309/4 Sak til høring til Landbrukskontoret
14.12.2022
309/4 Videresendt redegjørelse til Viken fylkeskommune
14.12.2022
309/4 Ufullstendig søknad om ettergodkjenning av oppført landbruksbygg / sentralfyrhus
søknad
01.12.2022
309/4 Kvitteringsbrev - Ettergodkjenning av oppført landbruksbygg / sentralfyrhus
30.11.2022
309/4 Søknad om ettergodkjenning av oppført landbruksbygg / sentralfyrhus
søknad