Rendering
3D-visualisering av en planlagt hytte eller uthus plassert i et naturområde.
1 / 7
NewConstruction
Soeknad
Other
Oppføring av nytt anneks i Skjellumveien 45, Fredrikstad
📍 Skjellumveien 45 , 1622 GRESSVIK
Nøkkelinfo
- Sakstype
- Nybygg
- Bygningstype
- Other
- Bruksareal
- 25 m²
- Kommune
- Fredrikstad
- Fylke
- Østfold
- Gnr / Bnr
- 66 / 215
- Saksnummer
- 2026/11203
- Fase
- Søknad
Om byggesaken
Nytt frittstående anneks på 24,6 m² med stue og bad i én etasje. Bygget har en stue på 14 m² og et bad på 10,6 m², begge uten vinduer, og med én dør hver. Annekset plasseres på eiendommen Skjellumveien 45, tidligere revet anneks på samme tomt. Bygget overskrider tillatt areal for anneks i området, og krever derfor søknad med ansvarsrett. Bygget er planlagt med standard konstruksjon uten trapper eller balkonger.
Produkter og materialer
Tømrer
Råbygg
Tømrerarbeid for oppføring av anneksets råbygg
Isolasjon
Vegger og tak
Isolasjon for vegger og tak i anneks
Gulv
Innvendig gulv
Innvendige gulv i stue og bad
Maling
Innvendig og utvendig maling
Maling av innvendige og utvendige flater
Grunnarbeid
Fundamentering
Grunnarbeid og fundamentering for nytt anneks
Tak
Taktekking
Taktekking for anneks, detaljer ikke oppgitt
Dører
Ytterdør
Antall: 2
To dører, én til stue og én til bad
Ytterdører til stue og bad i anneks
Fasade
Yttervegger
Yttervegger for nytt anneks, materialvalg ikke spesifisert
Vinduer
Ingen vinduer
Antall: 0
Ingen vinduer i stue eller bad
Ingen vinduer planlagt i annekset
Elektro
Elektrisk installasjon
Elektriske installasjoner i anneks, ikke detaljert
Bad
Sanitærutstyr
Bad med sanitærinstallasjoner, detaljer ikke spesifisert
VVS
Vann og avløp
VVS-installasjoner for bad i anneks
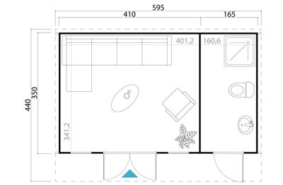
Plantegning
Nytt anneks 24.6 m²
Etasje 1 24.6 m²
| Rom | Areal | Vinduer | Dører |
|---|---|---|---|
| Stue 401,2 | 14.0 m² | 0 | 1 |
| Bad 160,6 | 10.6 m² | 0 | 1 |
Hendelser
16.04.2026
Svar på henvendelse - Skjellumveien 45 - Eiendom 66/215
15.04.2026
Generell henvendelse - Skjellumveien 45 - Eiendom 66/215 - Bygge ny anneks