Photo
Fotografi av en vei med et ladestasjonsanlegg i bakgrunnen, inkludert tekst om dispensasjonssøknad.
1 / 26
NewConstruction
Rammetillatelse
Other
Oppføring av nettstasjon ved Apenesfjellet P-hus, St. Olavs gate
📍 St. Olavs gate
Nøkkelinfo
- Sakstype
- Nybygg
- Bygningstype
- Other
- Kommune
- Fredrikstad
- Fylke
- Østfold
- Gnr / Bnr
- 300 / 1167
- Saksnummer
- 2025/35807
- Fase
- Rammetillatelse
Om byggesaken
Ny nettstasjon (transformatorstasjon) plasseres på kommunal grunn ved Apenesfjellet parkeringshus i St. Olavs gate, Fredrikstad. Nettstasjonen skal betjene Tesla ladestasjoner inne i parkeringshuset og er plassert optimalt med hensyn til avstand til gangvei og fjellside. Bygget er under 70 m² og ikke boligformål. Det er etablert støttemur som videreføres for å beskytte mot påkjørsel, og tiltaket er tilpasset krav til lufting og sikkerhet. Nettstasjonen ligger innenfor regulert gangvei og byggegrense, og det er gitt dispensasjon fra disse. Tiltaket har fått rammetillatelse og nødvendige godkjenninger fra Fredrikstad kommune, Statens vegvesen og Bane NOR. Tesla aksepterer kommunens forbehold om ansvar ved vintervedlikehold. Prosjektet omfatter grunnarbeid, fundamentering og oppføring av nettstasjon i samsvar med gjeldende lover og forskrifter.
Produkter og materialer
Mur
Støttemur
🧱 Betong/murstein
Eksisterende støttemur videreføres som fysisk vern mot påkjørsel
Støttemur rundt nettstasjon for beskyttelse mot påkjørsel og sikring av vinterdrift
Annet
Nettstasjon / transformatorstasjon
Antall: 1
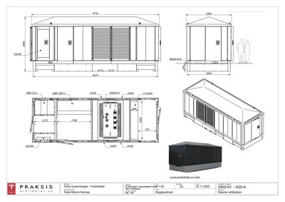
Nettstasjon levert av Møretrafo, kapasitet 2 MW, med ventilasjon og LS-tavle som vist i skjema A20-4
Oppføring av nettstasjon for strømtilkobling til Tesla ladestasjoner i Apenesfjellet P-hus
Grunnarbeid
Fundamentering og grunnarbeid
Minimalt med grunnarbeid på relativt flatt terreng, krav til stabilitet og drenering ivaretas
Grunnarbeid og fundamentering for nettstasjon
Hendelser
14.04.2026
Rammetillatelse - Oppføring av nettstasjon av nettstasjon - St. Olavs gate - Eiendom 300/1167
10.04.2026
Plassering av nettstasjon ved Apenesfjellet P-hus
10.04.2026
Plassering av nettstasjon ved Apenesfjellet P-hus
09.04.2026
Ber om revidert tegning
08.04.2026
Svar - Plassering av nettstasjon ved Apenesfjellet P-hus
07.04.2026
Angående plassering av nettstasjon ved Apenesfjellet P-hus
07.04.2026
Supplering av søknad - eiendom 300/1167 - St. Olavs gate
23.03.2026
Uttalelse fra Teknisk forvaltning – Samferdsel, byrom og grønnstruktur
23.03.2026
Plassering av nettstasjon ved Apenesfjellet P-hus
23.03.2026
Plassering av nettstasjon ved Apenesfjellet P-hus
18.02.2026
Uttalelse fra Teknisk forvaltning – Samferdsel, byrom og grønnstruktur
18.02.2026
Vedrørende plassering av nettstasjon
10.02.2026
Ber om avklaring fra virksomhet vei
09.02.2026
Uttalelse - dispensasjon fra byggegrensen - oppføring av nettstasjon - riksveg 110 - St. Olavs gate - gnr. 300 bnr. 1167
04.02.2026
Kopi: Østfoldbanen Vestre linje - Km. 93.767 - St. Olavs gate - Gnr/bnr. 300/1167 og 300/1168 - Vedtak om tillatelse til oppføring av nettstasjon jf. jernbaneloven § 10
04.02.2026
Oversendelse av tillatelse fra Bane NOR for etablering av nettstasjon
04.02.2026
Oversendelse av svar fra Statens Vegvesen
04.02.2026
Beskjed fra Statens vegvesen om forventet fremdrift på deres uttalelse
04.02.2026
Svar fra Statens Vegvesen mangler fortsatt
21.01.2026
Vedrørende klarering fra Fredrikstad kommune som grunneier
21.01.2026
Ber om bekreftelse fra Fredrikstad kommune som grunneier
21.01.2026
Kopi: Gjennomgang videre fremdrift byggesak Tesla nettstasjon Apenesfjellet P-hus
21.01.2026
Svar: Gjennomgang videre fremdrift byggesak Tesla nettstasjon Apenesfjellet P-hus
14.01.2026
St. Olavs gate - Anmodning om behandling av dispensasjon fra byggegrensen - Oppføring av nettstasjon
13.01.2026
Svar: Gjennomgang videre fremdrift byggesak - Tesla nettstasjon - Apenesfjellet P-hus