NewConstruction Ferdigattest Other

Oppføring av ladeanlegg med lynlader i Torolf Storsveens veg 26

📍 Torolf Storsveens veg 26 , 2406 ELVERUM

Nøkkelinfo

Sakstype
Nybygg
Bygningstype
Other
Bruksareal
28 m²
Kommune
Elverum
Fylke
Innlandet
Gnr / Bnr
12 / 71
Saksnummer
2025/2193
Fase
Ferdigattest

Om byggesaken

Ny etablering av et ladeanlegg for elbiler ved Torolf Storsveens veg 26 i Elverum kommune. Anlegget består av flere ladesøyler for hurtiglading, et teknikkhus, en egen nettstasjon, strømfordelingsskap og tilhørende skilt og fundamenter. Alle komponenter er prefabrikkerte og plassert på standard fundamenter. Ladeanlegget er plassert utenfor regulert byggegrense med innvilget dispensasjon, og tilrettelegger for økt andel utslippsfrie kjøretøy i tråd med nasjonale mål. Anlegget inkluderer også belysning og reklameskilt på mast i lakkert aluminium med LED-lys.

Produkter og materialer

Elektro Ladesøyle

Antall: 8

Alpitronic og Satelitt ladesøyler, signal hvit RAL 9003 med rosa kant Pantone 2038 CE-5

Hurtigladesøyler for elbiler med betalingsløsning via smarttelefon

Elektro Nettstasjon

Antall: 1

Prefabrikkert nettstasjon Maxi 6240 for ladestasjon

Nettstasjon for strømforsyning til ladeanlegget

Grunnarbeid Fundamenter for prefabrikkerte enheter

🧱 Betong

Standard fundamenter for teknikkhus, nettstasjon, ladesøyler og skilt

Fundamenter gravd ned i bakken for alle prefabrikkerte enheter

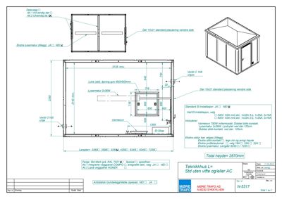
Elektro Teknikkhus

Antall: 1

Prefabrikkert teknikkhus uten vifte, med standard dør 10x21, antistatisk gulvbelegg, varmeovn 750W med termostat, lysarmatur 2x36W

Teknikkhus for ladeanleggets tekniske utstyr

Elektro Fordelerskap

Antall: 1

Prefabrikkert strømfordelingsskap for ladeanlegget

Fordelerskap for strømfordeling til ladesøyler og teknikkhus

Betong Fundament for skilt og stolpe

🧱 Betong

Antall: 1

Høyde 1000 mm, bredde 800 mm, dybde 800 mm, med bolter/skiver/muttere

Betongfundament for skiltstolpe og reklameskilt

Fasade Reklameskilt på mast

🧱 Lakkert aluminium med foliedekorert plexi

Antall: 1

Høyde 2000 mm, bredde 1250 mm, dybde 260 mm, dimmbare LED-lys, 230V trafo

Innvendig belyst reklameskilt med tosidig reklamebærer

Fasade Skiltstolpe med lys

🧱 Lakkert aluminium

Antall: 1

Tosidig reklameflate, dimmbare LED-moduler, høyde 3000 mm, bredde 200 mm, dybde 200 mm

Skiltstolpe med innvendig belyst lyskasse for reklame ved ladeanlegget

Hendelser

20.04.2026 Melding om frittliggende bygning eller tilbygg som er unntatt søknadsplikt - melding om fullført tiltak
26.06.2025 Dispensasjon fra reguleringsplan for Grindalsmoen vest for oppføring av ladeanlegg utenfor regulert byggegrense
22.04.2025 Søknad om dispensasjon utenom byggesak - lynlader for EL-bil