NewConstruction UnderBehandling Other

Riving og gjenoppføring av båthus på Askerøya 79/22, Tvedestrand

Nøkkelinfo

Sakstype
Nybygg
Bygningstype
Other
Bruksareal
29 m²
Kommune
Tvedestrand
Fylke
Agder
Gnr / Bnr
79 / 22
Saksnummer
2026/500
Fase
Under behandling

Om byggesaken

Nyoppført båthus på 29,4 m² med saltak og trekledning, plassert på samme sted og med samme høyde som det eksisterende båthuset. Bygget har et tradisjonelt sørlandsk uttrykk med takvinkel på 36,5°, asymmetrisk takløft på baksiden, og fasade i tre som harmonerer med lokal byggeskikk. Båthuset har flere dører, inkludert en stor dør for innkjøring av to båter, og vinduer plassert funksjonsrettet. Bygget er tilpasset kystmiljøet og skal erstatte et eldre båthus i dårlig stand, uten økning i bebygd areal eller endring i plassering.

Produkter og materialer

Maling Utvendig maling

Maling av trekledning i tradisjonell sørlandsk stil

Overflatebehandling for fasade

Fasade Trekledning

🧱 Tre

Standard sørlandsk kystbebyggelse og naust

Trekledning for fasade i tradisjonell sørlandsk stil

Tak Saltak

Takvinkel 36,5°, takløft asymmetrisk på baksiden

Saltak med tradisjonell takvinkel tilpasset lokal byggeskikk

Tømrer Trekonstruksjoner

🧱 Tre

Oppføring av trekonstruksjoner for båthus, inkludert tak og vegger

Tømrerarbeid for nytt båthus

Dører Store båtdører og ytterdører

Antall: 3

Stor dør økt i bredde for innkjøring av to båter, ny dør på langvegg for tilgang

Dører tilpasset funksjon for båtopptak og tilgang

Vinduer Smårutede vinduer

Antall: 6

Smårutede vinduer plassert funksjonsrettet, fjernet vinduer på langvegger i revidert søknad

Vinduer tilpasset tradisjonell sørlandsk byggeskikk og funksjon

Grunnarbeid Fundamentering og grunnmur

Ny fundamentering innenfor eksisterende fotavtrykk

Grunnarbeid for nytt båthus på eksisterende plassering

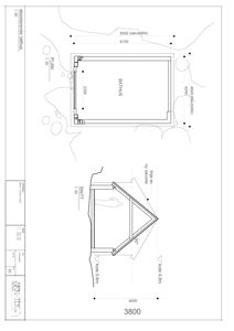
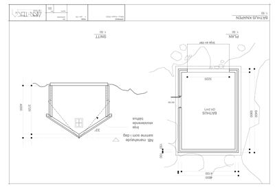
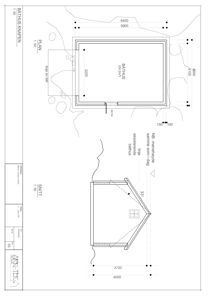
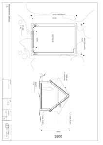
Plantegning

Båthus 14.6 m²

Etasje 1 14.6 m²

Rom Areal Vinduer Dører
Båthus BÅTHUS 14.6 m² 0 0
Båthus 14.6 m² 0 0
Båthus 101 24.2 m² 0 1
Båthus 24.2 m² 1 1

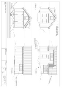
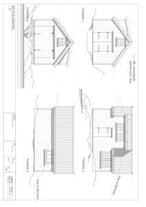
Fasader

Båthus

Øst
Materiale
Tre
Taktype
Saltak
Vinduer
1
Dører
1
Synlige etasjer
1
Vest
Materiale
Tre
Taktype
Saltak
Vinduer
1
Dører
1
Synlige etasjer
1
Sør
Materiale
Tre
Taktype
Saltak
Vinduer
1
Dører
0
Synlige etasjer
1
Nord
Materiale
Tre
Taktype
Saltak
Vinduer
3
Dører
1
Balkonger
1
Synlige etasjer
1

Hendelser

13.04.2026 Oversender reviderte tegninger for uttalelse - deres ref. 2026/2089 - riving og gjenoppføring av båthus
09.04.2026 Re: BYGG-26/00043 - reviderte tegninger Riving og oppføring av nytt båthus
10.03.2026 Foreløpig vurdering av tiltak - Riving og oppføring av nytt båthus
09.03.2026 Uttalelse til søknad om dispensasjon for riving og gjennopføring av båthus
10.02.2026 Oversendes for uttalelse - søknad om riving og gjenoppføring av båthus
04.02.2026 Søknad om tillatelse til riving og gjenoppføring av båthus