NewConstruction UnderBehandling Other

Nybygg biogassanlegg i Nedstrandsvegen 1187, Espevik

Nøkkelinfo

Sakstype
Nybygg
Bygningstype
Other
Bruksareal
6,730 m²
Kommune
Tysvær
Fylke
Rogaland
Gnr / Bnr
134 / 42
Saksnummer
2025/5524
Fase
Under behandling

Om byggesaken

Biogassanlegget i Espevik består av flere bygninger og tekniske installasjoner på et næringsareal på ca. 28 000 m². Anlegget inkluderer et hovedbygg på ca. 1040 m² med kontorer, kantine, laboratorier, vaskerom, varmepumpe og prosesshaller, et tørrstoffmottak på ca. 652 m², samt en garasje på ca. 407 m². Bygningene har flate betongtak og gesimshøyder opp mot 29,75 meter. Anlegget skal motta og behandle biologisk nedbrytbart råstoff som husdyrgjødsel, fiskeslam og organisk avfall for produksjon av biogass og biogjødsel. Det er planlagt omfattende teknisk infrastruktur for vann, avløp, overvann, sikring av fjellskjæring med fangvoll, og tilrettelegging for transport via vei og sjø. Anlegget er prosjektert med lukket prosess og luktbehandling, og det er lagt vekt på miljøhensyn, universell utforming, og tilpasning til landskap og reguleringsplan. Det søkes om midlertidig dispensasjon fra reguleringsplanens formål inntil tilhørende oppdrettsanlegg etableres.

Produkter og materialer

Miljø Overvannshåndtering

Overvannsberegning viser at avrenning ikke øker etter utbygging, overvann skal renses før utslipp

Overvannshåndtering og rensing

Annet Biogassanlegg prosessutstyr

Råtnetanker, lagringstank for biogjødsel, miksetank, bio-CO2 tank, LBG tank (flytende biogass), hygieniseringstank, gassfakkel, sekundær- og primærreaktorer

Prosessutstyr for biogassproduksjon

VVS Vannforsyning og avløp

Privat vannverk, avløpsanlegg med utslippstillatelse under behandling, nedsenket oppsamlingsområde for lekkasjer med kapasitet ca. 8000 m³

Vannforsyning, avløpshåndtering og overvannshåndtering

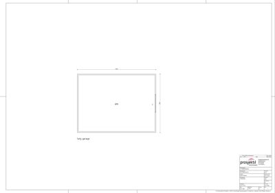
Bygningskomponenter Garasje

🧱 Betong, flatt tak

Antall: 1

407,2 m², 1 etasje, 1 dør

Garasje og verkstedbygg

Garasjeport Garasjeport

Antall: 1

Garasje med 1 dør, 407,2 m²

Garasjeport for kjøretøy

Fasade Fasade og tak

🧱 Betong, mørke farger, ikke reflekterende materiale

Fasader i betong med flate tak, gesimshøyde ca. 29,75 m

Fasade- og takmaterialer for hovedbygg, garasje og tørrstoffmottak

Transport Transportinfrastruktur

Ny/utbedret avkjørsel fra fylkesveg 515, godkjent av Rogaland fylkeskommune, vegplaner med utvidet radius og bredde

Tilkomstveg og avkjørsel for anlegget

Ventilasjon Luktbehandling

Biofilter for luktbehandling, undertrykk i anlegget, lukket mottaksbygg for tørre substrater

Luktbehandling for å hindre luktutslipp

Parkering Parkeringsplasser

Antall: 12

12 ordinære plasser + 1 HC-plass med elbil-lader, situasjonsplan

Parkering for ansatte og besøkende

Grunnarbeid Sikring av fjellskjæring

🧱 Fangvoll, gjerde

Fangvoll iht. premissnotat fra Multiconsult, gjerde på topp av voll og bruddkant

Sikring av fjellskjæring mot steinsprang

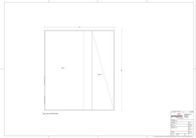
Bygningskomponenter Tørrstoffmottak

🧱 Betong, flatt tak

Antall: 1

652,3 m², 1 etasje, 2 dører

Bygg for mottak av tørrstoff substrat

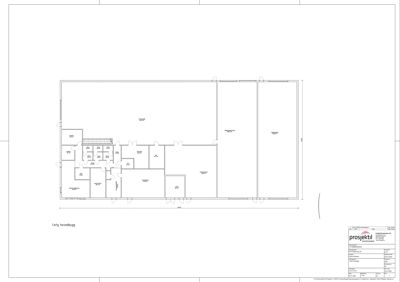
Bygningskomponenter Hovedbygg

🧱 Betong, flatt tak

Antall: 1

1040 m², gesimshøyde 29,75 m, 1 etasje, kontorer, kantine, lab, varmepumpe, prosesshall

Hovedbygg med kontorer, prosesshaller og tekniske rom

Elektro Kraftforsyning

Planlagt effektbehov 4,7 MW, reservasjon av 10 MW effekt hos Haugaland Kraft, trafo-stasjon planlagt i området

Kraftforsyning og trafo for anlegget

Tømrer Innvendige rom og overflater

Kontorer, kantine, lab, vaskerom, dusj, gangarealer, kontrollrom, hoveddykk, trelø, varmepumpe, pressehall, mottakshall

Innvendige rom i hovedbygg

Plantegning

Garasje 407.2 m²

Etasje 1 407.2 m²

Rom Areal Vinduer Dører
Garasje Garasje 407.2 m² 0 1

Tørrstoffmottak 652.3 m²

Etasje 1 652.3 m²

Rom Areal Vinduer Dører
Tørrstoffmottak 101 652.3 m² 0 2

Hovedbygg 1,040.0 m²

Etasje 1 1,040.0 m²

Rom Areal Vinduer Dører
Kontor 101 14.0 m² 0 1
Kontor 102 8.5 m² 0 1
Kantine/Målerom 103 33.6 m² 0 1
HWC 104 7.5 m² 0 1
Kontorrom 105 28.1 m² 0 1
Gang 106 17.2 m² 0 0
Dusj 107 2.8 m² 0 1
Dusj 108 2.6 m² 0 1
Dusj 109 2.7 m² 0 1
Gang 110 3.5 m² 0 0
Gang 111 3.3 m² 0 0
Gang 112 3.5 m² 0 0
Gang 113 1.2 m² 0 0
HT 114 5.3 m² 0 1
Vaskerom 115 22.7 m² 0 1
Lab 116 15.7 m² 0 1
Hoveddykk 117 34.4 m² 0 1
Trelø 118 38.6 m² 0 1
Varmepumpe 119 98.5 m² 0 1
Pressehall 120 436.7 m² 0 1
Gjennomsparing 121 202.5 m² 0 1
Mottakshall 122 139.8 m² 0 1

Fasader

Hovedbygg

Nord-Vest
Materiale
Betong
Taktype
Flatt tak
Høyde
29.8 m
Vinduer
0
Dører
3
Synlige etasjer
1
Sør-Øst
Materiale
Betong
Taktype
Flatt tak
Høyde
29.8 m
Vinduer
0
Dører
3
Synlige etasjer
1
Nord-Øst
Materiale
Betong
Taktype
Flatt tak
Høyde
29.8 m
Vinduer
0
Dører
3
Synlige etasjer
1
Sør-Vest
Materiale
Betong
Taktype
Flatt tak
Høyde
29.8 m
Vinduer
0
Dører
3
Synlige etasjer
1

Hendelser

16.04.2026 Gbnr 134/42 og 136/57 - Uttale til søknad om tillatelse til etablering av biogassanlegg - Espevik
13.04.2026 Gbnr 134/42 og 136/57 - Supplering av søknad - Biogassanlegg - Espevik
01.04.2026 Gbnr 134/42 Ber om tilleggsopplysninger til søknad - Biogassanlegg - Espevik
01.04.2026 Gbnr 134/42 og 136/57 - Til uttalelse - Søknad om rammetillatelse og midlertidig dispensasjon - Biogassanlegg - Espevik
01.04.2026 Gbnr 134/42 og 136/57 - Foreløpig svar - Søknad om rammetillatelse og dispensasjon - Biogassanlegg - Espevik
30.03.2026 Gbnr 134/42 og 136/57 - Supplering av søknad - Biogassanlegg - Espevik
28.01.2026 Gbnr 134/42 og 136/57 - Foreløpig svar - Søknad om rammetillatelse - Dispensasjon - Biogassanlegg - Espevik
26.01.2026 Gbnr 134/42 og 136/57 - Supplering av søknad - biogassanlegg - Espevik
26.01.2026 Gbnr. 134/12 - Espevik biogassanlegg - bekreftelse til planen fra Ecofisk
15.01.2026 Gbnr 134/42 Mangler ved søknad - Biogassanlegg - Espevik
22.12.2025 Gbnr 134/42 - Søknad om rammetillatelse - biogassanlegg - Espevik
10.12.2025 Oversendelse av mottatt merknad til nabovarsel - Gbnr 134/42 - Svar på nabovarsel - biogassanlegg - Espevik
08.12.2025 Gbnr 134/42 - Svar på nabovarsel - biogassanlegg - Espevik
08.12.2025 Gbnr 134/42 og gbnr 136/57 - Spørsmål vedrørende referat fra forhåndskonferanse - biogassanlegg - Espevik
15.10.2025 Gbnr 134/42 og gbnr 136/57 - Referat fra forhåndskonferanse - Biogassanlegg - Espevik
05.09.2025 Gbnr 134/42 (136/57) - Forspørsel om forhåndskonferanse - biogassanlegg - Espevik