NewConstruction UnderBehandling Other

Nytt kompenseringsanlegg med støttemur og VA i Vardavegen 20, Årskog

📍 Vardavegen 20 , 5419 FITJAR

Nøkkelinfo

Sakstype
Nybygg
Bygningstype
Other
Bruksareal
5,130 m²
Kommune
Fitjar
Fylke
Vestland
Gnr / Bnr
69 / 20
Saksnummer
2023/108
Fase
Under behandling

Om byggesaken

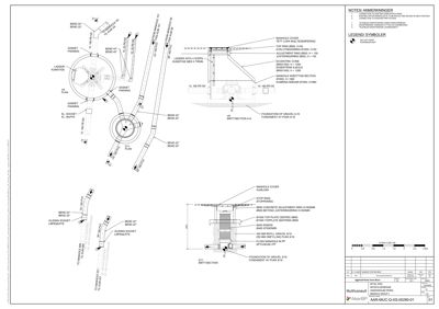
Prosjektet omfatter etablering av et nytt kompenseringsanlegg på ca. 5130 m² på Årskog næringsområde, inkludert bygg og anlegg med betongkomponenter, plasstøpt kjeller og prefabrikkerte elementer. Det etableres ny tilkomstvei, breddeutvidelse av eksisterende veg, parkeringsplass og midlertidige anleggsveier og riggområder. Området planeres med sprengstein og fyllinger, og det bygges en ca. 130 meter lang støttemur i betong langs Vardavegen med høyde 2,3-3 meter. Jordkabelanlegg og landfall inngår, med grøfter og kulverter for kabelføring. Området har påvist forurenset grunn som håndteres i henhold til tiltaksplan med supplerende prøvetaking, mellomlagring og sortering av masser. Det er etablert bergsikring bak brakkerigg med bolter og Jerseyblokker. Prosjektet inkluderer omfattende VA-anlegg med nye kummer og ledninger, samt tiltak for overvannshåndtering. Alle tiltak er prosjektert og utføres av ansvarlige foretak med sentral godkjenning, og det foreligger godkjente planer og tillatelser fra Fitjar kommune.

Produkter og materialer

Terrasse Opparbeidelse av anleggsveier og riggområder

🧱 Geotekstil, geonett, bærelag av knust grus

Midlertidige anleggsveier og riggområder opparbeides med geotekstil/geonett og komprimert bærelag

Opparbeidelse og tilbakeføring av midlertidige anleggsområder

Maling Overflatebehandling betong

Sprøytebetong og overflatebehandling kan benyttes ved bergsikring

Overflatebehandling og sikring av betongkonstruksjoner

Grunnarbeid Mellomlagring og deponi

🧱 Rene og lett forurensede masser, vekstjord og torv

Antall: 7000

Mellomlagring på riggområder og deponi D2, med toppdekke av vekstjord

Mellomlagring og deponering av overskuddsmasser innenfor tiltaksområdet

Rekkverk Kjøresterk rekkverk

🧱 Stål, styrkeklasse H2

Rekkverk på toppen av støttemur, høyde 0,8-1,2 m, forankret med innstøpte boltegrupper

Sikkerhetsrekkverk langs støttemur og veg

Stål Fjellbolter og anker

🧱 Ø20 mm bolter med dobbel korrosjonsbeskyttelse, varmforzinket og pulverlakkert

Antall: 10

6 stk. Ø20 mm 2,4 m lange bolter og 4 stk. Ø20 mm 3,0 m lange bolter for bergsikring bak brakkerigg

Bergsikring med bolter for stabilisering av fjellskjæring

Fasade Støttemur i betong

🧱 Betong B45, lavkarbon, med armering og ekspansjonsfuger

Antall: 130

Ca. 130 meter lang, høyde 2,3-3 meter, med støttemur, forankret med Ø20 mm fjellbolter c/c 1000 mm, forankret med innstøpte boltegrupper, med kjøresterk rekkverk styrkeklasse H2 på toppen, høyde 1,2 m

Støttemur langs Vardavegen for vegbreddeutvidelse og stabilisering av terreng

Grunnarbeid Sprengning og massehåndtering

🧱 Sprengstein, knust og sortert steinmasser

Antall: 95000

Ca. 65 000 m3 sprengning, 30 000 m3 utgraving, massebalanse med mellomlagring og deponi for rene masser

Sprengning av fjell, utgraving og opparbeidelse av tomt, fyllinger og skjæringer

VVS VA-anlegg

🧱 PVC rør, PE rør, kummer, ventiler

Nye spillvann, overvann og vannledninger i dimensjoner DN160, DN315 mm, med tilhørende kummer S8, S9, S10, V8, V9, O10, O11

Nytt vann- og avløpsanlegg med tilknytning til kommunalt nett

Annet Miljøtiltak for fremmede arter

Håndtering av infiserte masser med fremmede plantearter i henhold til forskrift om fremmede organismer

Tiltak for å hindre spredning av fremmede arter i masser

Elektro Fiberkabel og telekom

🧱 DL 40 mm trekkerør, fiberkabel

Nye trekkerør for fiberkabel i kabelgrøft, med mannhull og landfall

Telekom- og fiberanlegg i kabelgrøft og landfall

Betong Plasstøpt betong

🧱 Betong B35, MF45, lavkarbon

Plasstøpt kjeller og hovedsjakter i kompenseringsanlegg

Betongkonstruksjoner i kompenseringsanlegget

Hendelser

14.04.2026 Yggdrasil PfS - Sluttrapport forurenset grunn
11.09.2025 Omlegging VA mm - Vardavegen, sak 78/24 og 93/24
16.07.2024 69/20 Melding om revidert gjennomføringsplan- endra tiltaksklassar
09.07.2024 69/20 Melding om oppdatert gjennomføringsplan- endra tiltaksklassar
28.06.2024 69/20 Årskog Løyve til bergsikring
28.06.2024 69/20 Sanitærabonnement - søknad/melding om endring
25.06.2024 Yggdrasil Årskog forberedende arbeider. saksnr. 2023/108
13.05.2024 Varslingsplan Vardavegen
03.05.2024 69/15 - Varslingsplan Vardavegen
25.03.2024 69/15 - Støttemur i Vardavegen - Dispensasjon frå arealføremål - Endring av rammeløyve- oppføring av støttemur
22.03.2024 69/20 Supplerende dokumentasjon støttemur - Vardavegen Årskog
18.03.2024 69/20 Søknad om dispensasjon fra regulert arealformål- oppføring av støttemur
11.03.2024 69/20 Supplerande opplysningar - revidert søknad om støttemur
28.02.2024 69/20 Gjeld søknad om støttemur, endring av løyve
26.01.2024 69/20 Supplering revidert søknad støttemur
26.01.2024 Svar på førespurnad om nabosamtykke - gbnr 69/15
24.01.2024 69/15 Yggdrasil Årskog - forstøtningsmur
23.01.2024 Forespørsel om nabosamtykke fra Fitjar kommune
23.01.2024 Yggdrasil Årskog forberedende arbeider - purring
04.01.2024 69/20 Revidert søknad om endring ny støttemur
11.12.2023 69/20 Revidert søknad om endring - ny støttemur, veg og VA
20.11.2023 Stadfesting på motteken søknad - 69/20 Søknad om endring av tiltak
17.11.2023 69/20 Søknad om endring av tiltak - bergsikring
16.11.2023 Svar på e post av 31.10.23 kva gjeld bergsikring
31.10.2023 69/20 Gjeld sikring av bergsikring bak brakkerigg
22.08.2023 69/20 Kopi av dispensasjon for å fjerne kantvegetasjon
22.08.2023 69/20 Tilleggsinformasjon søknad om endring
15.08.2023 Forespørsel om nabosamtykke. Gnr/bnr 69/20
11.08.2023 69/20 Årskog Førespurnad om tilleggsinformasjon grunna manglar i søknad
08.08.2023 69/20 Søknad om endring av gitt tillatelse eller godkjenning-støttemur
15.06.2023 69/20 Supplering av søknad
25.05.2023 69/20 Supplering av søknad
21.04.2023 Yggdrasil gjeld naboinfo - Årskog, Fitjar
03.04.2023 Melding om vedtak - 69/20 Handsaming av tiltaksplan for forureina grunn, Årskog
30.03.2023 69/20 Løyve til igangsetjing av terrenginngrep
21.03.2023 Bekreftelse på som bygget dokumentasjon
17.03.2023 69/20 Søknad om igangsettelse - Vardavegen 20, Årskog
17.03.2023 Svar: 10229055 Yggdrasil PfS | Søknad om godkjenning av VVA-plan Årskog
16.03.2023 Yggdrasil PfS | Søknad om godkjenning av VVA-plan Årskog
14.03.2023 Yggdrasil PfS | Søknad om godkjenning av VVA-plan Årskog
09.03.2023 69/20 Årskog Godkjend avkøyrsle til næringseigedom
01.03.2023 69/20 Søknad om avkøyrsle - Vardavegen -10229055 Yggdrasil PfS |
13.02.2023 69/20 Årskog Godkjend rammeløyve for terrenginngrep- forberedande arbeid for seinare utbygging av tomta
25.01.2023 Stadfesting på motteken søknad - 69/20 Rammesøknad - nytt anlegg - vesentlig terrenginngrep
25.01.2023 69/20 Rammesøknad - nytt anlegg - vesentlig terrenginngrep
10.01.2023 69/20 Sanitærabonnement - søknad/melding om endring