NewConstruction Soeknad Other

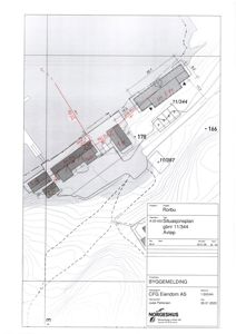
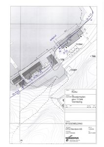
Ny rorbu med 3 overnattingsenheter i Moskenesveien 178, Reine

Nøkkelinfo

Sakstype
Nybygg
Bygningstype
Other
Bruksareal
159 m²
Boenheter
3
Kommune
Vestvågøy
Fylke
Nordland - Nordlánnda
Gnr / Bnr
11 / 344
Saksnummer
26/1055
Fase
Søknad

Om byggesaken

Ny rorbu på 159,2 m² grunnflate med 1 etasje, bestående av 3 separate overnattingsenheter med egen inngang. Bygget oppføres med gjenbrukt tømmer fra 1800-tallet, isolert konstruksjon, tømmermannskledning og skifertak. Fundamentering skjer delvis på fast grunn og delvis på peler i sjø, med gulvnivå på kote +4,0 moh. Bygget har saltak med gesimshøyde ca 4 m og mønehøyde ca 6,1-6,5 m. Det er sprossede vinduer og flere dører, samt svalgang som rømningsvei. Sanitærinstallasjon kobles til privat avløpsanlegg med slamavskiller og kommunalt vann via privat stikkledning. Brannteknisk prosjektering følger TEK17 med brannalarmanlegg kategori 1, brannceller for hver leilighet, og rømningsstiger ved vinduer. Bygget er tilrettelagt for utleie til turisme og ligger innenfor 100-metersbeltet langs sjø, med søkt dispensasjon.

Produkter og materialer

Fasade Tømmermannskledning

🧱 Tre

Tradisjonell tømmermannskledning, utvendig overflate D-s3,d0 [Ut2]

Utvendig kledning i tre med tradisjonelt utseende, tilpasset rorbustilbygg

Tak Saltak med skifertak

🧱 Skifer

Saltak med mønehøyde ca 6,1-6,5 m, gesimshøyde ca 4 m, taktekke i skifer

Tak med saltakskonstruksjon og skifertak som taktekke

VVS Sanitærinstallasjon med tilkobling til privat avløpsanlegg

🧱 PE-rør, slamavskiller 4 m³

Privat avløpsanlegg med 2-kamret slamavskiller, sjøledning Ø75 PE, vannforsyning via privat stikkledning

Sanitærinstallasjon med vann og avløp tilkoblet eksisterende private anlegg

Isolasjon Ubrennbar isolasjon i vegger

🧱 Mineralull eller tilsvarende A2-s1,d0

Isolasjon i vegger med klasse A2-s1,d0 for brannsikkerhet

Isolasjon som tilfredsstiller brannkrav i veggkonstruksjon

Vinduer Sprossede vinduer

🧱 Tre med 3-lags glass

Antall: 14

Sprossede vinduer med brannmotstand EI 30 i branncellebegrensende vegger

Vinduer med sprosser, tilpasset branntekniske krav og tradisjonelt utseende

Fasade Svalgang som rømningsvei

🧱 Tre, branncellebegrensende konstruksjon EI 30

Antall: 3

Svalganger ca 7 m lang, utført som branncellebegrensende konstruksjon med overflate Dfl-s1(G)

Svalgang som del av rømningsvei med brannkrav

Tømrer Gjenbruk av tømmer fra 1800-talls langbu

🧱 Tømmer

Bygget opp med gjenbrukt tømmer fra tidligere rorbu, synlig innvendig i størst mulig grad

Tømrerarbeid med gjenbruk av historisk tømmer i konstruksjon og interiør

Elektro Brannalarmanlegg kategori 1

Automatisk brannalarmanlegg med optiske røykdetektorer i rømningsveier og fellesarealer

Brannalarmanlegg for tidlig varsling og sikker rømning

Dører Brannklassifiserte dører EI 30-S

🧱 Tre

Antall: 10

Dører i branncellebegrensende vegger med brannmotstand EI 30-Sa [B 30]

Dører med brannmotstand og tetting for å hindre brannspredning

Brannvern Håndslokkeapparater og rømningsstiger

Håndslokkeapparater minimum 6 kg pulver, rømningsstiger ved vinduer som rømningsvei

Manuelt brannslokkeutstyr og rømningsutstyr for sikker evakuering

Grunnarbeid Fundamentering på peler og fjell

🧱 Betong og stål peler

Fundamentering delvis på fast grunn og delvis på peler i sjø, pelene forankres til fjell

Grunnarbeid med peling og fundamentering på fjell for stabilitet

Plantegning

Enebolig 197.0 m²

Etasje 1 197.0 m²

Rom Areal Vinduer Dører
Kjøkken/Stue 101 26.2 m² 3 1
Sov 102 8.1 m² 1 1
Sov 103 8.1 m² 1 1
Sov/Kjøkken 104 18.8 m² 1 1
Sov 105 11.2 m² 1 1
Kjøkken/Stue 106 26.2 m² 3 1
Gang/Entre 107 7.8 m² 0 1
Bad 108 4.4 m² 0 1
Vask felles 109 3.2 m² 0 1
Gang 110 2.2 m² 0 1
Bad 111 4.2 m² 0 1
Bad 112 4.5 m² 0 1
Gang 113 5.7 m² 0 1
Svalgang 114 4.5 m² 0 1
Svalgang 115 13.1 m² 0 1
Bod/Lager 116 7.9 m² 0 1
Svalgang 117 4.5 m² 0 1

Fasader

Enebolig

Nord
Materiale
Tre
Taktype
Saltak
Takmat.
Tegl
Høyde
4.0 m
Vinduer
2
Dører
1
Balkonger
1
Synlige etasjer
1
Øst
Materiale
Tre
Taktype
Saltak
Takmat.
Tegl
Vinduer
5
Dører
0
Synlige etasjer
1
Sør
Materiale
Tre
Taktype
Saltak
Takmat.
Tegl
Høyde
4.0 m
Mønehøyde
6.5 m
Vinduer
2
Dører
1
Balkonger
1
Synlige etasjer
1
Vest
Materiale
Tre
Taktype
Saltak
Takmat.
Tegl
Høyde
4.0 m
Mønehøyde
6.5 m
Vinduer
5
Dører
1
Balkonger
2
Synlige etasjer
1

Hendelser

22.04.2026 Foreløpig tilsvar til mangelbrev - gnr 11 bnr 344
20.04.2026 Tilbakemelding om mangler - Oppføring av nytt bygg - gnr 11 bnr 344
25.03.2026 1874 - Cfg Eiendom As - søknad om oppføring av nytt bygg - gnr 11 bnr 344