Photo
Fotografi av et landskap med fjell, skog og spredt bebyggelse.
1 / 83
NewConstruction
Unknown
Other
Oppføring av ny skiheis med organisatoriske sikringstiltak
Nøkkelinfo
- Sakstype
- Nybygg
- Bygningstype
- Other
- Kommune
- Voss
- Fylke
- Vestland
- Gnr / Bnr
- 277 / 74
- Saksnummer
- 2025/6458
- Fase
- Unknown
Om byggesaken
Saken gjelder søknad om tillatelse til oppføring av en ny skiheis (T1 og T2) med tilhørende sikringstiltak mot sørpeskred og flomfare. Saken inkluderer dispensasjonssøknad fra TEK17, igangsetjingsløyve og konsekvensutredning for naturmiljø og skredfare.
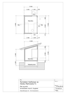
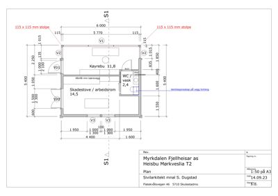
Plantegning
Heisbu 28.7 m²
Etasje 1 28.7 m²
| Rom | Areal | Vinduer | Dører |
|---|---|---|---|
| Køyrebu Køyrebu | 11.8 m² | 1 | 1 |
| Skadestove / arbeidsrom Skadestove / arbeidsrom | 14.5 m² | 2 | 1 |
| WC / vask WC / vask | 2.4 m² | 0 | 1 |
Fasader
Heisbu Mørkveslia T1
Vest
- Materiale
- Tre
- Taktype
- Flatt tak
- Vinduer
- 3
- Dører
- 0
- Synlige etasjer
- 1
Aust
- Materiale
- Tre
- Taktype
- Flatt tak
- Vinduer
- 0
- Dører
- 0
- Synlige etasjer
- 1
Nord
- Materiale
- Tre
- Taktype
- Pulttak
- Vinduer
- 1
- Dører
- 0
- Synlige etasjer
- 1
Sør
- Materiale
- Tre
- Taktype
- Pulttak
- Vinduer
- 0
- Dører
- 1
- Synlige etasjer
- 1
Hendelser
21.04.2026
Vedtak - Søknad om dispensasjon fra TEK17, organisatoriske sikringstiltak - gbnr. 277/74 - Myrkdalen fjellandsby
20.03.2026
NVE sin uttale til søknad om dispensasjon fra TEK17, organisatoriske sikringstiltak for sørpeskred
06.03.2026
Supplering av søknad - gbnr. 277/74
25.02.2026
Søknad på uttale - Søknad om dispensasjon fra TEK17, organisatoriske sikringstiltak for sørpeskred
20.02.2026
Svar på nabovarsel - organisatoriske sikringstiltak for sørpeskred - gbnr. 277/74 - Myrkdalen fjellandsby
19.02.2026
Nabovarsel av søknad om dispensasjon fra TEK17, organisatoriske sikringstiltak for sørpeskred
06.11.2025
Igangsetjingsløyve - skiheis - gbnr. 277/74 - Myrkdalen fjellandsby
30.10.2025
Søknad om igangsettingsløyve - gbnr. 277/74
10.09.2025
Igangsetjingsløyve - skiheis - gbnr. 277/74 - Myrkdalen fjellandsby
08.09.2025
Søknad om igangsetjingsløyve - gbnr. 277/74
03.09.2025
Fråsegn - vurdering av konsesjonsplikt - sikringstiltak i Husagrovi og Illagilsgrovi - Voss - Norways best AS - Myrkdalen Fjellheisar
15.07.2025
Rammeløyve - skiheis - gbnr. 277/74 - Myrkdalen fjellandsby
11.07.2025
Stadfesting av motteken søknad - nytt bygg - skiheis - gbnr. 277/74 - Myrkdalen fjellandsby
10.07.2025
Søknad - nytt bygg - skiheis - gbnr. 277/74 - Myrkdalen fjellandsby