NewConstruction Ferdigattest Other

Ny driftsbygning i landbruket på Ytrehovdevegen 108

📍 Ytrehovdevegen 108 , 6160 HOVDEBYGDA

Nøkkelinfo

Sakstype
Nybygg
Bygningstype
Other
Bruksareal
366 m²
Kommune
Ørsta
Fylke
Møre og Romsdal
Gnr / Bnr
58 / 7
Saksnummer
2022/434
Fase
Ferdigattest

Om byggesaken

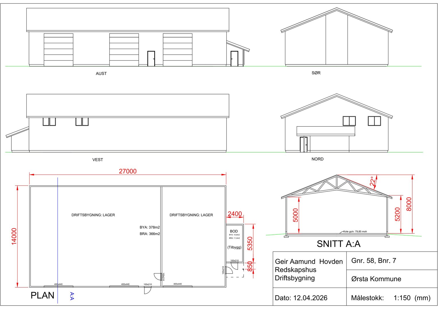
Ny driftsbygning i landbruket med et bruksareal på ca. 366 m² og grunnflate på 378 m² er oppført på eiendommen Ytrehovdevegen 108. Bygningen er i én etasje med en kombinasjon av flatt tak og saltak, og har to dører og fire vinduer fordelt på fasadene. Bygget er tilpasset landbruksformål, spesielt for lagring av redskap og utstyr til juletreproduksjon. Det er også oppført et mindre tilbygg på ca. 11,4 m² i nordenden av bygget. Bygningen er plassert på innmarksteig med ferdig gulvkote på ca. 79,7 moh. Det er ikke innlagt vann, og bygget har garasjeport. Avfallsplan og sluttrapport er levert og godkjent, og ferdigattest er utstedt i 2026.

Produkter og materialer

Elektro Innvendig elektroinstallasjon

Mindre elektroarbeid innvendig, ferdigstilles etter platearbeid

Elektroinstallasjon i driftsbygning

Vinduer Fasadevindu

Antall: 4

To vinduer på vestfasade, to vinduer på nordfasade

Fasadevindu for naturlig lys i driftsbygning

Tak Kombinasjon flatt tak og saltak

Antall: 1

Flatt tak på øst- og vestfasade, saltak på sør- og nordfasade

Taktype for driftsbygning

Tømrer Byggkonstruksjon

Tømrerarbeid for oppføring av driftsbygning og mindre tilbygg

Avfallshåndtering Avfallsplan og sluttrapport

Sluttrapport med avfallsplan for kildesortering og disponering av byggeavfall

Dokumentasjon for avfallshåndtering i byggeprosjektet

Gulv Betongplate

🧱 Betong

Platearbeid innvendig påbegynt, ferdigstilles 1. kvartal 2026

Betonggulv i driftsbygning

Dører Ytterdør

Antall: 3

To dører på østfasade, én dør på nordfasade

Ytterdører for adkomst til driftsbygning

Grunnarbeid Fundamentering og grunnarbeid

Bygget plassert med ferdig gulvkote 79,7 moh, grunnarbeid tilpasset landbruksbygning

Grunnarbeid for driftsbygning på innmarksteig

Fasade Garasjeport

Antall: 1

Garasjeport på østfasade

Garasjeport for innkjøring til driftsbygning

Mur Grunnmur

Grunnmur for driftsbygning

Fasader

Driftsbygning

Aust
Taktype
Flatt tak
Høyde
5.0 m
Vinduer
0
Dører
2
Synlige etasjer
1
Sør
Taktype
Saltak
Vinduer
0
Dører
0
Synlige etasjer
1
Vest
Taktype
Flatt tak
Vinduer
2
Dører
0
Synlige etasjer
1
Nord
Taktype
Saltak
Vinduer
2
Dører
1
Synlige etasjer
1

Hendelser

16.04.2026 Ferdigattest - Driftsbygning i landbruket - Ytrehovdevegen 108 - gnr 58 bnr 7
14.04.2026 Tilbakemelding på 'Purring på søknad om ferdigattest - Driftsbygning i landbruket - Ytrehovdevegen 108 - gnr 58 bnr 7'
08.12.2025 Melding vedkomande sak
27.11.2025 Purring på søknad om ferdigattest - Driftsbygning i landbruket - Ytrehovdevegen 108 - gnr 58 bnr 7
28.04.2022 Løyve til tiltak - Driftsbygning i landbruket - Ytrehovdevegen 108 - gnr 58 bnr 7
12.04.2022 Driftsbygning i landbruket - Ytrehovdevegen 108 - gnr 58 bnr 7 - Uttale frå landbrukskontoret
08.02.2022 Intern oversending - Driftsbygning i landbruket - Ytrehovdevegen 108 - gnr 58 bnr 7
24.01.2022 Søknad om løyve til tiltak utan ansvarsrett