Other Ferdigattest Other

Opparbeidelse av vei, vann og avløp ved Åsen gård, Drammen

📍 Åsen gård

Nøkkelinfo

Sakstype
Other
Bygningstype
Other
Boenheter
97
Kommune
Drammen
Fylke
Buskerud
Gnr / Bnr
218 / 430
Saksnummer
22/05259
Fase
Ferdigattest

Om byggesaken

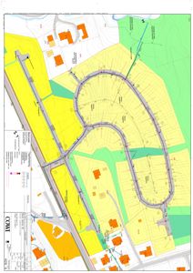
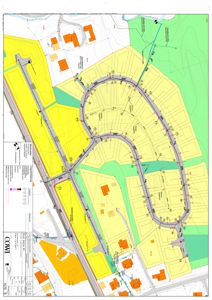
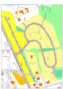
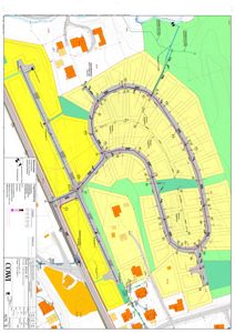
Prosjektet omfatter opparbeidelse av infrastruktur for boligfeltet Åsen gård i Drammen kommune, inkludert deler av Midtåsveien med tilhørende fortau, ringvei og tilhørende vann- og avløpsanlegg. Veianleggene bygges med asfaltert kjørebane, fortau, kantstein og grøfter for overvannshåndtering. VA-anlegget inkluderer vannkummer, fordelingskummer, stake- og spylekummer, sandfang og sluk, samt stikkledninger for vann og avløp. Overvann håndteres i hovedsak gjennom åpne grøfter med fordrøyning, infiltrasjon på tomtene og i felles grøntarealer. Prosjektet omfatter ca. 100 boenheter med en kombinasjon av eneboliger og konsentrert småhusbebyggelse. Det er gjennomført arkeologiske undersøkelser og naturmangfoldvurderinger i området. Tiltaket er gjennomført i henhold til reguleringsplan, utbyggingsavtale og kommunale normer, og ferdigattest er gitt.

Produkter og materialer

VVS Brannvannsuttak

🧱 Brannventil type Ulefos Esco eller tilsvarende

Brannventil med sikring og beskyttelseskappe i vannkummer

Brannvannsuttak i kum med dekningsområde iht. TEK17 og kommunalteknisk norm

Fasade Kantstein

🧱 Granitt

120x250 mm visning, 13 cm høyde, 2-3 cm ved nedsenk

Kantstein langs fortau og vei iht. reguleringsplan og gatenorm

Grunnarbeid Veibygging og grøfter

🧱 Fiberduk, knuste masser, subbus

Normalprofiler veger, grøftesnitt med drensledninger, sandfang, terskler i grøfter

Opparbeidelse av vei med bærelag, forsterkningslag, drensgrøfter og overvannsgrøfter med fordrøyning

Elektro Skiltplan og belysning

Skiltplan L101, belysning IN020, IN021, IN090, IN091

Skilt og belysning langs veier og i boligfelt

VVS Overvannshåndtering

🧱 Åpne grøfter med terskler, infiltrasjonsgrøfter, regnbed

Grøfter med terskler hver 3-5 meter, filtermedium ca. 30 cm, drensledninger, sandfang med ristelokk

Overvannshåndtering i åpne grøfter langs veier og i felles grøntarealer, infiltrasjon og fordrøyning på tomter

Tømrer Skjøtsel av trær og natur

Skjøtselsplan for naturområder, beskjæring og felling av trær, bevaring av allé og naturlekeplass

Skjøtsel og vedlikehold av naturområder og trær i boligfeltet

Tak Asfaltdekke vei og fortau

🧱 Asfalt

Asfaltert kjørebane 5,5 m inkl. veiskuldre på Midtåsveien, 4 m på adkomstveier, fortau 2,5 m bredde

Asfaltdekke på vei og fortau i boligfeltet

VVS Rørledninger vann og avløp

🧱 PVC-U SN8, PE100 SDR11, PP SN8

Hovedledninger Ø150-315 mm, stikkledninger rør i rør PE100 32/50 mm

Vann- og avløpsledninger i felles grøft med vei

Grunnarbeid Utkilinger og frostdybde

Utkilinger mellom fjell og løsmasser, frostdybde, tilbakefylling med ikketelefarlige masser

Grunnarbeider for vei og VA-anlegg i telefarlig grunn

VVS Vannkummer

🧱 Betongkum med aluminiumstige, støpejernslokk

Antall: 14

Typetegninger H440, H441, H442, H443, H446; kumringer Ø1600 mm, brannventil, ventilkryss, blindflens, lufteventil

Vannkummer, fordelingskummer, stake- og spylekummer, sandfang og sluk for vann- og avløpsanlegg

Hendelser

15.04.2026 Åsen Gård, ferdigattest for opparbeidelse av vei, vann og avløp
27.10.2025 Åsen gård, søknad om ferdigattest 218/468
09.04.2024 Åsen gård, svar på merknad til utbygging av vei, vann og avløp
05.03.2024 Åsen Gård, tilbakemelding fra ansvarlig søker på merknad fra nabo
05.03.2024 Åsen Gård, nabomerknad til VA-anlegg
06.09.2023 Åsen gård, Skjøtselsplan og felling av trær
10.08.2023 Åsen Gård, Igangsettingstillatelse for opparbeidelse av vei, vann og avløp
08.08.2023 Åsen Gård, søknad om igangsettingstillatelse, oversendelse av oppdatert tegningsgrunnlag
22.11.2022 Åsen gård, melding om mottatt søknad
21.11.2022 Åsen gård, Søknad om igangsettingstillatelse
06.07.2022 Åsen Gård, Rammetillatelse for opparbeidelse av vei, vann og avløp med dispensasjon
02.05.2022 Åsen gård, supplering av søknad
21.04.2022 218/430, Åsen Gård, status på rammesøknad for VVA
17.02.2022 218/430 Åsen gård, søknad om rammetillatelse