Other UnderBehandling Other

Flere byggeprosjekter i Etne kommune, inkl. enebolig og kraftverk

Nøkkelinfo

Sakstype
Other
Bygningstype
Other
Bruksareal
358 m²
Boenheter
1
Kommune
Etne
Fylke
Vestland
Saksnummer
2026/69
Fase
Under behandling

Om byggesaken

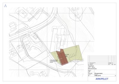
Prosjektene omfatter flere ulike bygge- og anleggstiltak i Etne kommune, blant annet ny enebolig med saltak og tegl takmateriale på ca. 358 m² BRA fordelt på tre etasjer med trapper, balkonger og flere rom som stue, kjøkken, bad og soverom. Det er også påbygg og fasadeendringer på eksisterende bygg, samt bygging av Miljateig kraftverk med tilhørende anlegg som dam, inntak, vannvei, kraftstasjon, tilkomstvei og skogsveg. Kraftverket har konsesjon og søkes oppført i LNF-område med dispensasjon. Flere andre tiltak som båthavn, hotellhage og boligtilbygg inngår også i saken. Prosjektene inkluderer detaljerte tegninger, situasjonsplaner og tekniske beskrivelser.

Produkter og materialer

Tak Saltak med teglstein

🧱 tegl

Antall: 1

Saltak med teglstein som takmateriale på enebolig

Taktekking for enebolig og tilbygg

Annet Konsesjon og dispensasjon

Søknader om konsesjon, dispensasjon og deling for kraftverk og andre tiltak

Administrativt arbeid knyttet til byggesak og anlegg

Vinduer Fasadevindu i tre

🧱 tre

Antall: 18

Vinduer i tre med 3-lags glass, inkludert EI 30 brannvinduer

Fasadevinduer til enebolig og tilbygg, inkludert brannvinduer

Dører Ytterdører og balkongdører

🧱 tre

Antall: 15

Ytterdører og balkongdører i tre, inkludert brannklassifiserte dører EI 30

Ytterdører og balkongdører til enebolig og tilbygg

Grunnarbeid Fundamentering og oppmåling

Oppmålingsforretning og grunnarbeid for kraftverk og bygg

Grunnarbeid for kraftverk, enebolig og tilbygg

Elektro Strømtilførsel og belysning

Elektroinstallasjoner for bolig og kraftverk

Elektriske installasjoner for bygg og anlegg

Tømrer Innvendige vegger og tak

🧱 tre

Tømrerarbeid for innvendige vegger, tak og trapperom

Tømrerarbeid i bolig og tilbygg

VVS Sanitærinstallasjoner

Bad og toalett med sanitærinstallasjoner

VVS-installasjoner for bad og toalett i bolig

Betong Fundamenter og konstruksjoner

🧱 betong

Betongfundamenter for kraftverk og bygg

Betongarbeider for kraftverk og bygg

Fasade Trekledning

🧱 tre

Trekledning på fasader i flere prosjekter

Fasadebekledning for enebolig og tilbygg

Trapper Innvendig trapp og heisrom

Antall: 1

Innvendig trapp og heisrom på ca. 16,9 m² og innbygd trapperom 20,8 m²

Trapper og heisrom i enebolig

Balkong Balkonger hengt utenpå fasade

🧱 tre

Antall: 4

Nye balkonger hengt utenpå fasaden, størrelser ca. 7,7-8,9 m²

Balkonger til enebolig og tilbygg

Maling Innvendig og utvendig maling

Maling av fasader og innvendige flater

Maling for fasader og innvendige rom

Ventilasjon Ventilasjonssystem

Ventilasjon for bolig og kraftverk

Ventilasjonssystemer for bygg

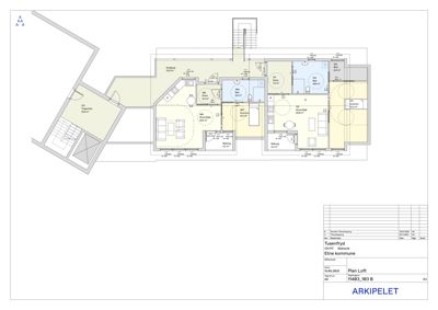
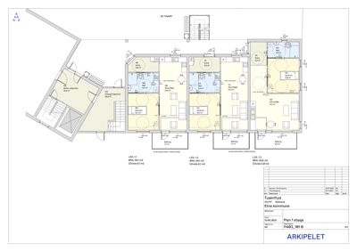
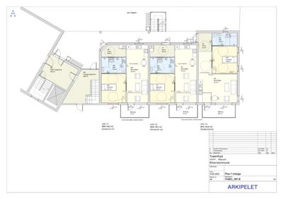
Plantegning

Enebolig 357.9 m²

Etasje 1 104.0 m²

Rom Areal Vinduer Dører
Stue 101 30.0 m² 2 1
Kjøkken 102 26.8 m² 1 1
Bad 103 4.7 m² 0 1
Toalett 104 1.0 m² 0 1
Sov 1 105 11.0 m² 1 1
Sov 2 106 9.5 m² 1 1
Sov 3 107 7.0 m² 1 1
Sov 4 108 3.5 m² 1 1
Gang 109 5.0 m² 0 0
Terrasse 110 15.0 m² 0 1
Entre 111 6.5 m² 0 1
Stove/Kjek 112 27.5 m² 1 1
Soverom 113 15.7 m² 0 1
Bad 114 8.4 m² 0 1
Entre 121 5.3 m² 0 1
Stove/Kjek 122 31.1 m² 1 1
Soverom 123 15.0 m² 0 1
Bad 124 6.8 m² 0 1
Eksist. trapp/heis 125 16.9 m² 0 1
Innbygd trapperom 126 20.8 m² 0 1
Balkong Balkong 7.7 m² 0 0

Etasje 2 73.5 m²

Rom Areal Vinduer Dører
Gang 201 17.0 m² 0 2
Sov 202 10.4 m² 1 1
Sov 203 19.2 m² 3 1
Loftstue 204 36.9 m² 2 0

Etasje 0 180.4 m²

Rom Areal Vinduer Dører
Trapp/heis 313 16.9 m² 0 1
Stove/Kjøk 302 29.2 m² 1 1
Entre 301 4.3 m² 0 1
Bad 304 8.6 m² 0 1
Soverom 303 12.5 m² 1 1
Stove/Kjøk 312 25.0 m² 2 1
Entre 311 7.3 m² 0 1
Bad 314 10.6 m² 0 1
Bod 315 5.5 m² 0 1
Soverom 313 22.2 m² 1 1
Svalgang Svalgang 33.5 m² 0 0

Fasader

Enebolig

Vest
Materiale
Tre
Taktype
Saltak
Takmat.
Tegl
Høyde
3.2 m
Mønehøyde
4.6 m
Vinduer
13
Dører
1
Balkonger
4
Synlige etasjer
3
Nord
Materiale
Tre
Taktype
Saltak
Takmat.
Tegl
Høyde
3.2 m
Mønehøyde
4.6 m
Vinduer
2
Dører
1
Synlige etasjer
1
Sør
Materiale
Tre
Taktype
Saltak
Takmat.
Tegl
Høyde
3.2 m
Mønehøyde
4.6 m
Vinduer
2
Dører
1
Synlige etasjer
1
Øst
Materiale
Tre
Taktype
Saltak
Takmat.
Tegl
Høyde
3.2 m
Mønehøyde
4.6 m
Vinduer
1
Dører
1
Synlige etasjer
1

Hendelser

21.04.2026 Nabovarsel - Skånevik Tusenfryd
13.04.2026 Nabovarsel for Milja allé 5 - gnr. 134 bnr. 086
13.04.2026 Nabovarsel for Ringvegen 16 - gnr. 136 bnr. 030
09.04.2026 Nabovarsel - Skånevik Tusenfryd
16.03.2026 Nabovarsel for Tongane 18 - gnr. 010 bnr. 086
12.03.2026 Nabovarsel for gnr. 142 bnr. 010 - Taraldsøy
12.03.2026 Nabovarsel for gnr. 010 bnr. 001 fnr. 001 - Etne Båthavn
03.03.2026 Nabovarsel for gnr. 111 bnr. 010 og 001 - Miljateig kraftverk
28.01.2026 Nabovarsel for Leknestangen 135 - gnr. 137 bnr. 136 og gnr. 137 bnr. 148
09.01.2026 Nabovarsel for Fitje til Etne Kommune - gnr. 031 bnr. 040