Other Igangsettingstillatelse Other

Flere byggesaker med tilbygg, bruksendring og nybygg i Tysvær kommune

Nรธkkelinfo

Sakstype
Other
Bygningstype
Other
Bruksareal
554 mยฒ
Kommune
Tysvær
Fylke
Rogaland
Saksnummer
2026/3
Fase
Igangsettingstillatelse

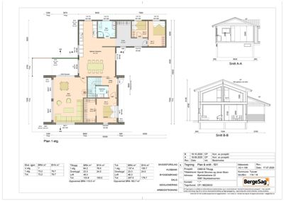
Om byggesaken

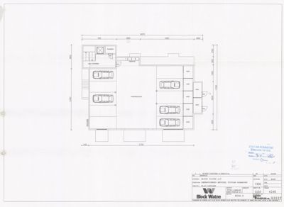
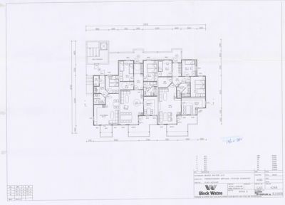
Prosjektet omfatter flere byggesaker i Tysvær kommune, inkludert oppføring av tilbygg til boliger og driftsbygninger, bruksendring fra fritidsbolig til bolig, samt nybygg som eneboliger med garasje. Byggene varierer i størrelse og funksjon, med detaljerte plantegninger som viser romfordeling, vinduer, dører, trapper og balkonger. Prosjektene inkluderer også tekniske installasjoner som brannalarmanlegg, tilkobling til kommunalt vann og avløp, og tiltak i landbruks- og LNF-områder. Flere saker krever dispensasjon fra kommuneplanens arealformål, og det foreligger godkjente søknader og vedtak for tiltakene. Det er også dokumentert krav til nabovarsling, situasjonskart, og tekniske spesifikasjoner i henhold til TEK17.

Produkter og materialer

Bygningskomponenter Dører

๐Ÿงฑ Tre

Antall: 30

Ytterdører og innerdører i tre, inkludert skyvedører og glassdører

Ytterdører og innerdører i bolig og tilbygg

Bygningskomponenter Vinduer

๐Ÿงฑ Tre

Antall: 54

Vinduer i ulike rom i enebolig og tilbygg, inkludert 3-lags energiglass i enkelte tilfeller

Fasadevindu i tre, inkludert karnapp og skyvedører i tilbygg

Terrasse Terrasse med rekkverk

๐Ÿงฑ Tre

Terrasseutvidelse med rekkverk, søknadspliktig i LNF-område

Utvidelse av terrasse i tilknytning til bolig

Ventilasjon Ventilasjonsanlegg

Ventilasjon i bolig og næringsbygg i henhold til TEK17

Ventilasjonsløsninger for inneklima

Maling Utvendig maling

Maling av trefasader for vedlikehold og estetisk tilpasning

Utvendig maling av trepanel

Tømrer Bygging av tilbygg og redskapshus

๐Ÿงฑ Tre

Oppføring av tilbygg til bolig og driftsbygninger, redskapshus/lager på eksisterende gjødselkjeller

Tømrerarbeid for tilbygg og landbruksbygg

Elektro Elektrisk installasjon

Elektrisk anlegg i bolig og næringsbygg, inkludert belysning og stikkontakter

Elektriske installasjoner i henhold til forskrifter

Brannvern Brannalarmanlegg

Brannalarmanlegg med tilkobling til 110-sentral, FG-godkjent nøkkelsafe ved hovedinngang

Brannalarmanlegg og tilhørende sikkerhetsutstyr for næringsbygg

Grunnarbeid Sanering av slamavskiller

Sanering og fjerning av slamavskiller ved tilkobling til kommunalt avløp

Fjerning av gamle slamavskillere i forbindelse med tilkobling til offentlig nett

Garasjeport Garasjeport i tre

๐Ÿงฑ Tre

Antall: 2

Garasjeporter i tre på bolig

Garasjeporter til integrert garasje

Brygge Brygge og flytebrygge

Reparasjon, forsterking og utskifting av brygger og flytebrygger, søknadspliktige tiltak i LNF-område

Bryggearbeider med krav om søknad og dispensasjon

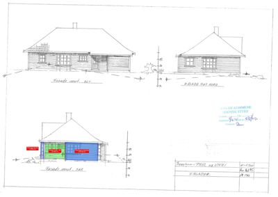
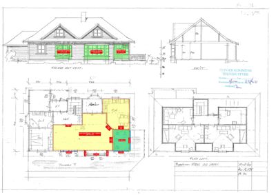
Tak Saltak og flatt tak

๐Ÿงฑ Tegl og flatt tak materialer

Saltak med teglstein og flate tak på deler av bolig og tilbygg

Taktekking med teglstein på saltak og flate tak på tilbygg

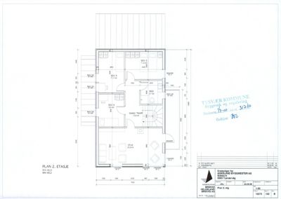
Trapper Innvendig trapp

๐Ÿงฑ Tre/stål

Antall: 2

Innvendige trapper i bolig, inkludert heis/trappehus

Innvendige trapper i flere etasjer

Kjøkken Kjøkken og allrom

Kjøkken med tilhørende spise- og oppholdsareal

Kjøkkeninnredning og tilhørende rom

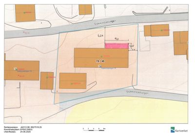
Grunnarbeid Oppmålingsforretning og matrikkelføring

Oppmålingsforretning for fradeling og matrikkelføring av nye tomter

Kartlegging og oppmåling av eiendommer for byggesaker

Bad Bad og vaskerom

Bad og vaskerom i bolig med standard sanitærinstallasjoner

Sanitærinstallasjoner i bolig

Annet Bruksendring

Bruksendring fra fritidsbolig til bolig, inkludert godkjenning av soverom

Endring av bruksenhet i bolig

VVS Kommunalt vann og avløp

Tilkobling til kommunalt vann og avløp, private avløpsløsninger der kommunalt nett ikke er tilgjengelig

Vann- og avløpsinstallasjoner i henhold til kommunale krav

Garasje Garasje over 50 m2

๐Ÿงฑ Tre

Antall: 1

Garasje på 48,36 m2 med mønehøyde 5,29 m, krever full byggesøknad og dispensasjon for høyde

Garasje med høyde over standardgrense

Fasade Tre kledning

๐Ÿงฑ Tre

Tre kledning på fasader

Tre kledning på bolig og tilbygg

Isolasjon Isolasjon i vegger og tak

Isolasjon i henhold til TEK17 for bolig og tilbygg

Isolasjon for energieffektivitet og komfort

Garasje Frittstående garasje under 50 m2

๐Ÿงฑ Tre

Antall: 1

Garasje med saltak eller valmtak, mønehøyde maks 4 m, gesimshøyde maks 3 m, i tråd med reguleringsbestemmelser

Frittstående garasje under 50 m2 BYA

Fasader

Enebolig

Nord
Materiale
Tre
Taktype
Flatt tak
Hรธyde
6.0 m
Mรธnehรธyde
8.2 m
Vinduer
3
Dรธrer
1
Synlige etasjer
2
Vest
Materiale
Tre
Taktype
Saltak
Takmat.
Tegl
Hรธyde
6.5 m
Mรธnehรธyde
8.2 m
Vinduer
3
Dรธrer
0
Synlige etasjer
2
Sør
Materiale
Tre
Taktype
Flatt tak
Hรธyde
6.0 m
Mรธnehรธyde
8.2 m
Vinduer
4
Dรธrer
1
Balkonger
1
Synlige etasjer
2
Øst
Materiale
Tre
Taktype
Saltak
Takmat.
Tegl
Hรธyde
3.3 m
Mรธnehรธyde
8.2 m
Vinduer
2
Dรธrer
1
Balkonger
1
Synlige etasjer
2
Sørøst
Materiale
Tre
Taktype
Saltak
Hรธyde
6.5 m
Mรธnehรธyde
8.2 m
Vinduer
6
Dรธrer
1
Balkonger
1
Synlige etasjer
2
Nordøst
Materiale
Tre
Taktype
Saltak
Hรธyde
6.5 m
Mรธnehรธyde
8.2 m
Vinduer
2
Dรธrer
1
Synlige etasjer
2
Sørvest
Materiale
Tre
Taktype
Saltak
Vinduer
7
Dรธrer
2
Balkonger
1
Synlige etasjer
2
Nordvest
Materiale
Tre
Taktype
Saltak
Hรธyde
3.0 m
Mรธnehรธyde
4.5 m
Vinduer
3
Dรธrer
0
Balkonger
1
Synlige etasjer
1
Sør-øst
Materiale
Tre
Taktype
Saltak
Vinduer
3
Dรธrer
1
Synlige etasjer
2
Sør-vest
Materiale
Tre
Taktype
Saltak
Vinduer
4
Dรธrer
1
Balkonger
1
Synlige etasjer
2
Nord-vest
Materiale
Tre
Taktype
Saltak
Vinduer
4
Dรธrer
1
Balkonger
1
Synlige etasjer
2
Nord-øst
Materiale
Tre
Taktype
Saltak
Vinduer
3
Dรธrer
1
Synlige etasjer
2

Lærebolig

Sør
Materiale
Tre
Taktype
Flatt tak
Vinduer
9
Dรธrer
1
Balkonger
1
Synlige etasjer
2

Hovedbygg

Ukjent
Materiale
Tre
Taktype
Flatt tak
Vinduer
10
Dรธrer
1
Balkonger
1
Synlige etasjer
2
Nord
Materiale
Tre
Taktype
Flatt tak
Vinduer
7
Dรธrer
1
Synlige etasjer
1

Hendelser

16.04.2026 Støtteordning til elsykkel/lastesykkel
15.04.2026 Gbnr 79/1032 - Spørsmål vedrørende fellesareal - Førreneset 10
15.04.2026 Gbnr 4/93 - Svar vedrørende spørsmål i forbindelse med riving av eldre hus - Tysværvegen 1008
15.04.2026 Gbnr 166/67 - Svar på spørsmål vedrørende boligen på eiendommen - Hinderåvåg 47
14.04.2026 Gbnr 72/8 - Svar på forespørsel vedrørende søknadsplikt for trimpark
14.04.2026 Gbnr 59/6 - Svar vedrørende søknadsplikt for planlagt arbeid ved bryggeanlegg - Slåttevik båtforening
13.04.2026 Gbnr 143/59 - Spørsmål angående tiltak innen 100-metersbeltet - Liarvågvegen 863
10.04.2026 Gbnr 112/1 - Svar vedrørende tilbygg til driftsbygning - ny E39 - Sundførvegen 198
10.04.2026 Gbnr 65/40 - Svar på spørsmål vedrørende eiendomsgrenser - Kallevikvegen 25
09.04.2026 Gbnr 166/67 - Spørsmål vedrørende eiendom - Hinderåvåg 47
09.04.2026 Gbnr 68/17 - Spørsmål vedrørende eiendom - Høievegen 595
08.04.2026 Gbnr 99/28 - Spørsmål vedrørende tilkobling kommunalt vann og etablering av minirenseanlegg
08.04.2026 Gbnr 4/93 - Veiledning vedrørende søknad om riving av eldre hus - Tysværvegen 1008
31.03.2026 Notat fra veiledningsmøte med Skjoldastraumen utvikling
30.03.2026 Gbnr 65/40 - Spørsmål vedrørende eiendomsgrenser - Kallevikvegen 25
26.03.2026 Gbnr 8/8/1 - Svar vedrørende kjøp av festetomt
26.03.2026 Spørsmål om utskifting av flytebrygger er søknadspliktig
26.03.2026 Gbnr 8/8/1 - Vedrørende innløsing av festetomt
26.03.2026 Svar på spørsmål om utskifting av flytebrygger er søknadspliktig
26.03.2026 Gbnr 112/1 - Uttalelse - tilbygg til driftsbygning - Sundførvegen 198
24.03.2026 Gbnr 165/37 - Svar på spørsmål om boplikt
20.03.2026 Gbnr 63/17 og 63/11 - Svar på spørsmål vedrørende utnyttelsesgrad og høyde på driftsbygning - Høievegen 802 og 803
20.03.2026 Gbnr 165/37 - Spørsmål om boplikt
18.03.2026 Svar på spørsmål vedrørende søknadsplikt for søppelanlegg
18.03.2026 Svar på spørsmål om behandlingsgebyr for søknad om tiltak uten ansvarsrett
18.03.2026 Gbnr 8/8/1 - Spørsmål om innløsing av festetomt
17.03.2026 Gbnr 116/2 og 116/3 - Svar på spørsmål om søknadsplikt - oppføring av redskapshus/ lager
17.03.2026 Svar på spørsmål vedrørende ferdigmelding gravearbeid
17.03.2026 Gbnr 71/275 - Svar på spørsmål vedrørende krav om tilkobling til alarmsentral - Steinsvik Production AS
17.03.2026 Gbnr 79/483 - Svar på spørsmål vedrørende gbnr 79/535 som 79/483 grenser til
17.03.2026 Svar på spørsmål vedrørende regulering - Hervik Sør
17.03.2026 Gbnr 35/30- Svar på forespørsel om tegninger o.a på bolig - Skogøyvegen 32
16.03.2026 Spørsmål vedrørende søppelanlegg
16.03.2026 Gbnr 8/8/1 - Spørsmål vedrørende kjøp av festetomt
16.03.2026 Spørsmål om behandlingsgebyr - søknad om tiltak uten ansvarsrett - hyttevei - blankett 5153
16.03.2026 Gbnr 63/17 og 63/11 - Spørsmål vedrørende utnyttelsesgrad og høyde på driftsbygning - Høievegen 802 og 803
12.03.2026 Gbnr 71/317 - Svar på spørsmål vedrørende søknadsplikt - carport - Frakkagjerddalen 60
12.03.2026 Gbnr 35/30 - Forespørsel om tegninger på bolig - Skogøyvegen 32
11.03.2026 Spørsmål vedrørende regulering - Hervik Sør
11.03.2026 Gbnr 116/2 og 116/3 - Spørsmål om søknadsplikt - oppføring av redskapshus/ lager
11.03.2026 Spørsmål vedrørende ferdigmelding gravearbeid
10.03.2026 Gbnr 79/36 - Svar på spørsmål vedrørende fradeling av tomt
10.03.2026 Svar på forespørsel om veiledningsmøte vedrørende bygging i Skjoldastraumen
09.03.2026 Gbnr 60/39 - Svar på spørsmål vedrørende eiendom - Gismarvikvegen 521
09.03.2026 Gbnr 71/317 - Spørsmål vedrørende søknadsplikt - carport - Frakkagjerddalen 60
06.03.2026 Gbnr 79/36 - Spørsmål vedrørende fradeling av tomt
06.03.2026 Gbnr 71/275 - Spørsmål om krav om tilkobling til alarmsentral - Steinsvik Production AS
06.03.2026 Gbnr 39/12 - Svar på spørsmål i forbindelse med salg av eiendom på Borgøy
06.03.2026 Gbnr 55/26 - Svar på spørsmål vedrørende naust på eiendom - Susort
06.03.2026 Gbnr 56/125 - Svar - Spørsmål vedrørende eiendom
06.03.2026 Bestilling av kartpakke - Aksdal
05.03.2026 Gbnr 63/17 og 63/11 - Svar på bestilling av situasjonskart - Høievegen 802 og 803
04.03.2026 Gbnr 56/125 - Spørsmål vedrørende eiendom
04.03.2026 Gbnr 60/39 - Forespørsel vedrørende eiendom og mulig konsesjon - Gismarvikvegen 521
04.03.2026 Gbnr 55/26 - Spørsmål vedrørende eiendom - Susort
04.03.2026 Forespørsel om veiledningsmøte - bygging i Skjoldastraumen
03.03.2026 Gbnr 166/100 - Svar på nye spørsmål vedrørende oppføringa av garasje under 50 m2 BYA - Bjørkeli 17
03.03.2026 Gbnr 63/17 og 63/11 - Bestilling av situasjonskart - Høievegen 802 og 803
02.03.2026 Gbnr 112/1 - Ber om uttale - Tilbygg til driftsbygning - Sundførvegen 198
02.03.2026 Gbnr 166/100 - Videre spørsmål vedrørende garasje under 50 m2 - Bjørkeli 17
27.02.2026 Gbnr 79/1122 - Svar på forespørsel om oversending av igangsettingstillatelse - Gamlevegen 4
26.02.2026 Gbnr 23/31 - svar på spørsmål om matrikkelbrev
26.02.2026 Gbnr 39/12 - Spørsmål vedrørende salg av fritidsbolig/bolig - Borgøy
26.02.2026 Gbnr 79/1122 - Forespørsel om oversending av igangsettingstillatelse - Gamlevegen 4
24.02.2026 Gbnr 166/100 - Svar på spørsmål vedrørende garasje under 50 m2 - Bjørkeli 17
23.02.2026 Gbnr 121/31 med flere - Svar på spørsmål vedrørende utbygging av tomter
23.02.2026 Gbnr 59/107 - Svar på bestilling av tegninger og kart med VA ledninger - Melkevikvegen 10
23.02.2026 Gbnr 80/36 - Svar på spørsmål vedrørende eiendom - Bratthammarvegen 76
23.02.2026 Gbnr 59/19 - Svar på spørsmål om brygge på eiendommen er godkjent - Susortvegen 125
22.02.2026 Gbnr 80/36 - Spørsmål vedrørende eiendom - Bratthammarvegen 76
20.02.2026 Gbnr 166/100 - Spørsmål om bygg av garasje mindre enn 50m2 - Bjørkeli 17
19.02.2026 Gbnr 59/107 - Bestilling av tegninger og VA-kart - Melkevikvegen 10
19.02.2026 Gbnr 19/105 - Svar på spørsmål om søknadsplikt - mindre tilbygg/ fasadeendring - Padlane 20
19.02.2026 Gbnr 119/19 - Svar på bestilling av tegninger - Bjørkebakkane 23
19.02.2026 Gbnr 59/19 - Spørsmål om godkjent brygge - Susortvegen 125
19.02.2026 Gbnr 39/2 og 67 - Svar på forespørsel om planstatus, naust og rettigheter til sjø - Borgøy
18.02.2026 Gbnr 119/19 - Etterspør tegninger - Bjørkebakkane 23
18.02.2026 Gbnr 112/1 - Vedrørende tilbygg til driftsbygning - ny E39 - Sundførvegen 198
17.02.2026 Svar på forespørsel vedrørende faresone - planid 201103
17.02.2026 Gbnr 63/21 - Svar på forespørsel om byggesaksdokumenter - Høievegen 1120
16.02.2026 Gbnr 63/2 - Forespørsel om byggesaksdokumenter - Høievegen 1120
16.02.2026 Gbnr 39/2 og 67 - Forespørsel om planstatus, naust og rettigheter til sjø - Borgøy
15.02.2026 Gbnr 121/31 med flere - Spørsmål vedrørende utbygging av tomter
12.02.2026 Forespørsel vedrørende faresone - planid 201103
12.02.2026 Svar på spørsmål om søknadsplikt ved riving av forsiloer
12.02.2026 Gbnr 119/19 - Svar på forespørsel om tegninger - Bjørkebakkane 23
12.02.2026 Gbnr 19/105 - Spørsmål om søknadsplikt - mindre tilbygg/ fasadeendring - Padlane 20
11.02.2026 Gbnr 119/19 - Forespørsel om tegninger - Bjørkebakkane 23
11.02.2026 Forespørsel om digital fil av reguleringsplan - Haugaland Næringspark - delområde 1 - planID 201103
10.02.2026 Svar - Gbnr 70/3 - Sanere slamavskiller Høievegen 436
10.02.2026 Gbnr 69/1 - Svar på spørsmål om søknadsplikt - reparasjon og forsterking av brygge - Høievegen 403
09.02.2026 Svar på forespørsel om tegninger - Helsekvartalet
09.02.2026 Spørsmål om søknadsplikt ved riving av forsiloer
09.02.2026 Gbnr 68/12 - Svar på spørsmål om søknadsplikt - tunneldrivhus - Høievegen 500
09.02.2026 Forespørsel om tegninger - Helsekvartalet
06.02.2026 Gbnr 79/862 seksjonsnummer 8 - Svar på spørsmål vedrørende bruksendring - Førresfjorden brygge 5b
06.02.2026 Gbnr 115/11 - Svar på spørsmål vedrørende arbeid på nabotomt - Dalbygda 42
06.02.2026 Svar på spørsmål om feiere kan gi ut liste med utførende firma
05.02.2026 Gbnr 68/12 - Spørsmål om søknadsplikt - tunneldrivhus - Høievegen 500
04.02.2026 Gbnr 115/11 - Spørsmål vedrørende boligsalg - Dalbygda 42
04.02.2026 Gbnr 79/1106 - Svar på spørsmål vedrørende pipe/ildsted i byggesak - Bakkevegen 1b
04.02.2026 Gbnr 79/862 seksjonsnummer 8 - Spørsmål vedrørende bruksendring - Førresfjorden brygge 5b
04.02.2026 Spørsmål om feiere kan gi ut liste med utførende firma
04.02.2026 Gbnr 69/1 - Spørsmål om søknadsplikt - reparasjon og forsterking av brygge - Høievegen 403
02.02.2026 Gbnr 79/1106 - Avklaring vedrørende pipe/ ildsted i byggesak - Bakkevegen 1b
02.02.2026 Gbnr 1/8 - Tilleggsinformasjon - Svar på spørsmål vedrørende fradeling - Odlandsvegen 26
02.02.2026 Gbnr 79/483 - Vedrørende meglerpakke - Høgenapvegen 1
29.01.2026 Gbnr 18/50 - Svar på spørsmål vedrørende rehabilitering av fritidsbolig - Førlandsvegen 273
28.01.2026 Gbnr 1/8 - Svar på spørsmål vedrørende fradeling - Odlandsvegen 26
28.01.2026 Gbnr 18/50 - Spørsmål vedrørende rehabilitering av fritidsbolig - Førlandsvegen 273
28.01.2026 Forespørsel om kartunderlag for område ferjekai Nedstrand
27.01.2026 Gbnr 18/45 - Svar på spørsmål vedrørende eventuell søknad om badstu på Neskaien
26.01.2026 Spørsmål om søknadsplikt ved utvidelse av terrasse
26.01.2026 Gbnr 18/45 - Søke om badstu på Neskaien
26.01.2026 Gbnr 70/3 - Spørsmål vedrørende sanering av slamavskiller - Høievegen 436
26.01.2026 Gbnr 24/14 - Svar på spørsmål vedrørende tilbygg til bolig - Tysværvågvegen 414
26.01.2026 Gbnr 1/8 - Spørsmål vedrørende fradeling - Odlandsvegen 26
26.01.2026 Svar på spørsmål om søknadsplikt ved utvidelse av terrasse
21.01.2026 Svar på forespørsel om dokumenter - Tysvær vindkraftverk
21.01.2026 Gbnr 104/302 - Svar på spørsmål vedrørende radon - Hestaberg 180
21.01.2026 Gbnr 24/14 - Spørsmål vedrørende tilbygg til bolig - Tysværvågvegen 414
21.01.2026 Svar på forespørsel om dokumenter - Gismarvik vindkraftverk
20.01.2026 Gbnr 139/16 - Spørsmål om stort gammelt tre nær bolig - Liarvågvegen 528
19.01.2026 Forespørsel om dokumenter - Gismarvik vindkraftverk
19.01.2026 Forespørsel om dokumenter - Tysvær vindkraftverk
15.01.2026 Gbnr 104/302 - Spørsmål vedrørende radon - Hestaberg 180
15.01.2026 Gbnr 97/20 - Svar på spørsmål om søknadsprosess m.m - midlertidig avkjøring til NAF Øvingsbane Tysvær
12.01.2026 Gbnr 139/16 - Spørsmål om stort gammelt tre nær bolig - Liarvågvegen 528
12.01.2026 Gbnr 92/7 - Svar på bestilling av arkivdokumenter - Nesvegen 492 og 500
12.01.2026 Gbnr 125/3 - Svar på spørsmål knyttet til eiendom - Nedstrandsvegen 801
12.01.2026 Gbnr 83/2 - Svar på spørsmål vedrørende bygging av våningshus - Romsalandsvegen 24 og 26
12.01.2026 Spørsmål om søknadsprosess - midlertidig avkjøring til NAF Øvingsbane Tysvær
09.01.2026 Svar på innsynsbegjæring - ID 20263546 - Rørleggermelding i GeoDoc
09.01.2026 Innsynsbegjæring - ID 20263546 - Rørleggermelding i GeoDoc
09.01.2026 Gbnr 92/7 - Bestilling av arkivdokumenter - Nesvegen 492 og 500
06.01.2026 Gbnr 125/3 - Spørsmål om avklaringer knyttet til eiendom - Nedstrandsvegen 801
06.01.2026 Gbnr 83/2 - Veiledning vedrørende bygging av våningshus - Romsalandsvegen 24 og 26
05.01.2026 Gbnr 105/130 - Svar på forespørsel om plantegninger - Alvanutvegen 10
05.01.2026 Svar på spørsmål om søknadsplikt og TEK17
02.01.2026 Spørsmål om søknadsplikt og TEK17
02.01.2026 Gbnr 105/130 - Forespørsel om plantegninger - Alvanutvegen 10
02.01.2026 Gbnr 78/46 - Svar på bestilling av tegninger - Stakkestadvegen 78
02.01.2026 Gbnr 78/46 - Bestilling av tegninger - Stakkestadvegen 78