VerticalExtension Rammetillatelse Other

Påbygg av utestue på Hovdevegen 29, Ålesund

📍 Hovdevegen 29 , 6019 ÅLESUND

Nøkkelinfo

Sakstype
Påbygg
Bygningstype
Other
Bruksareal
18 m²
Boenheter
1
Kommune
Ålesund
Fylke
Møre og Romsdal
Gnr / Bnr
34 / 117
Saksnummer
2026/5220
Fase
Rammetillatelse

Om byggesaken

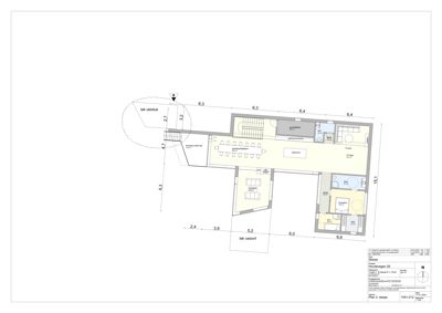
Ny utestue på 18 m² oppføres som påbygg på eksisterende terrasse ved enebolig på Hovdevegen 29. Utestuen får flatt tak og glassvegger i front, med ferdig gulv på kote 4,9 og gesimshøyde på 2,75 meter over planert terreng. Eksisterende bod på 18 m² i nordvest rives for å opprettholde uendret bebygd areal (BYA). Utestuen plasseres 1 meter fra fremtidige eiendomsgrenser med samtykke fra naboer. Tiltaket er tilpasset eksisterende bolig og terreng, og oppfyller krav til brannsikring og reguleringsplan.

Produkter og materialer

Maling Utvendig maling

🧱 Maling

Maling av trefasader på utestue

Overflatebehandling av utestue utvendig

Trapper Utendørs trapp

🧱 Tre

Ny trapp til utestue

Utendørs trapp til utestue

Vinduer Fasadevindu

🧱 Glass og tre/aluminium ramme

Glassvegger i front, nye vinduer i utestue

Vinduer og glassvegger til utestue

Brannvern Brannspredningstiltak

Tiltak i henhold til TEK17 § 11-6 for brannspredning mellom byggverk

Brannsikringstiltak for utestue

Tak Flatt tak

🧱 Takmembran

Flatt tak på utestue med gesimshøyde 2,75 m over planert terreng

Flatt tak på utestue med membran og isolasjon

Tømrer Påbygg konstruksjon

🧱 Tre

Trekonstruksjon for utestue på eksisterende terrasse

Tømrerarbeid for oppføring av utestue som påbygg

Grunnarbeid Fundamentering

Fundamentering tilpasset terreng og høydeplassering kote 4,9

Grunnarbeid og fundamentering for utestue

Dører Glassdør

🧱 Glass

Glassdør i utestue

Dør i glass til utestue

Fasade Glassvegger

🧱 Glass

Glassvegger i front av utestue

Glassvegger i front av utestue for lysinnslipp og utsikt

Fasader

Enebolig

Vest
Materiale
Tre
Taktype
Saltak
Høyde
4.9 m
Mønehøyde
8.0 m
Vinduer
4
Dører
1
Balkonger
1
Synlige etasjer
2
Nord
Materiale
Tre
Taktype
Flatt tak
Høyde
3.4 m
Mønehøyde
8.0 m
Vinduer
2
Dører
0
Synlige etasjer
1

Hendelser

16.04.2026 Gbnr. 34/117 - Vedtak - Hovdevegen 29 - Utestue
23.03.2026 Gbnr. 34/117 - Søknad om tillatelse til tiltak uten ansvarsrett - Hovdevegen 29 - Utestue