Facade
Fasadetegning (opprikk) av en bygning sett fra sør, med tegningstittel 'FASE MOT SYD' og detaljer om adresse og tiltakshaver.
1 / 11
VerticalExtension
UnderBehandling
Other
Åpen pergola i Solefallsveien 2, Moss
📍 Solefallsveien 2 , 1519 MOSS
Nøkkelinfo
- Sakstype
- Påbygg
- Bygningstype
- Other
- Bruksareal
- 34 m²
- Kommune
- Moss
- Fylke
- Østfold
- Gnr / Bnr
- 1 / 2228
- Saksnummer
- 2026/2233
- Fase
- Under behandling
Om byggesaken
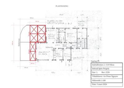
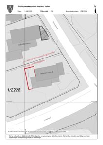
Ny åpen pergola på ca. 34 m² knyttet til eksisterende enebolig i Solefallsveien 2, Moss. Pergolaen er en åpen konstruksjon uten fast tak eller vegger, bygget i tre med flatt tak. Den festes til huset og har en grunnflate på 34 m². Pergolaen plasseres 2 meter fra nabogrense og 6 meter fra nærmeste nabobygg, med dokumentert avstandserklæring fra nabo. Bygget har flatt tak og er i én etasje, med tre som hovedmateriale.
Produkter og materialer
Grunnarbeid
Fundament for pergola
Antall: 1
Fundamentering til pergola i henhold til tegninger og byggeforskrifter
Grunnarbeid og fundamentering for pergola
Tømrer
Montering av pergola
🧱 Tre
Antall: 1
Montering av treverk for pergola i henhold til tegninger
Tømrerarbeid for oppføring av pergola
Fasade
Pergola i tre med flatt tak
🧱 Tre
Antall: 1
Åpen pergola uten fast tak eller vegger, grunnflate 34 m², festet til eksisterende enebolig
Bygningskonstruksjon i tre for åpen pergola med flatt tak
Plantegning
Pergola 0.0 m²
Etasje 1 0.0 m²
| Rom | Areal | Vinduer | Dører |
|---|
Enebolig 100.5 m²
Etasje 1 100.5 m²
| Rom | Areal | Vinduer | Dører |
|---|---|---|---|
| Stue 101 | 20.5 m² | 1 | 1 |
| Sovev. 1 102 | 6.0 m² | 1 | 1 |
| Sovev. 2 103 | 6.0 m² | 1 | 1 |
| Kjøkken 104 | 12.8 m² | 1 | 1 |
| Bad 105 | 4.5 m² | 0 | 1 |
| Gang 106 | 12.5 m² | 0 | 0 |
| Bod 107 | 12.0 m² | 1 | 1 |
Fasader
Åpen Pergola
Vest
- Materiale
- Tre
- Taktype
- Flatt tak
- Vinduer
- 0
- Dører
- 0
- Synlige etasjer
- 1
Enebolig
Vest
- Materiale
- Tre
- Taktype
- Pulttak
- Vinduer
- 2
- Dører
- 1
- Synlige etasjer
- 1
Nord
- Materiale
- Tre
- Taktype
- Flatt tak
- Vinduer
- 4
- Dører
- 0
- Synlige etasjer
- 1
Sør
- Materiale
- Tre
- Taktype
- Flatt tak
- Vinduer
- 3
- Dører
- 1
- Synlige etasjer
- 1
Pergola
Øst
- Materiale
- Tre
- Taktype
- Flatt tak
- Vinduer
- 0
- Dører
- 0
- Synlige etasjer
- 1
Hendelser
14.04.2026
Solefallsveien 2 - 1/2228 - ettersender dokumentasjon byggesøknad
27.03.2026
Solefallsveien 2 - 1/2228 - foreløpig svar/mangelbrev - pergola
16.03.2026
Solefallsveien 2 - 1/2228 - søknad uten ansvar - pergola