SitePlan
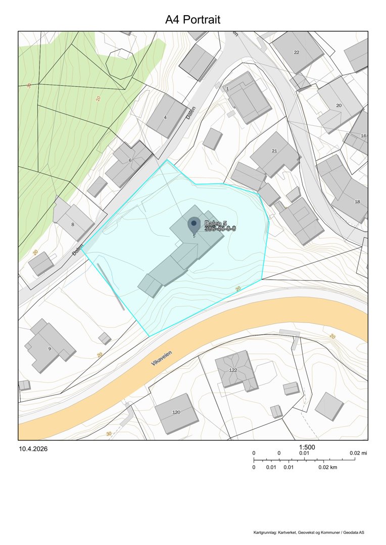
Situasjonsplan som viser tomtens beliggenhet i forhold til nabolag, vei (Vikveien) og elv.
1 / 2
Rehabilitation
Rammetillatelse
Other
Rehabilitering av to piper på enebolig, Dalen 5, Arendal
📍 Dalen 5 , 4816 KOLBJØRNSVIK
Nøkkelinfo
- Sakstype
- Rehabilitering
- Bygningstype
- Other
- Boenheter
- 1
- Kommune
- Arendal
- Fylke
- Agder
- Gnr / Bnr
- 306 / 48
- Saksnummer
- 2026/11545
- Fase
- Rammetillatelse
Om byggesaken
Rehabilitering av to eksisterende mursteins piper på en enebolig ved Dalen 5 i Arendal. Arbeidet inkluderer demontering og montering av nye stålrør inne i de eksisterende pipene. Det utføres ingen utvendige endringer på bygningen, og tiltaket berører i liten grad naboers interesser. Prosjektet omfatter prosjektering og montering av røykrør og ildstedskomponenter i tiltaksklasse 1, med fokus på oppgradering av bygningstekniske installasjoner for ildsted.
Produkter og materialer
Pipe
Stålrør til mursteins pipe
🧱 Stål
Antall: 2
Nye stålrør monteres i eksisterende mursteins piper
Montering av nye stålrør i to eksisterende mursteins piper for rehabilitering
Tømrer
Arbeid med eksisterende bygningsstruktur
Rehabilitering av piper uten utvendige endringer
Arbeid knyttet til rehabilitering av piper i eksisterende enebolig
Bygningstekniske installasjoner
Ildsted og røykrør
Prosjektering og montering av ildsted og røykrør i tiltaksklasse 1
Prosjektering og montering av ildstedskomponenter og røykrør i piper
Hendelser
14.04.2026
Fakturagrunnlag
14.04.2026
Dalen 5 Søknad om tillatelse i ett trinn 306/48
14.04.2026
Vedtak - Dalen 5 - rehabilitering av piper
14.04.2026
DOK-analyse - 306/48/0/0 Dalen 5