Rehabilitation Ferdigattest Other

Ny klargjøringshall og fasaderehabilitering i Lepsøyvegen 22, Os

📍 Lepsøyvegen 22 , 5217 HAGAVIK

Nøkkelinfo

Sakstype
Rehabilitering
Bygningstype
Other
Bruksareal
1,060 m²
Kommune
Bjørnafjorden
Fylke
Vestland
Gnr / Bnr
37 / 25
Saksnummer
2026/2988
Fase
Ferdigattest

Om byggesaken

Prosjektet omfatter oppføring av en ny klargjøringshall på ca. 99,5 m² med flatt betongtak, inkludert garasjeporter på nordvest- og sørøstfasaden. I tillegg rehabiliteres og moderniseres fasaden mot nordvest med ny, vedlikeholdsfri betongfasade og nye vinduer i annet mønster enn tidligere. Eksisterende fasade er ca. 40 år gammel og skal isoleres bedre, men ikke i henhold til TEK10. Bygget inneholder flere funksjonsrom som lakkering, verksted, vaskehall, lager, garderobe, WC, kontor, resepsjon og pauserom, totalt ca. 1060 m². Fasaden får totalt 22 vinduer og 5 dører, samt garasjeporter. Arbeidet inkluderer riving av eksisterende fasade og oppgradering av tekniske og funksjonelle forhold.

Produkter og materialer

Vinduer Fasadevindu

Antall: 22

Nye vinduer i annet mønster enn tidligere, fordelt på fasader nordvest (10 stk) og sørøst (12 stk)

Utskifting av eksisterende vinduer med nye fasadevinduer

Elektro Elektroinstallasjoner

Elektroinstallasjoner for nybygg og rehabilitering

Tømrer Tømrerarbeid og samordning

Tømrerarbeid knyttet til fasaderehabilitering og nybygg

Tømrerarbeid for oppføring og rehabilitering

Fasade Betongfasade

🧱 Betong

Ny vedlikeholdsfri betongfasade med bedre isolasjon enn eksisterende, men ikke TEK10-standard

Rehabilitering og oppgradering av fasade mot nordvest med ny betongkledning og isolasjon

Grunnarbeid Fundament og grunnmur

Fundament og grunnmur for ny klargjøringshall og tilbygg

Grunnarbeid for nybygg og tilbygg

Maling Innvendig og utvendig maling

Maling av fasade og innvendige rom

Isolasjon Fasadeisolasjon

Bedre isolasjon i ny fasade enn eksisterende, men ikke TEK10-standard

Isolasjon for fasaderehabilitering

Tak Flatt tak

🧱 Betong

Flatt betongtak på ny klargjøringshall og tilbygg

Taktekking for nybygg og tilbygg med flatt betongtak

VVS Personalromsanlegg

Garderober, dusj, toalett og pause/spiserom tilrettelagt for yrkeshemmede iht. arbeidsmiljøloven og arbeidsplassforskriften

VVS-installasjoner for personalrom og sanitærrom

Betong Betongkonstruksjoner

Betongkonstruksjoner for ny klargjøringshall og fasadeoppbygging

Betongarbeider for nybygg og fasaderehabilitering

Dører Ytterdører og garasjeporter

Antall: 5

Dører fordelt på fasader nordvest (2 dører), sørvest (1 dør), nordøst (1 dør), sørøst (1 dør) samt garasjeporter på nordvest og sørøst

Nye ytterdører og garasjeporter i tilbygg og rehabilitert fasade

Avfall Avfallshåndtering og gjenvinning

Detaljert avfallsplan med sortering og levering til godkjente anlegg, inkludert farlig avfall og ordinært avfall

Avfallshåndtering ved riving og rehabilitering

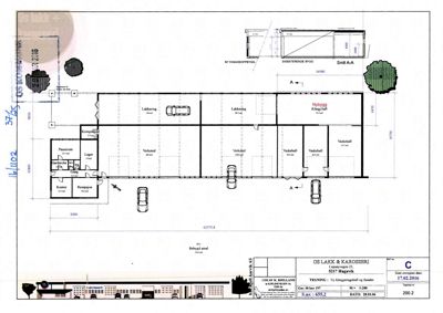
Plantegning

Nybygg 1,060.0 m²

Etasje 1 1,060.0 m²

Rom Areal Vinduer Dører
Lakkering 101 120.0 m² 0 0
Lakkering 102 88.5 m² 0 0
Nybygg Klargj hall 103 99.5 m² 0 0
Verksted 104 200.0 m² 0 0
Verksted 105 149.6 m² 0 0
Vaskehall 106 49.2 m² 0 0
Vaskehall 107 46.5 m² 0 0
Vaskehall 108 64.7 m² 0 0
Kompressor 109 7.7 m² 0 0
Lager 110 19.0 m² 0 0
Gang 111 12.4 m² 0 0
Garderobe 112 5.1 m² 0 0
WC 113 3.1 m² 0 0
WC 114 3.1 m² 0 0
Kontor 115 15.3 m² 0 0
Resepsjon 116 18.6 m² 0 0
Pauserom 117 21.3 m² 0 0

Fasader

Klargjeringshall

Nordvest
Materiale
Betong
Taktype
Flatt tak
Vinduer
10
Dører
2
Synlige etasjer
1
Sørvest
Materiale
Betong
Taktype
Flatt tak
Vinduer
0
Dører
1
Synlige etasjer
1
Nordøst
Materiale
Betong
Taktype
Flatt tak
Vinduer
0
Dører
1
Synlige etasjer
1
Sørøst
Materiale
Betong
Taktype
Flatt tak
Vinduer
12
Dører
1
Synlige etasjer
1

Hendelser

15.04.2026 Svar - førespurnad om innsyn - 37/25-27, byggesak
23.03.2026 Førespurnad om innsyn - 37/25-27, byggesak