Rehabilitation Soeknad Other

Rehabilitering av avløpspumpestasjon på Blekesmarka, Melhus

Nøkkelinfo

Sakstype
Rehabilitering
Bygningstype
Other
Bruksareal
11 m²
Kommune
Melhus
Fylke
Trøndelag - Trööndelage
Gnr / Bnr
9 / 38
Saksnummer
2023/2137
Fase
Søknad

Om byggesaken

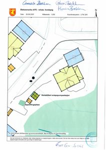
Eksisterende kommunal avløpspumpestasjon på Blekesmarka rehabiliteres med nytt overbygg på ca. 11 m² og utskifting av teknisk utstyr. Øvre del av sump erstattes med ny, mens deler av eksisterende sump beholdes. Det utføres gravearbeid for å bedre stabilitet og forebygge erosjon rundt pumpestasjonen. Anleggsarbeidet inkluderer riving av eksisterende overbygg, oppføring av nytt overbygg, samt tilpasninger i terreng og ledningsnett. Prosjektet omfatter også etablering av snuplass og parkeringsplass ved pumpestasjonen. Arbeidet planlegges utført som totalentreprise med oppstart prosjektering i februar 2026 og ferdigstillelse våren/sommeren 2026.

Produkter og materialer

Tømrer Prefab overbygg

Antall: 1

Prefab overbygg levert av Kvål Byggservice

Prefab overbygg til pumpestasjon

Betong Sump og fundament

🧱 Betong

Antall: 1

Øvre del av sump erstattes med ny betongkonstruksjon, deler av eksisterende sump beholdes

Betongarbeider for ny sump og fundament til pumpestasjon

Elektro Elektroinstallasjoner pumpestasjon

Nye elektroinstallasjoner i pumpestasjon

Elektroarbeid knyttet til nytt teknisk utstyr i pumpestasjon

Terrasse Oppstillingsplass og snuplass

🧱 Grus/asfalt

Antall: 1

Etablering av snuplass og parkeringsplass ved pumpestasjonen

Oppstillings- og snuplass for driftspersonell ved pumpestasjon

Fasade Overbygg til avløpspumpestasjon

🧱 Prefab betong/tre eller tilsvarende

Antall: 1

Nytt overbygg ca. 3 x 3,5 m (11 m²), noe større enn eksisterende

Nytt overbygg til avløpspumpestasjon som erstatter eksisterende overbygg

Annet Ledningsnett avløp

🧱 Plast/rørmateriale

Legging, flytting, reparasjon og fjerning av avløpsledninger langs veg

Ledningsarbeid i tilknytning til pumpestasjon

VVS Pumpestasjon teknisk utstyr

Antall: 1

Alt teknisk utstyr i pumpestasjonen skal erstattes med nytt

Nytt teknisk utstyr for avløpspumpestasjon

Grunnarbeid Graving og terrengarbeid

Graving for omlegging av ledningsnett, sikring og plastring av skråning, terrenginngrep for stabilitet og erosjonssikring

Grunnarbeider i forbindelse med rehabilitering av pumpestasjon og ledningsnett

Hendelser

10.04.2026 Nærføringssøknad signert
08.04.2026 Søknad om graving, legging, flytting, reparasjon og fjerning av ledningsanlegg - Blekesmarka APS
18.03.2026 Kopi - Referat fra forhåndskonferanse - Rehabilitering av avløpspumpestasjon - Blekesmarka, gnr/bnr 9/38
13.03.2026 Kopi - møtebekreftelse forhåndskonferanse
05.03.2026 Bekreftelse på mottatt anmodning om forhåndskonferanse Blekesmarka
15.01.2026 Oversendelse av tinglyst avtale
08.01.2026 Mangler ett eksemplar av innsendt originaldokument
07.01.2026 Retur av tinglyst dokument fra Kartverket
07.01.2026 Automatisk svar - Mangler ett eksemplar av innsendt originaldokument
17.12.2025 Vedrørende tinglysning for gnr. 9 bnr. 38 i knr. 5028 Melhus kommune
16.12.2025 Tinglysning - dokumentene har mangler
11.12.2025 Informasjon og rehabilitering av Blekesmarka avløpspumpestasjon og planlagt tilbudsbefaring tirsdag 09.12.2025
03.12.2025 Dokumenter til tinglysning fra 5028 Melhus kommune
14.11.2025 Oppfølging av avtale om ulemper ved rehabiliteringsarbeid med Blekesmarka APS
12.11.2025 Svar - Avtaler Blekesmarka APS
12.11.2025 Avtaler Blekesmarka APS
11.11.2025 Avtaler Blekesmarka APS
31.10.2025 Svar - Signerte avtaler
29.10.2025 Signerte avtaler
22.10.2025 Ny utsendelse av avtaleutkast for Blekesmarka APS
21.10.2025 Purring - Avtaleoppfølging Blekesmarka APS
21.10.2025 Svar - Purring - Avtaleoppfølging Blekesmarka APS
09.10.2025 Avtaleoppfølging Blekesmarka APS
08.10.2025 Utkast til avtale om ulemper ved rehabiliteringsarbeid med Blekesmarka APS
05.09.2025 Utkast til avtale om ulemper ved rehabiliteringsarbeid med Blekesmarka APS
01.09.2025 Avtaleutkast - Blekesmarka APS - erverv av rettigheter
21.11.2024 Kulturminnefaglig uttalelse - Riving av eksisterende avløpspumpestasjon og bygging av ny. Prosjekt Blekesmarka avløpspumpestasjon - Gnr/bnr 9/38
09.10.2024 Blekesmarka - Avklaring vedrørende erklæring om konsesjonsfrihet
22.11.2023 Nabovarsel
10.11.2023 Svar - Kjøp av grunn
09.11.2023 Forslag til avtale - kjøp av grunn ifm ny Blekesmarka APS
08.11.2023 Kjøp av grunn.
08.11.2023 Kjøp av grunn
08.11.2023 Forslag til avtale - kjøp av grunn i forbindelse med ny Blekesmarka APS
08.11.2023 Svar - Forslag til avtale - kjøp av grunn i forbindelse med ny Blekesmarka APS
08.11.2023 Svar - Forslag til avtale - kjøp av grunn i forbindelse med ny Blekesmarka APS
08.11.2023 Svar - Forslag til avtale - kjøp av grunn i forbindelse med ny Blekesmarka APS
08.11.2023 Forslag til avtale - kjøp av grunn i forbindelse med ny Blekesmarka APS