Section
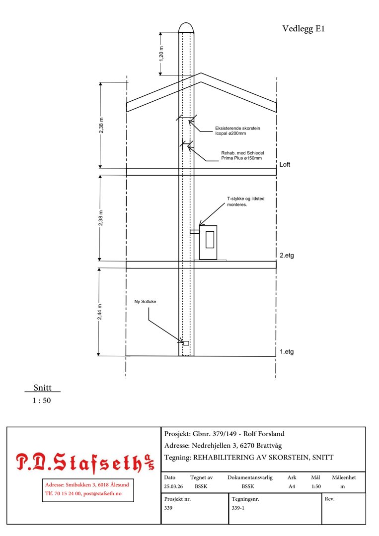
Snittegning som viser tverrsnitt gjennom en bygning med angitte høyder og konstruksjonsdetaljer for skorstein og etasjer.
1 / 2
Rehabilitation
Rammetillatelse
Other
Rehabilitering av skorstein på Nedrehjellen 3, Brattvåg
📍 Nedrehjellen 3 , 6270 BRATTVÅG
Nøkkelinfo
- Sakstype
- Rehabilitering
- Bygningstype
- Other
- Boenheter
- 1
- Kommune
- Haram
- Fylke
- Møre og Romsdal
- Gnr / Bnr
- 379 / 149
- Saksnummer
- 2026/874
- Fase
- Rammetillatelse
Om byggesaken
Rehabilitering av eksisterende skorstein på bolig i Nedrehjellen 3, Brattvåg. Tiltaket omfatter oppgradering med Schiedel Prima Plus skorsteinsinnsats med diameter 150 mm, ny sotluke, T-stykke og montering av ildsted. Eksisterende skorstein har Icopal yttervegg med diameter 200 mm. Arbeidet inkluderer murarbeid og teknisk oppgradering for å sikre funksjonalitet og brannsikkerhet i henhold til gjeldende forskrifter.
Produkter og materialer
Mur
Skorstein rehabilitering
Antall: 1
Rehabilitering av skorstein med Schiedel Prima Plus innsats ø150mm, eksisterende Icopal yttervegg ø200mm
Murarbeid for rehabilitering av skorstein med ny innsats og sotluke
Pipe
Sotluke og T-stykke
Antall: 1
Ny sotluke og T-stykke monteres i skorstein
Tekniske komponenter for skorsteinsrehabilitering
Tømrer
Ildsted montering
Antall: 1
Montering av ildsted i tilknytning til skorstein
Installasjon av ildsted som del av skorsteinsrehabilitering
Hendelser
17.04.2026
Gbnr. 379/149 - Nedrehjellen 3 - Skorsteinsrehabilitering - Vedtak
27.03.2026
Gbnr. 379/149 - Nedrehjellen 3 - Søknad om tillatelse til tiltak.