Section
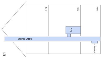
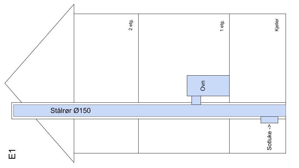
Snittegning som viser tverrsnitt av bygningen med etasjer (kjeller, 1. etg, 2. etg), tekniske installasjoner (stålør, ovn) og en søtluke.
1 / 4
Rehabilitation
Rammetillatelse
Other
Rehabilitering av skorstein i Sjødalsveien 2, Sætre
📍 Sjødalsveien 2 , 3475 SÆTRE
Nøkkelinfo
- Sakstype
- Rehabilitering
- Bygningstype
- Other
- Boenheter
- 1
- Kommune
- Asker
- Fylke
- Akershus
- Gnr / Bnr
- 357 / 103
- Saksnummer
- 26/829
- Fase
- Rammetillatelse
Om byggesaken
Rehabilitering av eksisterende innvendig skorstein i enebolig med installasjon av stålstabilrør Ø150 mm. Arbeidet omfatter tekniske bygningsinstallasjoner knyttet til skorsteinen uten endring av bygningsareal eller fasade. Tiltaket inkluderer demontering og utskifting av skorsteinsrør for å sikre funksjonalitet og sikkerhet i henhold til gjeldende forskrifter. Prosjektet gjennomføres i tiltaksklasse 1 med ansvarlig utførende og prosjekterende fra Drammen Varmeteknikk AS.
Produkter og materialer
VVS
Ingen spesifikk VVS-installasjon
Ingen VVS-installasjoner nevnt i dokumentene
Ingen VVS-arbeider nødvendig for dette prosjektet
Tømrer
Bygningsmessige arbeider
Demontering og montering knyttet til rehabilitering av skorstein
Arbeid knyttet til tilpasning og rehabilitering av skorsteinens bygningsstruktur
Grunnarbeid
Ingen endring
Ingen grunnarbeider da det er rehabilitering av eksisterende skorstein
Ingen nye grunnarbeider nødvendig
Mur
Skorstein
🧱 Stålstabilrør
Antall: 1
Stålstabilrør Ø150 mm for innvendig rehabilitering av skorstein
Innvendig stålforing for eksisterende skorstein for å sikre funksjon og brannsikkerhet
Elektro
Ingen spesifikk elektroinstallasjon
Ingen elektroinstallasjoner nevnt i dokumentene
Ingen elektroarbeider nødvendig for dette prosjektet
Hendelser
15.04.2026
357/103 Sjødalsveien 2 - Søknad om ferdigattest
09.04.2026
357/103 Sjødalsveien 2 - Tillatelse til tiltak i ett trinn for rehabilitering av skorstein
16.03.2026
357/103 Sjødalsveien 2 - Søknad om tillatelse i ett trinn - Rehabilitering av skorstein