Demolition Soeknad Other

Riving av kontorbygg på Agnes Torg 2, Stavern

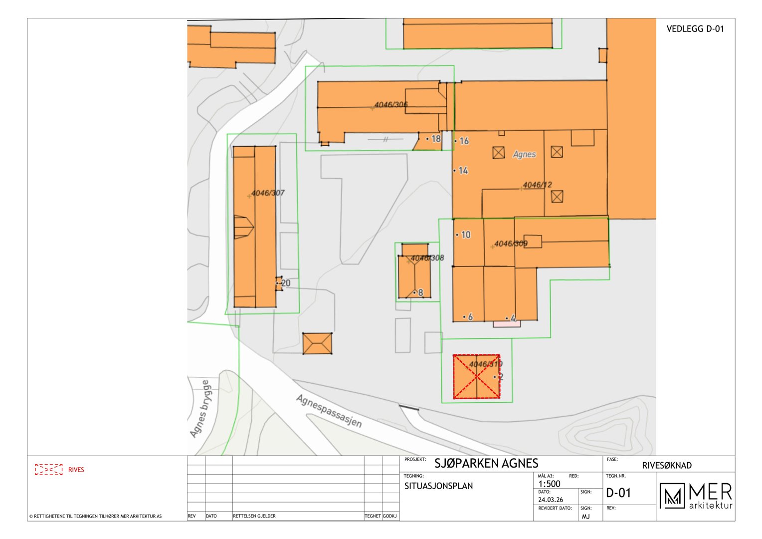
📍 Agnes torg 2 , 3290 STAVERN

Nøkkelinfo

Sakstype
Riving
Bygningstype
Other
Kommune
Larvik
Fylke
Vestfold
Gnr / Bnr
4046 / 310
Saksnummer
2026/7274
Fase
Søknad

Om byggesaken

Eldre kontorbygg på Agnes Torg 2 i Stavern rives på grunn av dårlig tilstand og sikkerhetsrisiko. Bygningen er en del av et spesialområde for bevaring, men riving er nødvendig og bygget vil bli gjenreist 8-9 meter lenger sør på tomten. Den nye plasseringen ivaretar viktige sikt- og bevegelseslinjer og tilpasser bygget til dagens standard med moderne etasjehøyder. Døren til safen i det gamle bygget demonteres og oppbevares for gjenbruk. Prosjektet innebærer full riving og senere nybygg av et historiefortellende kontorbygg i funksjonalistisk stil med klassisistiske trekk.

Produkter og materialer

Riving Full riving av kontorbygg

Antall: 1

Riving av eldre kontorbygg på Agnes Torg 2, inkludert demontering av dør til safe for gjenbruk

Full riving av eksisterende kontorbygg i dårlig forfatning, inkludert forsvarlig demontering av spesielle bygningsdeler

Grunnarbeid Forberedelse for nybygg

Antall: 1

Grunnarbeid for gjenreist bygning 8-9 meter lenger sør på tomten

Grunnarbeid og klargjøring av byggegrunn for ny plassering av kontorbygget

Tømrer Nybygg kontorbygg

Antall: 1

Ny kontorbygning i funksjonalistisk stil med klassisistiske trekk, tilpasset dagens etasjehøyder

Oppføring av nytt kontorbygg som gjenreiser det gamle bygget med moderne standard

Dører Dør til safe

Antall: 1

Demontering og oppbevaring av dør til safe for senere gjenbruk

Spesiell dør demonteres og lagres for gjenbruk i nybygg

Hendelser

14.04.2026 Søknad om rammetillatelse - Riving av bygg - Agnes Torg 2 - gbnr. 4046/310